[衢州] 衢州公馆15-50# 143㎡——法式中古风 |
|
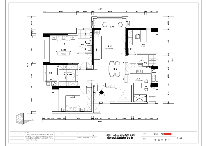
衢州公馆15-50# 143㎡——法式中古风
格堂装饰为您全程记录装修全过程! 设计说明
设计主题:【邂逅幸福人生】
设计理念: 格局上空间最大利用化。把原来的厨房扩大,装了吧台,安装了空调,厨房烤箱蒸箱洗碗机各种功能全部齐全,烧饭,就餐的环境独一无二。入门餐厅客厅大通间,让原来143多方的房子马上有160方的既视感。 更多信息
| |
|
|
| |
| |
| |


在线客服
微信客服
关注有礼