• 手机版

    扫码体验手机版

  • 微信公众号

    扫码关注公众号

登录注册
游客您好
第三方账号登陆

[衢州] 星月宸庐6-2-6#128㎡中式——观韵

[复制链接]
发表于 2023-9-11 09:43:14 | 显示全部楼层 |阅读模式
星月宸庐6-2-6#128㎡中式——观韵

格堂装饰为您全程记录装修全过程!

小区名称
星月宸庐
房屋面积
128㎡
户型结构
套房
装修风格
中式
装修方式
全包
装修造价
查看请联系客服万元
设计师
王工
项目经理
郑工
装修公司
格堂装饰
完工实景
完工实景
水电全景
水电全景
VR全景
VR全景
设计说明
中式的美,是一种意境之美,一墙一廊,一灯一盏、一桌一椅,古香流韵,皆为室内一景,有着诉不完的东方情怀,道不尽的古典美韵。这诉不完的美韵尽现而出,实为中式之美一部分。
更多信息
效果图

微信图片_20230911092835.png


微信图片_20230911092905.png

回复

使用道具 举报

 楼主| 发表于 2023-9-11 09:48:04 | 显示全部楼层
回复 支持 反对

使用道具 举报

 楼主| 发表于 2023-9-11 09:48:34 | 显示全部楼层
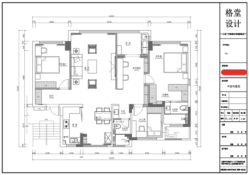
原始结构图

微信图片_20230911092901.png

平面布置图


微信图片_20230911092915.png
回复 支持 反对

使用道具 举报

 楼主| 发表于 2023-9-11 09:50:08 | 显示全部楼层
大门已经保护到位。


IMG_20230909_110417.jpg


煤气表已经保护到位。


IMG_20230909_110159.jpg


临时小便池已经安放好了:每一个施工现场都会配备临时小便斗,并且时刻保持干净卫生,保证工地环境干净整洁。


IMG_20230909_110211.jpg




排水管道用格堂专用保护盖保护,防止后期施工中砂石 堵塞管道


IMG_20230909_110226.jpg


IMG_20230909_110229.jpg
回复 支持 反对

使用道具 举报

 楼主| 发表于 2023-9-11 09:51:12 | 显示全部楼层
本帖最后由 格堂王姐 于 2023-9-12 12:03 编辑

吉时到开工了,恭祝业主大人开工大吉!
仪式很短暂,家居装修却很长……与漫漫人生历程相比,这些短短一瞬,却包含了满满的心意。
我们竭力用自己的专业技能,让每位业主拥有最接近梦想的家!恭祝开工大吉!
开工合影

微信图片_20230911093814.jpg

开工第一锤,由业主敲在要拆除的墙体的墙角(即拐角),象征一锤定音的意思,也是新房动土的一种表示方式
业主敲下第一锤

微信图片_20230912115833.jpg

敲完的痕迹

微信图片_20230912115853.jpg
回复 支持 反对

使用道具 举报

 楼主| 发表于 2023-9-11 09:52:06 | 显示全部楼层
电梯口墙面和地面都贴好了格堂专用的保护垫。


IMG_20230909_110430.jpg


IMG_20230909_110434.jpg


IMG_20230909_110435.jpg


IMG_20230909_110437.jpg


IMG_20230909_110443.jpg


IMG_20230909_110445.jpg


IMG_20230909_110449.jpg


IMG_20230909_110452.jpg


IMG_20230909_110454.jpg
回复 支持 反对

使用道具 举报

 楼主| 发表于 2023-9-11 09:58:21 | 显示全部楼层
拆改阶段:

房间铲灰,是为了防止墙顶面出现空鼓,在做好油漆后不会有墙顶面整块油漆脱落的现象。
拆除可以让空间利用更合理。为了整体结构的稳定性和安全性,承重墙是一定不能动的。

微信图片_20230911095551.jpg


微信图片_20230911095557.jpg


微信图片_20230911095600.jpg


微信图片_20230911095603.jpg

回复 支持 反对

使用道具 举报

 楼主| 发表于 2023-9-11 09:58:39 | 显示全部楼层
微信图片_20230911095607.jpg


微信图片_20230911095610.jpg


微信图片_20230911095613.jpg


微信图片_20230911095616.jpg
回复 支持 反对

使用道具 举报

 楼主| 发表于 2023-9-11 17:51:09 | 显示全部楼层
微信图片_20230911174935.jpg


微信图片_20230911174947.jpg


微信图片_20230911174952.jpg


微信图片_20230911174955.jpg


微信图片_20230911174958.jpg


微信图片_20230911175002.jpg
回复 支持 反对

使用道具 举报

 楼主| 发表于 2023-9-17 08:48:02 | 显示全部楼层
砌墙放样

微信图片_20230917084323.jpg


微信图片_20230917084336.jpg

微信图片_20230917084339.jpg


微信图片_20230917084343.jpg


微信图片_20230917084346.jpg


微信图片_20230917084349.jpg


微信图片_20230917084352.jpg


微信图片_20230917084355.jpg
回复 支持 反对

使用道具 举报

您需要登录后才可以回帖 登录 | 立即注册

本版积分规则

全国统一客服电话
0570-8028505

24x7小时免费咨询

  • 官方在线客服

    QQ客服:小西

    点击交谈

    QQ客服:良子

    点击交谈

    QQ客服:闵月

    点击交谈
  • 衢州市柯城区财富中心3号楼2楼

  • 衢州格堂装饰有限公司

  • 扫一扫关注官方微信

    获取一手特惠信息

快速回复 返回顶部 返回列表