• 手机版

    扫码体验手机版

  • 微信公众号

    扫码关注公众号

登录注册
游客您好
第三方账号登陆

[衢州] 银湖山庄9-40#92㎡现代——闲暇游度 云华入府

[复制链接]
发表于 2023-9-6 13:47:29 | 显示全部楼层 |阅读模式
银湖山庄9-40#92㎡现代——闲暇游度 云华入府

格堂装饰为您全程记录装修全过程!

小区名称
银湖山庄
房屋面积
92㎡
户型结构
套房
装修风格
现代
装修方式
半包
装修造价
查看请联系客服万元
设计师
苏工
项目经理
周工
装修公司
格堂装饰
完工实景
完工实景
水电全景
水电全景
VR全景
VR全景
设计说明
具有都市气息的经典时尚系列设计就是将怀旧、前卫、简朴与精巧共溶一炉,那么时尚的设计必将把动感都市的朝气与急促的生活节奏相融合。
更多信息
本帖最后由 zhouyuhang 于 2023-9-6 13:47 编辑


回复

使用道具 举报

 楼主| 发表于 2023-9-6 14:10:09 | 显示全部楼层
本帖最后由 zhouyuhang 于 2023-11-26 14:23 编辑

目      录


回复 支持 反对

使用道具 举报

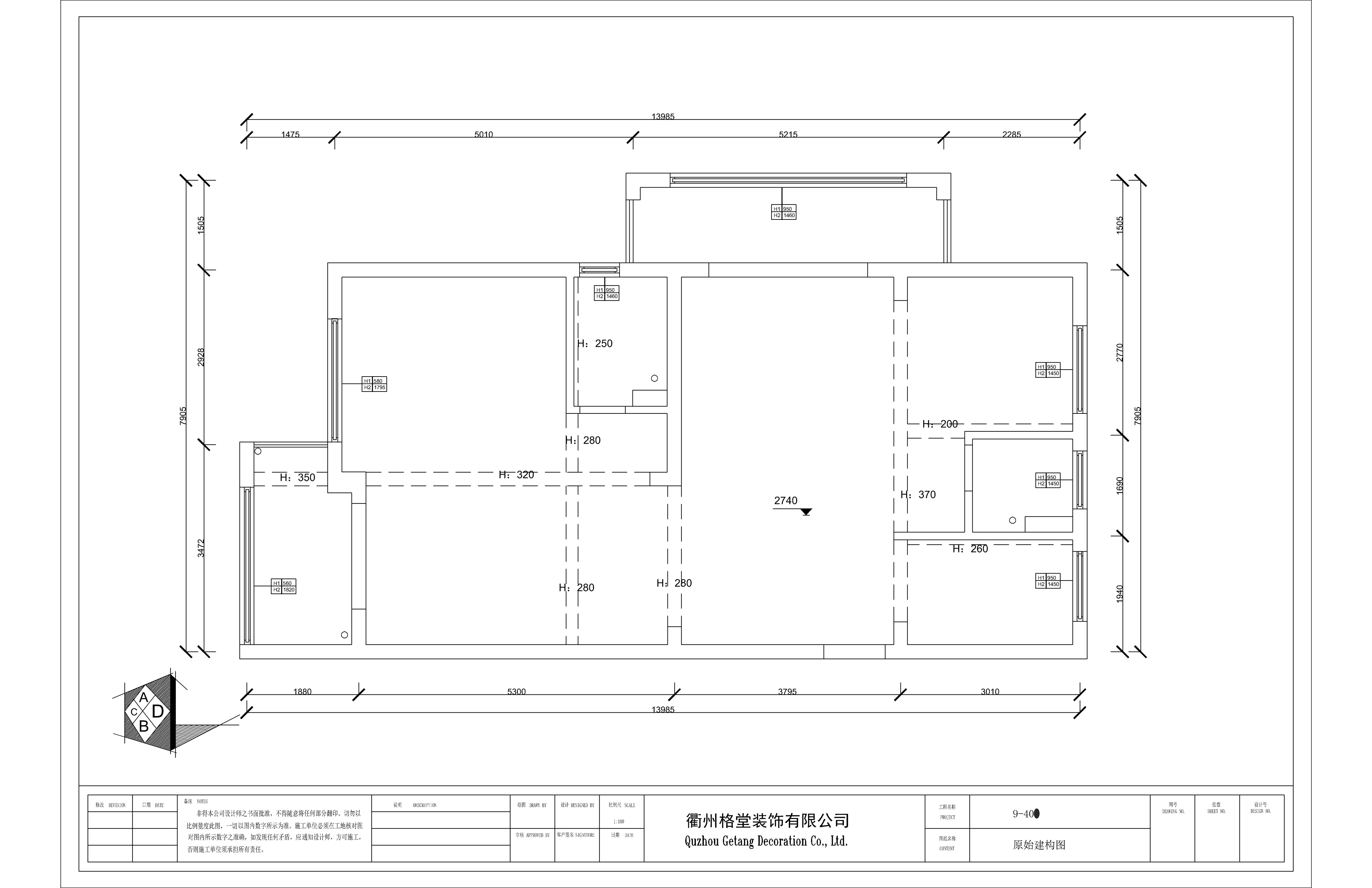
 楼主| 发表于 2023-9-6 14:13:47 | 显示全部楼层
原始结构图

9-406-原始结构图g.gif 平面布置图

9-406-平面布置图g.gif

回复 支持 反对

使用道具 举报

 楼主| 发表于 2023-9-6 14:36:23 | 显示全部楼层
本帖最后由 zhouyuhang 于 2023-9-6 14:42 编辑

开工仪式准备,开工横幅、鲜花、礼花准备到位,就等吉时!
开工桌摆好准备

微信图片_20230906142139.jpg

吉时到开工了,恭祝业主大人开工大吉!
仪式很短暂,家居装修却很长……与漫漫人生历程相比,这些短短一瞬,却包含了满满的心意。
我们竭力用自己的专业技能,让每位业主拥有最接近梦想的家!恭祝开工大吉!

开工合影


微信图片_20230906142152.gif

开工第一锤,由业主敲在要拆除的墙体的墙角(即拐角),象征一锤定音的意思,也是新房动土的一种表示方式

微信图片_20230906142156.gif

回复 支持 反对

使用道具 举报

 楼主| 发表于 2023-9-6 14:49:14 | 显示全部楼层
拆除阶段:
拆除可以让空间利用更合理。为了整体结构的稳定性和安全性,承重墙是一定不能动的。


微信图片_20230830082842.jpg
微信图片_20230830082845.jpg

微信图片_20230830095349.jpg

微信图片_20230830095811.jpg

微信图片_20230831143915.jpg

微信图片_20230831143916.jpg

微信图片_20230831143916_1.jpg

微信图片_20230831143916_2.jpg

微信图片_20230831143917_1.jpg


回复 支持 反对

使用道具 举报

 楼主| 发表于 2023-9-6 14:50:51 | 显示全部楼层
砌墙

微信图片_20230901083740.jpg
微信图片_20230901084221.jpg

微信图片_20230901084221_1.jpg

微信图片_20230901084644.jpg

微信图片_20230903085014.jpg

微信图片_20230903085515.jpg

微信图片_20230903085515_1.jpg

微信图片_20230903085515_2.jpg


回复 支持 反对

使用道具 举报

 楼主| 发表于 2023-9-6 14:52:06 | 显示全部楼层
本帖最后由 zhouyuhang 于 2023-9-6 15:18 编辑

水电放样

微信图片_20230906144358_1.jpg

微信图片_20230906144559.jpg

微信图片_20230906144601.jpg

微信图片_20230906144606.jpg

回复 支持 反对

使用道具 举报

 楼主| 发表于 2023-9-11 15:32:11 | 显示全部楼层
水电材料

微信图片_20230909152035.jpg

微信图片_20230909152536.jpg

微信图片_20230909152537.jpg

微信图片_20230909152537_1.jpg

微信图片_20230909152537_2.jpg

微信图片_20230909152537_3.jpg

微信图片_20230909152538.jpg

微信图片_20230909152538_1.jpg

微信图片_20230909152538_2.jpg

微信图片_20230909152538_3.jpg

微信图片_20230909154036.jpg

微信图片_20230909173542.jpg

微信图片_20230910084505.jpg


回复 支持 反对

使用道具 举报

 楼主| 发表于 2023-9-22 17:27:27 | 显示全部楼层
本帖最后由 zhouyuhang 于 2023-10-7 16:37 编辑

泥工阶段
微信图片_20230922172702.jpg


微信图片_20230922172607.jpg

微信图片_20230922172602.jpg

微信图片_20231007162854.jpg

微信图片_20231007162856.jpg

微信图片_20231007162859.jpg

微信图片_20231007162902.jpg

微信图片_20231007163635.jpg

微信图片_20231007163638.jpg

微信图片_20231007163644.jpg

回复 支持 反对

使用道具 举报

 楼主| 发表于 2023-9-22 17:28:38 | 显示全部楼层
本帖最后由 zhouyuhang 于 2023-9-28 17:01 编辑

防水施工
微信图片_20230928170003.jpg

微信图片_20230928170011.jpg

微信图片_20230928170013.jpg

微信图片_20230928170016.jpg

微信图片_20230928170021.jpg

微信图片_20230928170023.jpg

微信图片_20230922172610.jpg

微信图片_20230922172612.jpg

微信图片_20230922172614.jpg

微信图片_20230922172617.jpg

微信图片_20230922172619.jpg

微信图片_20230922172621.jpg

微信图片_20230922172624.jpg

微信图片_20230922172627.jpg

微信图片_20230922172629.jpg

微信图片_20230922172633.jpg





回复 支持 反对

使用道具 举报

您需要登录后才可以回帖 登录 | 立即注册

本版积分规则

全国统一客服电话
0570-8028505

24x7小时免费咨询

  • 官方在线客服

    QQ客服:小西

    点击交谈

    QQ客服:良子

    点击交谈

    QQ客服:闵月

    点击交谈
  • 衢州市柯城区财富中心3号楼2楼

  • 衢州格堂装饰有限公司

  • 扫一扫关注官方微信

    获取一手特惠信息

快速回复 返回顶部 返回列表