• 手机版

    扫码体验手机版

  • 微信公众号

    扫码关注公众号

登录注册
游客您好
第三方账号登陆

[衢州] 郁金香郡32-2-20#310㎡新中式

[复制链接]
发表于 2023-10-21 15:43:21 | 显示全部楼层 |阅读模式
郁金香郡32-2-20#310㎡新中式

格堂装饰为您全程记录装修全过程!

小区名称
郁金香郡
房屋面积
310㎡
户型结构
排屋
装修风格
新中式
装修方式
半包
装修造价
查看请联系客服万元
设计师
詹工
项目经理
周工
装修公司
格堂装饰
完工实景
完工实景
水电全景
水电全景
VR全景
VR全景
设计说明
宜设而设,精在体宜
删繁去奢,绘事后素
因景互借
更多信息
本帖最后由 zhouyuhang 于 2023-10-21 15:43 编辑

1.gif

3.gif

2.gif


回复

使用道具 举报

 楼主| 发表于 2023-10-21 15:43:22 | 显示全部楼层
本帖最后由 zhouyuhang 于 2024-10-4 10:54 编辑


回复 支持 反对

使用道具 举报

 楼主| 发表于 2023-10-21 15:43:23 | 显示全部楼层
本帖最后由 zhouyuhang 于 2023-9-3 16:34 编辑

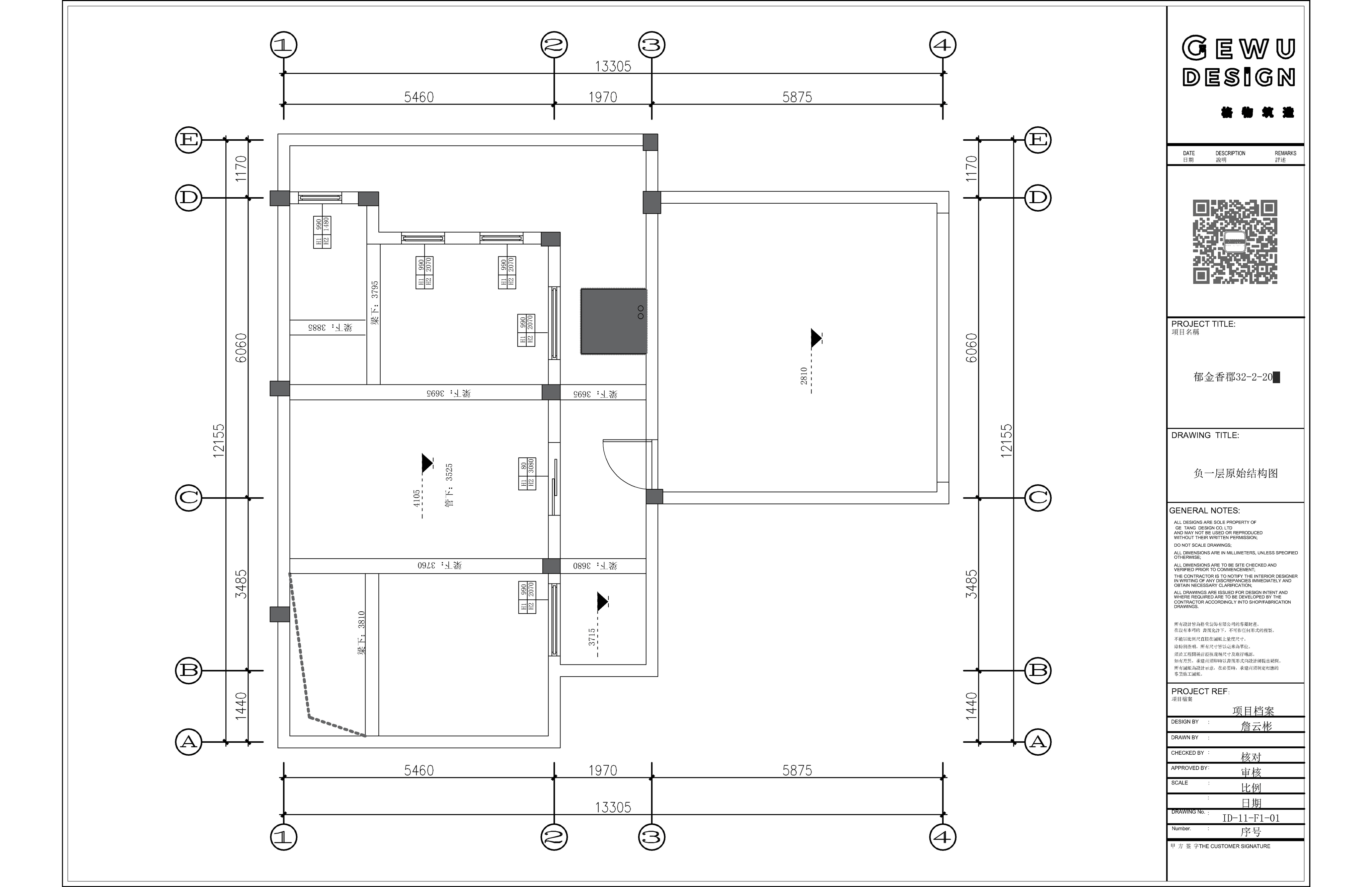
负一层原始结构图

郁金香郡负一原始结构g.gif
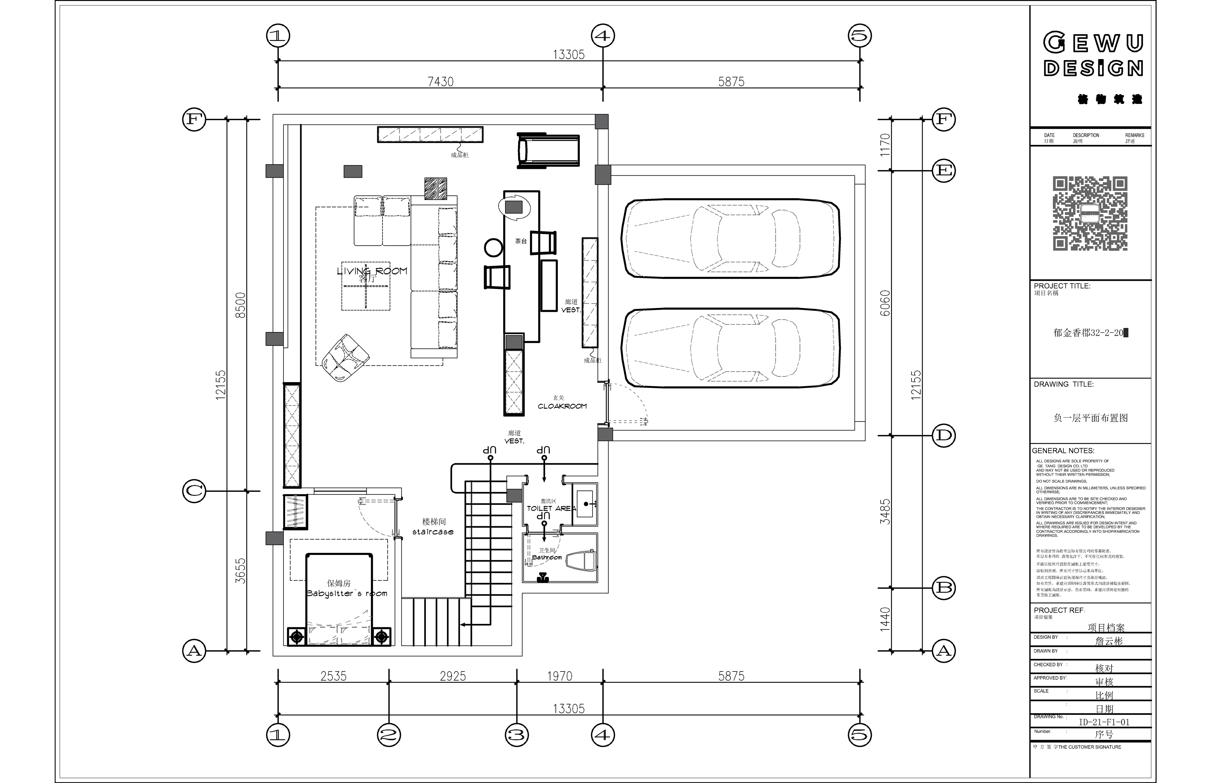
负一层平面布置图

郁金香郡负一平面布置g.gif




回复 支持 反对

使用道具 举报

 楼主| 发表于 2023-10-21 15:43:24 | 显示全部楼层
本帖最后由 zhouyuhang 于 2023-9-3 16:36 编辑

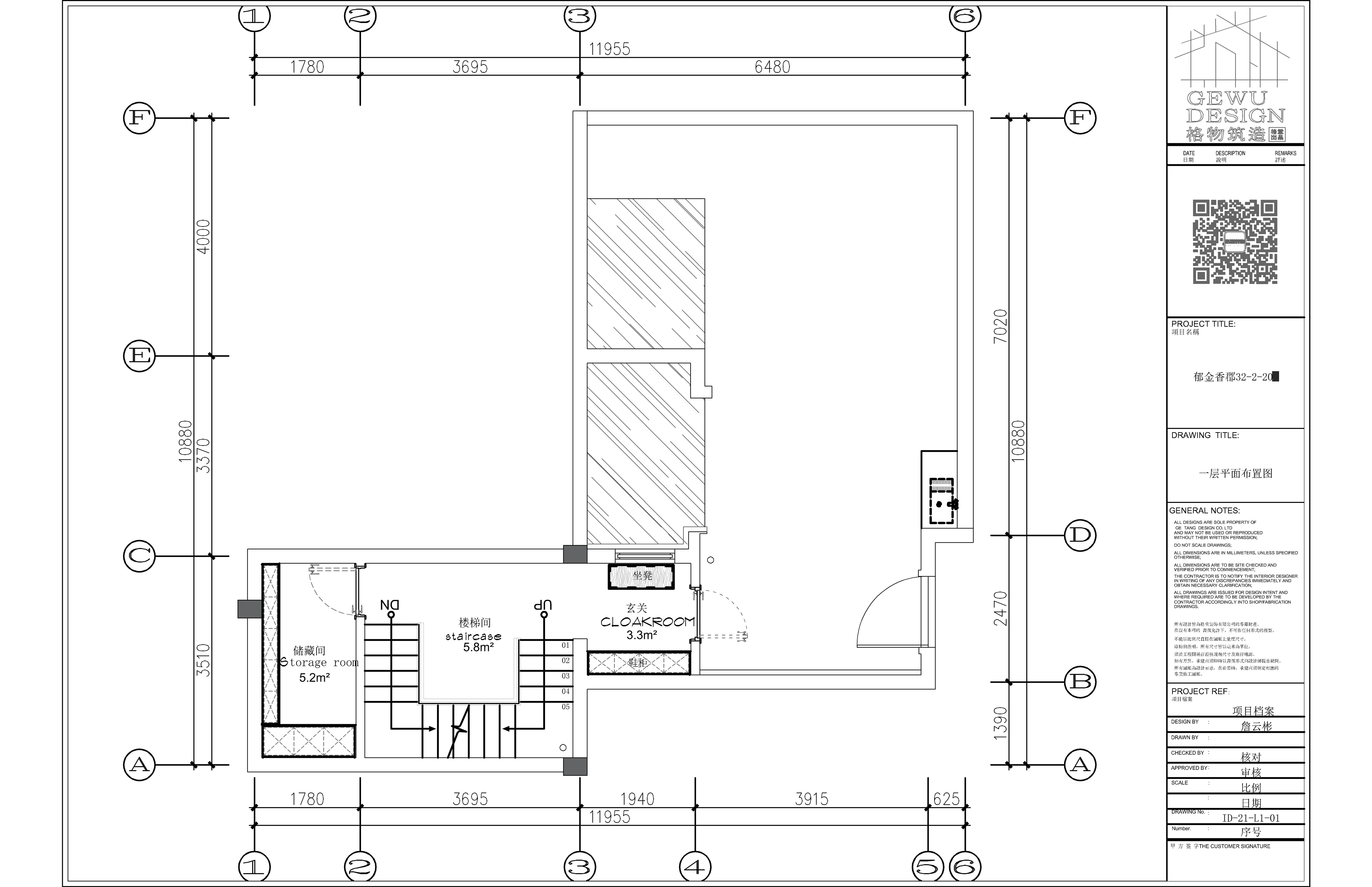
一层原始结构图


一层平面布置图


郁金香郡一层平面布置g.gif
郁金香郡一层原始结构g.gif
回复 支持 反对

使用道具 举报

 楼主| 发表于 2023-10-21 15:43:25 | 显示全部楼层
本帖最后由 zhouyuhang 于 2023-9-3 16:37 编辑

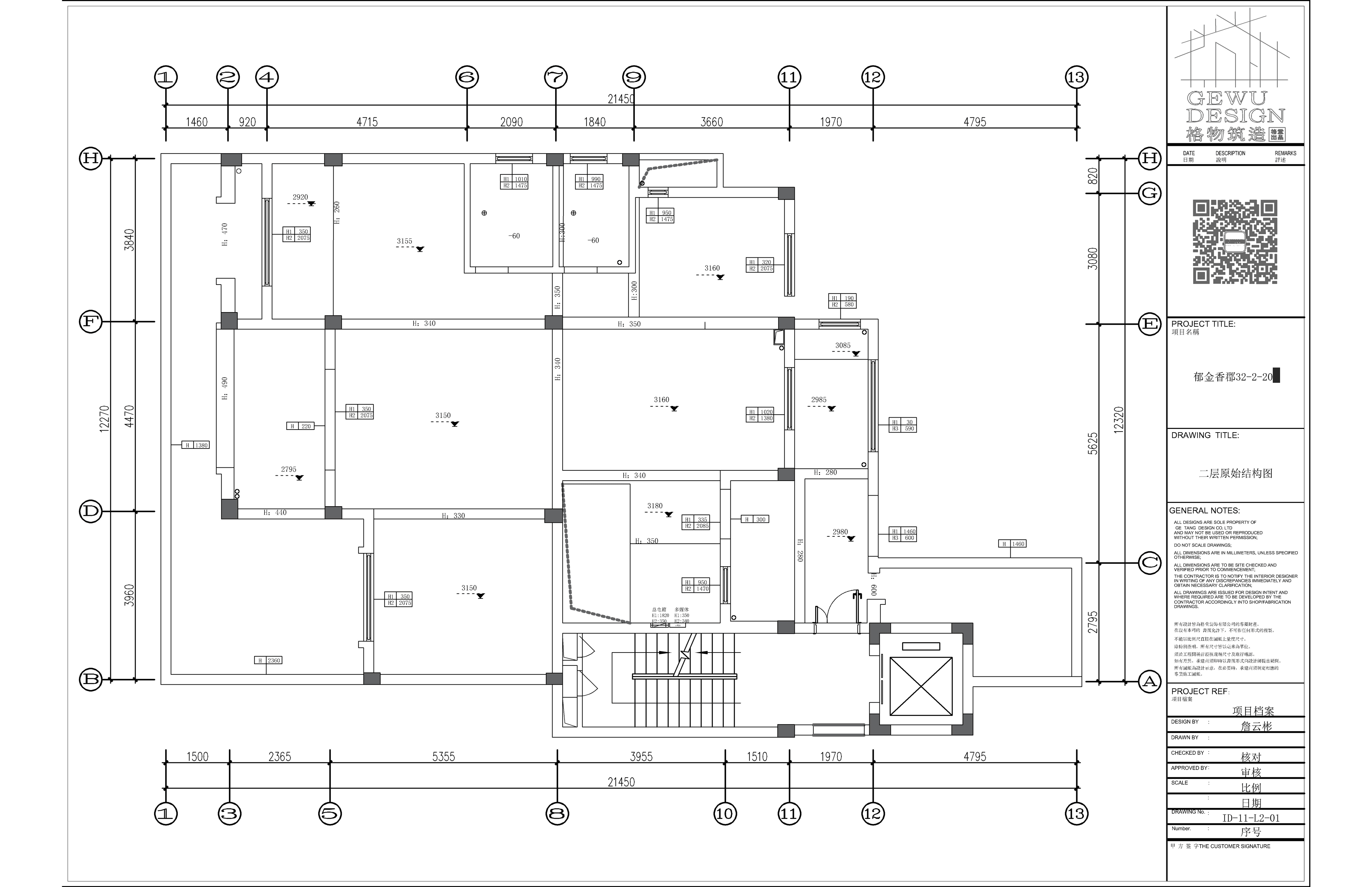
二层原始结构图


郁金香郡32-2-202二层平面g.gif

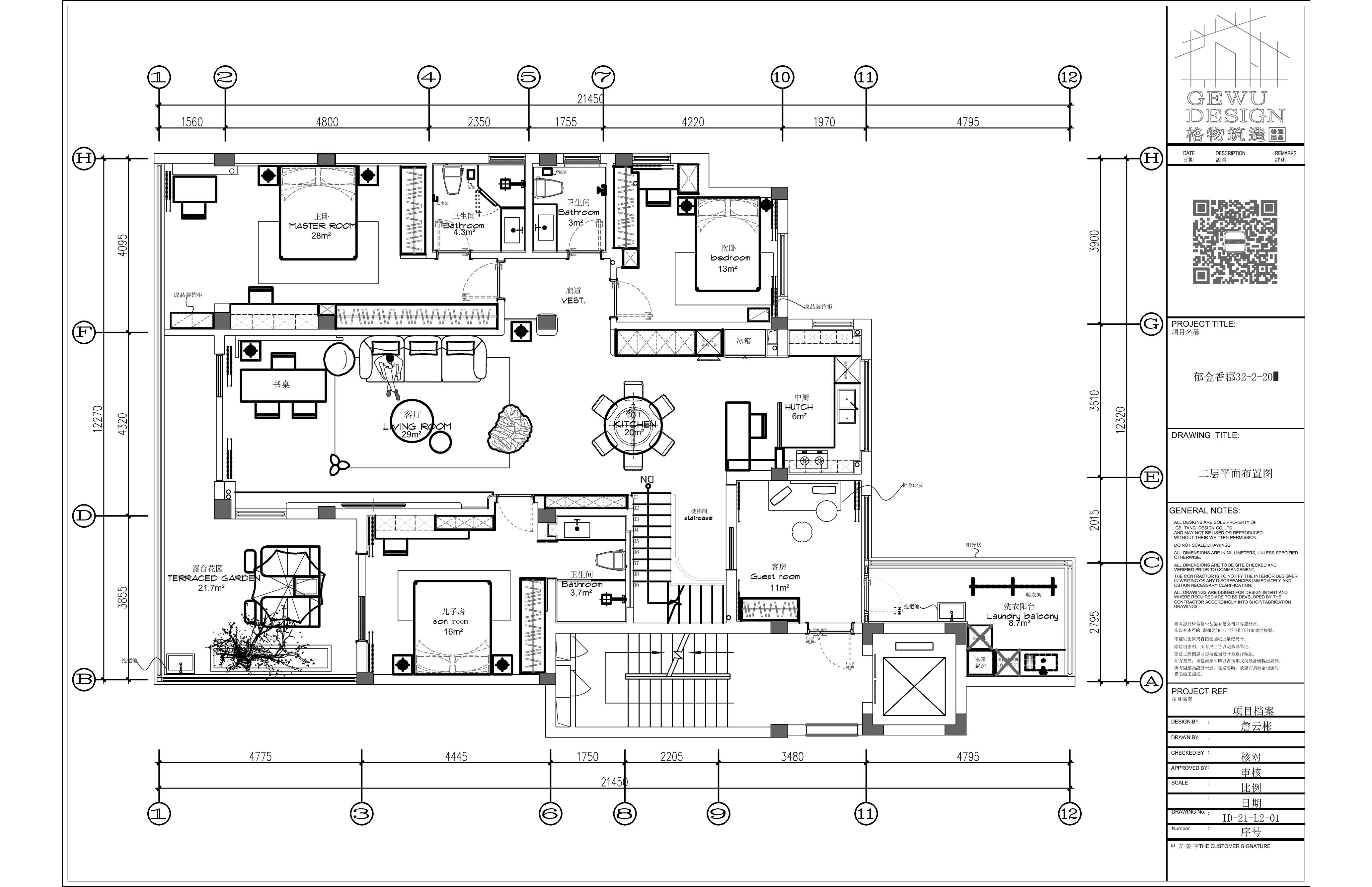
二层平面布置图

郁金香郡32-2-202平面布置g.gif


回复 支持 反对

使用道具 举报

 楼主| 发表于 2023-10-21 15:43:26 | 显示全部楼层
开工前,电梯口墙面和地面已经保护到位。
微信图片_20230903171027.jpg

微信图片_20230903171036.jpg

微信图片_20230903171039.jpg

微信图片_20230903171043.jpg

微信图片_20230903171046.jpg

微信图片_20230903171033.jpg

微信图片_20230903171041.jpg

回复 支持 反对

使用道具 举报

 楼主| 发表于 2023-10-21 15:43:27 | 显示全部楼层
吉时到开工了,恭祝业主大人开工大吉!
仪式很短暂,家居装修却很长……与漫漫人生历程相比,这些短短一瞬,却包含了满满的心意。
我们竭力用自己的专业技能,让每位业主拥有最接近梦想的家!恭祝开工大吉!

开工合影

kaig.jpg

开工第一锤,由业主敲在要拆除的墙体的墙角(即拐角),象征一锤定音的意思,也是新房动土的一种表示方式

cui.jpg

回复 支持 反对

使用道具 举报

 楼主| 发表于 2023-10-21 15:43:28 | 显示全部楼层
拆除阶段:
拆除可以让空间利用更合理。为了整体结构的稳定性和安全性,承重墙是一定不能动的。

微信图片_20230903171757.jpg

微信图片_20230903171810.jpg

微信图片_20230903171812.jpg

微信图片_20230903171814.jpg

微信图片_20230903171822.jpg

微信图片_20230903171819.jpg

回复 支持 反对

使用道具 举报

 楼主| 发表于 2023-10-21 15:43:29 | 显示全部楼层
砌墙

微信图片_20230903172046.jpg

微信图片_20230903172048.jpg

微信图片_20230903172051.jpg

微信图片_20230903172053.jpg

微信图片_20230903172055.jpg

微信图片_20230903172057.jpg

微信图片_20230903172059.jpg

微信图片_20230903172102.jpg

微信图片_20230903172104.jpg

微信图片_20230903172106.jpg

微信图片_20230903172111.jpg

微信图片_20230903172113.jpg

微信图片_20230903172116.jpg
回复 支持 反对

使用道具 举报

 楼主| 发表于 2023-10-21 15:43:30 | 显示全部楼层
本帖最后由 zhouyuhang 于 2023-10-21 16:11 编辑


水电阶段
阳台

微信图片_20231008112330.jpg

微信图片_20231008112403.jpg

微信图片_20231008112405.jpg

微信图片_20231008112407.jpg

微信图片_20231008112410.jpg

微信图片_20231008112412.jpg

微信图片_20231008112415.jpg

微信图片_20231008112421.jpg

微信图片_20231008112426.jpg

微信图片_20231008112432.jpg


回复 支持 反对

使用道具 举报

您需要登录后才可以回帖 登录 | 立即注册

本版积分规则

全国统一客服电话
0570-8028505

24x7小时免费咨询

  • 官方在线客服

    QQ客服:小西

    点击交谈

    QQ客服:良子

    点击交谈

    QQ客服:闵月

    点击交谈
  • 衢州市柯城区财富中心3号楼2楼

  • 衢州格堂装饰有限公司

  • 扫一扫关注官方微信

    获取一手特惠信息

快速回复 返回顶部 返回列表