• 手机版

    扫码体验手机版

  • 微信公众号

    扫码关注公众号

登录注册
游客您好
第三方账号登陆

[江山] 明珠城5-127㎡现代奶油-甜糯生活

[复制链接]
发表于 2023-9-2 17:25:15 | 显示全部楼层 |阅读模式
明珠城5-127㎡现代奶油-甜糯生活

格堂装饰为您全程记录装修全过程!

小区名称
明珠城
房屋面积
127㎡
户型结构
框架结构
装修风格
现代
装修方式
全包
装修造价
查看请联系客服万元
设计师
杨工
项目经理
郑工
装修公司
格堂装饰
完工实景
完工实景
水电全景
水电全景
VR全景
VR全景
设计说明
以奶咖色打底,整体采用低饱和度的色彩,营造出淡雅温馨的居家空间。
更多信息
回复

使用道具 举报

 楼主| 发表于 2023-9-2 17:25:42 | 显示全部楼层
原始结构图
明珠城5-1-1602原始结构图-模型.jpg

回复 支持 反对

使用道具 举报

 楼主| 发表于 2023-9-2 17:26:19 | 显示全部楼层
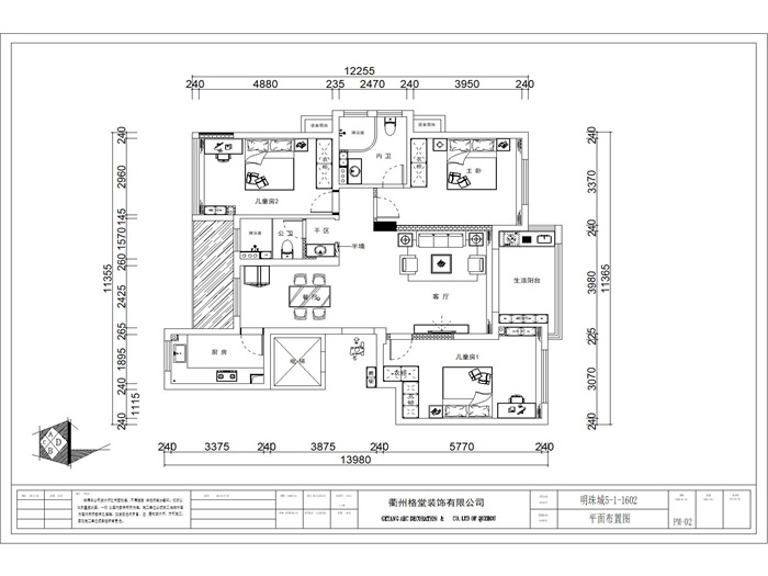
平面布置图
明珠城5-1-1602平面布置图-模型.jpg

回复 支持 反对

使用道具 举报

 楼主| 发表于 2023-9-8 09:40:42 | 显示全部楼层
开工前大门先保护到位

a4d5effd3a182fdd5299c514d506195.jpg

fde211cf35acfbdff11f486907d9dee.jpg

回复 支持 反对

使用道具 举报

 楼主| 发表于 2023-9-8 09:41:54 | 显示全部楼层
开工前门口地面已经保护到位,防止磕碰。

0bc5317936774717ec3d494845e7f84.jpg
回复 支持 反对

使用道具 举报

 楼主| 发表于 2023-9-8 09:43:22 | 显示全部楼层
卫生间的简易马桶安装到位,防止后期施工中沙石堵塞进入,美观又干净

b702b6af2729bd767625b5289c618bd.jpg
回复 支持 反对

使用道具 举报

 楼主| 发表于 2023-9-8 09:44:53 | 显示全部楼层
排水管道用格堂装饰专用保护盖保护,防止后期施工砂石堵塞管道

03681d8fe8dbafc24ab0af31c658e9a.jpg

660950f2990f311a8f9c873711fcd07.jpg

回复 支持 反对

使用道具 举报

 楼主| 发表于 2023-9-8 09:45:47 | 显示全部楼层
燃气已用格堂专门的保护袋保护好

3c9faab661955702f0148fa4c0b8988.jpg
回复 支持 反对

使用道具 举报

 楼主| 发表于 2023-9-8 09:47:32 | 显示全部楼层
送给业主的鲜花已准备好

c13fb566a4a6f96203b63626dc101f4.jpg
回复 支持 反对

使用道具 举报

 楼主| 发表于 2023-9-8 09:48:30 | 显示全部楼层
开工锤已准备好

828ae351a51fd42fe4dcd99de35a802.jpg

回复 支持 反对

使用道具 举报

您需要登录后才可以回帖 登录 | 立即注册

本版积分规则

全国统一客服电话
0570-8028505

24x7小时免费咨询

  • 官方在线客服

    QQ客服:小西

    点击交谈

    QQ客服:良子

    点击交谈

    QQ客服:闵月

    点击交谈
  • 衢州市柯城区财富中心3号楼2楼

  • 衢州格堂装饰有限公司

  • 扫一扫关注官方微信

    获取一手特惠信息

快速回复 返回顶部 返回列表