• 手机版

    扫码体验手机版

  • 微信公众号

    扫码关注公众号

登录注册
游客您好
第三方账号登陆

[江山] 大都荟11-130㎡现代法式-荏苒

[复制链接]
发表于 2023-9-1 16:47:29 | 显示全部楼层 |阅读模式
大都荟11-130㎡现代法式-荏苒

格堂装饰为您全程记录装修全过程!

小区名称
大都荟
房屋面积
130㎡
户型结构
框架结构
装修风格
现代
装修方式
半包
装修造价
查看请联系客服万元
设计师
王工
项目经理
郑工
装修公司
格堂装饰
完工实景
完工实景
水电全景
水电全景
VR全景
VR全景
设计说明
家是物质世界的延伸,是居者的阅历、内心世界的显现,也是居者生活方式与个性的思考体现。
更多信息
回复

使用道具 举报

 楼主| 发表于 2023-9-1 16:48:35 | 显示全部楼层
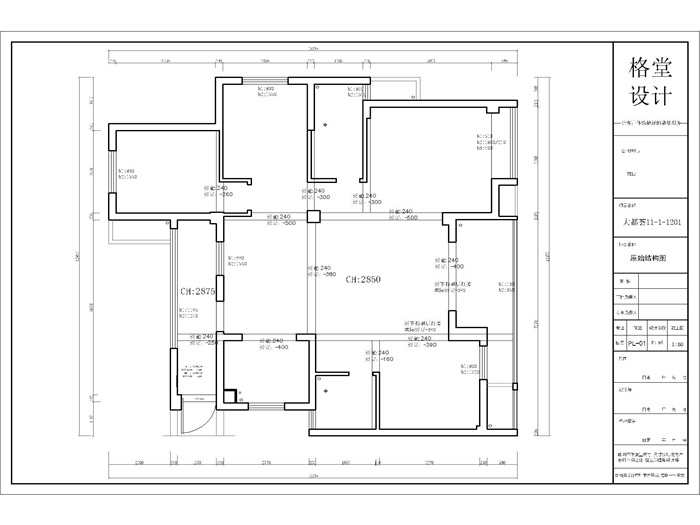
原始结构图
a906fac3a0ef2fbcf5de81f17fbd489.jpg

回复 支持 反对

使用道具 举报

 楼主| 发表于 2023-9-1 16:49:31 | 显示全部楼层
平面布置图
50f641ca1faca324a400ac139e244d5.jpg

回复 支持 反对

使用道具 举报

 楼主| 发表于 2023-9-3 10:40:09 | 显示全部楼层
本帖最后由 格堂红叶 于 2023-9-3 10:52 编辑

开工前大门先保护到位

89c10e852b51a048db37b78b4a67452.jpg

b59351c02f11ade75c73088c078f836.jpg

回复 支持 反对

使用道具 举报

 楼主| 发表于 2023-9-3 10:40:30 | 显示全部楼层
本帖最后由 格堂红叶 于 2023-9-3 10:53 编辑

开工前门口地面已经保护到位,防止磕碰。

323b5972bfb3ff5ed218b160efd4271.jpg
回复 支持 反对

使用道具 举报

 楼主| 发表于 2023-9-3 10:40:57 | 显示全部楼层
本帖最后由 格堂红叶 于 2023-9-3 10:58 编辑

卫生间的简易马桶安装到位,防止后期施工中沙石堵塞进入,美观又干净.

51d7687c63deb7a93b43d9dcb58d996.jpg



回复 支持 反对

使用道具 举报

 楼主| 发表于 2023-9-3 10:41:21 | 显示全部楼层
本帖最后由 格堂红叶 于 2023-9-3 11:00 编辑

排水管道用格堂装饰专用保护盖保护,防止后期施工砂石堵塞管道

8b387a49fdf5597bf2a16abf3cbba67.jpg

71ee606edc9db386ea87ff4aa430306.jpg

fa543b574d26e429c880d0365a3ebf3.jpg

3beb255f7f1f2f47c29cf8924eb2028.jpg

673358e0ef80666caa1559cf7e7bba5.jpg

回复 支持 反对

使用道具 举报

 楼主| 发表于 2023-9-3 10:42:11 | 显示全部楼层
本帖最后由 格堂红叶 于 2023-9-3 11:01 编辑

送给业主的鲜花已准备好

14b1593dd95e9db3b5325ba0016d815.jpg

回复 支持 反对

使用道具 举报

 楼主| 发表于 2023-9-3 11:02:25 | 显示全部楼层
开工锤已准备好

42047867947d7fde3ba49e7ecc4c279.jpg

回复 支持 反对

使用道具 举报

 楼主| 发表于 2023-9-3 11:03:08 | 显示全部楼层
礼炮已准备好

edee37d42d8ab99af2d2da700764876.jpg

回复 支持 反对

使用道具 举报

您需要登录后才可以回帖 登录 | 立即注册

本版积分规则

全国统一客服电话
0570-8028505

24x7小时免费咨询

  • 官方在线客服

    QQ客服:小西

    点击交谈

    QQ客服:良子

    点击交谈

    QQ客服:闵月

    点击交谈
  • 衢州市柯城区财富中心3号楼2楼

  • 衢州格堂装饰有限公司

  • 扫一扫关注官方微信

    获取一手特惠信息

快速回复 返回顶部 返回列表