• 手机版

    扫码体验手机版

  • 微信公众号

    扫码关注公众号

登录注册
游客您好
第三方账号登陆

[江山] 江山揽月湾2-102m2现代风-简约高级

[复制链接]
发表于 2023-8-22 13:45:51 | 显示全部楼层 |阅读模式
江山揽月湾2-102m2现代风-简约高级

格堂装饰为您全程记录装修全过程!

小区名称
揽月湾
房屋面积
102㎡
户型结构
框架结构
装修风格
现代
装修方式
全包
装修造价
查看请联系客服万元
设计师
杨工
项目经理
郑工
装修公司
格堂装饰
完工实景
完工实景
水电全景
水电全景
VR全景
VR全景
设计说明
本案采用黑白灰为主色调,打造一种既简约又不是韵味的格调,彩色和纯白色的搭配,让整体空间保持温馨的感觉。
更多信息
回复

使用道具 举报

 楼主| 发表于 2023-8-22 13:47:00 | 显示全部楼层
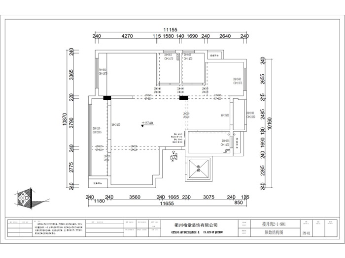
原始结构图

33d06840332e56e38989d14a3de27d1.jpg

回复 支持 反对

使用道具 举报

 楼主| 发表于 2023-8-22 13:48:09 | 显示全部楼层
平面布置图

c8523701cd9e2f2d688228c30fad17d.jpg

回复 支持 反对

使用道具 举报

 楼主| 发表于 2023-8-22 13:59:30 | 显示全部楼层
开工前大门先保护到位

3d7b58e26816a1f4e886fff61db9e1e.jpg

df65b3f1056910c4b2cb9aca379664b.jpg

回复 支持 反对

使用道具 举报

 楼主| 发表于 2023-8-22 14:00:30 | 显示全部楼层
门槛保护到位,防止磕碰

19297ede97bc1ed8c36b85aa9ad1c07.jpg


回复 支持 反对

使用道具 举报

 楼主| 发表于 2023-8-22 14:01:31 | 显示全部楼层
卫生间的简易马桶安装到位,防止后期施工中沙石堵塞进入,美观又干净!

a4e92a3d87228a89126d7751ff93261.jpg


回复 支持 反对

使用道具 举报

 楼主| 发表于 2023-8-22 14:03:20 | 显示全部楼层
排水管道用格堂装饰专用保护盖保护,防止后期施工砂石堵塞管道

894b9fc757f118a746b45e48a38c4d4.jpg

c9bd024223c867be2a6cc0551e490f3.jpg

d2aa1d39fa7807b70af9e5cf9b95233.jpg

e1d73e914fa3d759a6568355d473c04.jpg

回复 支持 反对

使用道具 举报

 楼主| 发表于 2023-8-22 14:05:03 | 显示全部楼层
燃气已用格堂专门的保护袋保护好

819d9fc56af7ec9dcf77efac58248f8.jpg

回复 支持 反对

使用道具 举报

 楼主| 发表于 2023-8-22 14:06:25 | 显示全部楼层
送给业主的鲜花已准备好

b48f6f0482984ca0ea7e7176710ea87.jpg
回复 支持 反对

使用道具 举报

 楼主| 发表于 2023-8-22 14:07:57 | 显示全部楼层
开工锤已准备好

54965ea7fa0d8c460dbe32139c22c16.jpg


回复 支持 反对

使用道具 举报

您需要登录后才可以回帖 登录 | 立即注册

本版积分规则

全国统一客服电话
0570-8028505

24x7小时免费咨询

  • 官方在线客服

    QQ客服:小西

    点击交谈

    QQ客服:良子

    点击交谈

    QQ客服:闵月

    点击交谈
  • 衢州市柯城区财富中心3号楼2楼

  • 衢州格堂装饰有限公司

  • 扫一扫关注官方微信

    获取一手特惠信息

快速回复 返回顶部 返回列表