• 手机版

    扫码体验手机版

  • 微信公众号

    扫码关注公众号

登录注册
游客您好
第三方账号登陆

[衢州] 牡丹园7-3-90#160㎡现代——诗意的呼唤

[复制链接]
发表于 2023-7-13 14:04:16 | 显示全部楼层 |阅读模式
牡丹园7-3-90#160㎡现代——诗意的呼唤

格堂装饰为您全程记录装修全过程!

小区名称
牡丹园
房屋面积
160㎡
户型结构
套房
装修风格
现代
装修方式
半包
装修造价
查看请联系客服万元
设计师
王工
项目经理
王工
装修公司
格堂装饰
完工实景
完工实景
水电全景
水电全景
VR全景
VR全景
设计说明
原木色是对自然最好的诠释,让整个家居环境散发出一种艺人的气氛,让人置身其中,能够获得舒适与放松。在钢筋水泥里奔波劳碌的都市人,最渴望回归自然,而质朴无华、质感天然的原木材质,往往会给人一种原汁原味的大自然韵味。
更多信息
效果图
微信图片_20230711145611.png

微信图片_20230711145605.png

微信图片_20230711145608.png

微信图片_20230711145614.png
回复

使用道具 举报

 楼主| 发表于 2023-7-13 14:04:59 | 显示全部楼层
回复 支持 反对

使用道具 举报

 楼主| 发表于 2023-7-13 14:05:30 | 显示全部楼层
原始结构图:
牡丹园7-3-901原始结构图_1.png
回复 支持 反对

使用道具 举报

 楼主| 发表于 2023-7-13 14:05:55 | 显示全部楼层
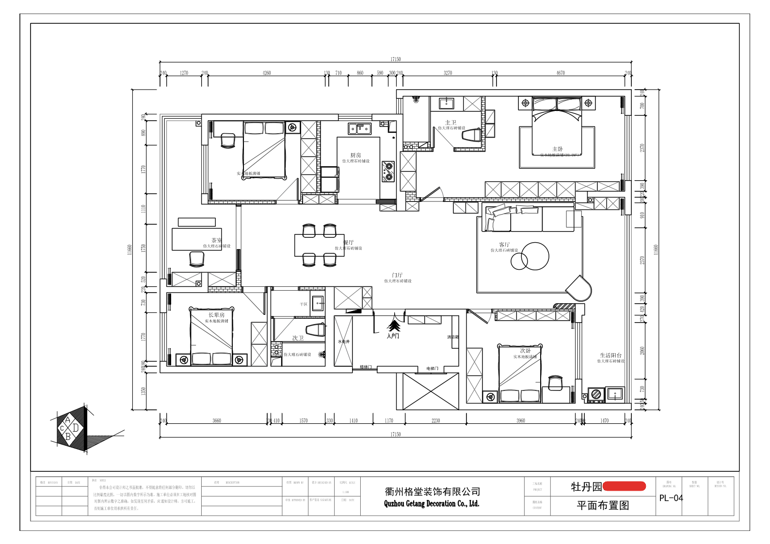
平面布置图:
牡丹园7-3-901平面图_1.png
回复 支持 反对

使用道具 举报

 楼主| 发表于 2023-7-13 14:06:40 | 显示全部楼层
开工前,电梯口墙面和地面已经保护到位
微信图片_20230711084141.jpg

微信图片_20230711084144.jpg

微信图片_20230711084147.jpg

微信图片_20230711084153.jpg
回复 支持 反对

使用道具 举报

 楼主| 发表于 2023-7-13 14:07:28 | 显示全部楼层
大门已经保护到位。
微信图片_20230711084150.jpg
回复 支持 反对

使用道具 举报

 楼主| 发表于 2023-7-13 14:09:10 | 显示全部楼层
煤气表已经保护到位
微信图片_20230711084122.jpg
回复 支持 反对

使用道具 举报

 楼主| 发表于 2023-7-13 14:09:35 | 显示全部楼层
临时小便池已经安放好了:每一个施工现场都会配备临时小便斗,并且时刻保持干净卫生,保证工地环境干净整洁。
微信图片_20230711084111.jpg
回复 支持 反对

使用道具 举报

 楼主| 发表于 2023-7-13 14:10:04 | 显示全部楼层
开工仪式准备,开工横幅、鲜花、礼花准备到位,就等吉时!
微信图片_20230711084124.jpg
回复 支持 反对

使用道具 举报

 楼主| 发表于 2023-7-13 14:13:44 | 显示全部楼层
设计师和项目经理、师傅以及客户一起在沟通图纸上的几个重要的需要拆改放样的地方,客户参与也让客户有个直观印象。
IMG_20230710_101437.jpg

IMG_20230710_101443.jpg

IMG_20230710_101453.jpg

IMG_20230710_101519.jpg

IMG_20230710_101543.jpg

IMG_20230710_101552.jpg

IMG_20230710_101602.jpg

IMG_20230710_101617.jpg

IMG_20230710_101955.jpg

IMG_20230710_102016.jpg

IMG_20230710_102025.jpg

IMG_20230710_102038.jpg

IMG_20230710_102112.jpg

IMG_20230710_102124.jpg

IMG_20230710_102145.jpg

IMG_20230710_102331.jpg

IMG_20230710_102340.jpg

IMG_20230710_102406.jpg

IMG_20230710_102616.jpg
回复 支持 反对

使用道具 举报

您需要登录后才可以回帖 登录 | 立即注册

本版积分规则

全国统一客服电话
0570-8028505

24x7小时免费咨询

  • 官方在线客服

    QQ客服:小西

    点击交谈

    QQ客服:良子

    点击交谈

    QQ客服:闵月

    点击交谈
  • 衢州市柯城区财富中心3号楼2楼

  • 衢州格堂装饰有限公司

  • 扫一扫关注官方微信

    获取一手特惠信息

快速回复 返回顶部 返回列表