• 手机版

    扫码体验手机版

  • 微信公众号

    扫码关注公众号

登录注册
游客您好
第三方账号登陆

[江山] 须江府7-170m2现代风格-简约时尚

[复制链接]
发表于 2023-7-11 14:24:12 | 显示全部楼层 |阅读模式
须江府7-170m2现代风格-简约时尚

格堂装饰为您全程记录装修全过程!

小区名称
须江府
房屋面积
170㎡
户型结构
框架结构
装修风格
现代
装修方式
半包
装修造价
查看请联系客服万元
设计师
杨工
项目经理
郑工
装修公司
格堂装饰
完工实景
完工实景
水电全景
水电全景
VR全景
VR全景
设计说明
以现代风格为基础,运用简单的吊顶线条与低饱和的木质肌理勾勒出空间的质感,营造出温馨时尚的家居空间。
更多信息
回复

使用道具 举报

 楼主| 发表于 2023-7-11 15:07:25 | 显示全部楼层
一楼原始结构图
7fe0a82a64e208f70eb48affa0732e9.jpg
回复 支持 反对

使用道具 举报

 楼主| 发表于 2023-7-11 15:08:27 | 显示全部楼层
本帖最后由 格堂红叶 于 2023-7-11 15:09 编辑

二楼原始结构图
fe9fd0e7b94731914f8923607dfabc0.jpg
回复 支持 反对

使用道具 举报

 楼主| 发表于 2023-7-11 15:11:31 | 显示全部楼层
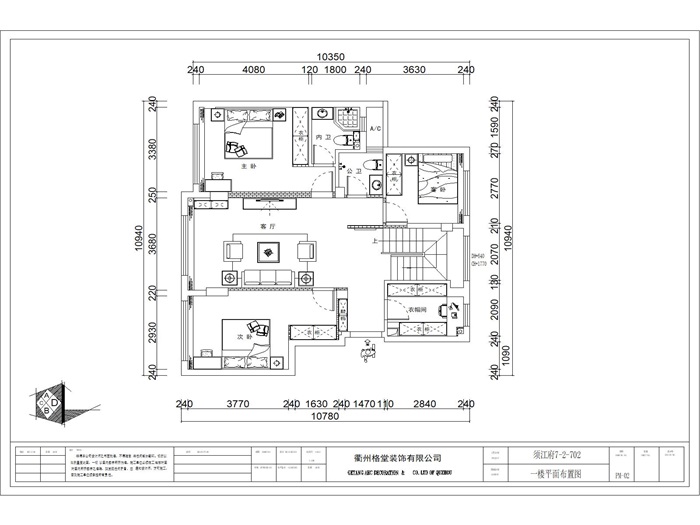
一楼平面布置图
add4a5e347d44e8ff93a4428ca81de0.jpg
回复 支持 反对

使用道具 举报

 楼主| 发表于 2023-7-11 15:12:24 | 显示全部楼层
二楼平面布置图
c9bbc392bfa298957924c731d3c77d4.jpg
回复 支持 反对

使用道具 举报

 楼主| 发表于 2023-7-12 10:37:14 | 显示全部楼层
开工前大门先保护到位

aba55d790cceb86092e9b8632a6e4cf.jpg

51ad76cb83c19276388ebb144c5cc62.jpg

回复 支持 反对

使用道具 举报

 楼主| 发表于 2023-7-12 10:38:13 | 显示全部楼层
门槛保护到位,防止磕碰

6aba830cd1d8d9e31d33f80a5880060.jpg


回复 支持 反对

使用道具 举报

 楼主| 发表于 2023-7-12 10:39:26 | 显示全部楼层
卫生间的简易马桶安装到位,防止后期施工中沙石堵塞进入,美观又干净!

531716af117928ec4b7d07cf31ff33c.jpg

回复 支持 反对

使用道具 举报

 楼主| 发表于 2023-7-12 10:40:35 | 显示全部楼层
排水管道用格堂装饰专用保护盖保护,防止后期施工砂石堵塞管道

6eed3c14451bae81c486aa713276853.jpg

249547d62b259608947ed9e9a4618b3.jpg

e04717d31b9bc4e751601f5be1fd726.jpg

7f09a0c51296ab96a4e7bfca1beb6ef.jpg

a3fd477d78ee3c563a1033e0b4d4d46.jpg

回复 支持 反对

使用道具 举报

 楼主| 发表于 2023-7-12 10:42:26 | 显示全部楼层
燃气已用格堂专门的保护袋保护好

5a18c567eb133a18f5edb801416b8bb.jpg


回复 支持 反对

使用道具 举报

您需要登录后才可以回帖 登录 | 立即注册

本版积分规则

全国统一客服电话
0570-8028505

24x7小时免费咨询

  • 官方在线客服

    QQ客服:小西

    点击交谈

    QQ客服:良子

    点击交谈

    QQ客服:闵月

    点击交谈
  • 衢州市柯城区财富中心3号楼2楼

  • 衢州格堂装饰有限公司

  • 扫一扫关注官方微信

    获取一手特惠信息

快速回复 返回顶部 返回列表