• 手机版

    扫码体验手机版

  • 微信公众号

    扫码关注公众号

登录注册
游客您好
第三方账号登陆

[衢州] 云澜府21-1-5#106㎡现代原木——简约原木风,干净纯粹

[复制链接]
发表于 2023-7-9 17:48:15 | 显示全部楼层 |阅读模式
云澜府21-1-5#106㎡现代原木——简约原木风,干净纯粹

格堂装饰为您全程记录装修全过程!

小区名称
云澜府
房屋面积
106㎡
户型结构
套房
装修风格
现代
装修方式
全包
装修造价
查看请联系客服万元
设计师
吴工
项目经理
余工
装修公司
格堂装饰
完工实景
完工实景
水电全景
水电全景
VR全景
VR全景
设计说明
色调大面积运用木纹颜色,搭配饱和度较低的白暖灰,形成低饱和非常极简耐看的风格
更多信息
本帖最后由 格堂王姐 于 2023-7-11 16:49 编辑

效果图

微信图片_20230711162810.png

微信图片_20230711162824.jpg



回复

使用道具 举报

 楼主| 发表于 2023-7-9 17:56:13 | 显示全部楼层
本帖最后由 格堂王姐 于 2024-1-15 11:44 编辑

目      录


回复 支持 反对

使用道具 举报

 楼主| 发表于 2023-7-9 17:57:15 | 显示全部楼层
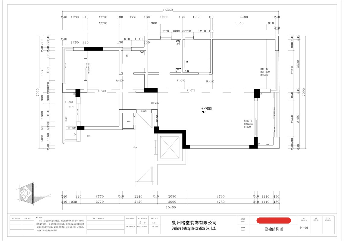
原始结构图


微信图片_20230709175022.jpg


平面布置图


微信图片_20230709175001.jpg
回复 支持 反对

使用道具 举报

 楼主| 发表于 2023-7-9 17:58:11 | 显示全部楼层
本帖最后由 格堂王姐 于 2023-7-10 14:45 编辑

大门已经保护到位。
微信图片_20230709175046.jpg

卫生间简易马桶安装到位,防止后期施工中沙石堵塞进入,美观实用
IMG_4845.JPG

煤气表保护到位
IMG_4846.JPG

排水管道用格堂专用保护盖保护,防止后期施工中砂石 堵塞管道

IMG_4843.JPG

IMG_4844.JPG

回复 支持 反对

使用道具 举报

 楼主| 发表于 2023-7-9 17:58:27 | 显示全部楼层
本帖最后由 格堂王姐 于 2023-7-10 14:46 编辑

电梯口墙面和地面都贴好了格堂专用的保护垫。
IMG_4833.JPG

IMG_4834.JPG


IMG_4835.JPG

IMG_4836.JPG

IMG_4837.JPG

电梯口对角

IMG_4838.JPG

IMG_4839.JPG

IMG_4840.JPG

IMG_4841.JPG

IMG_4842.JPG

回复 支持 反对

使用道具 举报

 楼主| 发表于 2023-7-9 17:59:45 | 显示全部楼层
开工仪式准备,开工横幅、鲜花、礼花准备到位,就等吉时!
开工桌摆好准备
微信图片_20230709175052.jpg

吉时到开工了,恭祝业主大人开工大吉!
仪式很短暂,家居装修却很长……与漫漫人生历程相比,这些短短一瞬,却包含了满满的心意。
我们竭力用自己的专业技能,让每位业主拥有最接近梦想的家!恭祝开工大吉!

开工合影
微信图片_20230709175108.jpg

开工第一锤,由业主敲在要拆除的墙体的墙角(即拐角),
象征一锤定音的意思,也是新房动土的一种表示方式

业主敲下第一锤
微信图片_20230709175124.jpg

敲完的痕迹
微信图片_20230709175131.jpg

回复 支持 反对

使用道具 举报

 楼主| 发表于 2023-7-9 18:00:11 | 显示全部楼层
拆改放样
微信图片_20230709175146.jpg

微信图片_20230709175150.jpg

微信图片_20230709175153.jpg

微信图片_20230709175157.jpg
回复 支持 反对

使用道具 举报

 楼主| 发表于 2023-7-15 16:24:17 | 显示全部楼层
拆改阶段

微信图片_20230715162236.jpg



微信图片_20230715162248.jpg


微信图片_20230715162251.jpg


微信图片_20230715162254.jpg


微信图片_20230715162257.jpg


微信图片_20230715162300.jpg
回复 支持 反对

使用道具 举报

 楼主| 发表于 2023-7-18 10:06:43 | 显示全部楼层
砌墙放样

微信图片_20230718100327.jpg


微信图片_20230718100340.jpg


微信图片_20230718100343.jpg


微信图片_20230718100347.jpg


微信图片_20230718100350.jpg


微信图片_20230718100358.jpg


微信图片_20230718100401.jpg


微信图片_20230718100427.jpg


微信图片_20230718100430.jpg

微信图片_20230718100433.jpg


微信图片_20230718100436.jpg
回复 支持 反对

使用道具 举报

 楼主| 发表于 2023-7-21 09:22:20 | 显示全部楼层
砌墙中途

微信图片_20230721091908.jpg


微信图片_20230721091920.jpg


微信图片_20230721091924.jpg


微信图片_20230721091927.jpg


微信图片_20230721091930.jpg


微信图片_20230721091934.jpg


新老墙交接处植入钢筋,采用膨胀螺栓连接墙体,可以有效加大新老墙拉结力,增加稳定性,防止后期墙体开裂,加固新老墙。
微信图片_20230721091937.jpg


微信图片_20230721091940.jpg

回复 支持 反对

使用道具 举报

您需要登录后才可以回帖 登录 | 立即注册

本版积分规则

全国统一客服电话
0570-8028505

24x7小时免费咨询

  • 官方在线客服

    QQ客服:小西

    点击交谈

    QQ客服:良子

    点击交谈

    QQ客服:闵月

    点击交谈
  • 衢州市柯城区财富中心3号楼2楼

  • 衢州格堂装饰有限公司

  • 扫一扫关注官方微信

    获取一手特惠信息

快速回复 返回顶部 返回列表