• 手机版

    扫码体验手机版

  • 微信公众号

    扫码关注公众号

登录注册
游客您好
第三方账号登陆

招贤里7-1-14#108㎡现代—— 清和

[复制链接]
发表于 2023-7-5 15:10:44 | 显示全部楼层 |阅读模式
招贤里7-1-14#108㎡现代—— 清和

格堂装饰实景完工案例欣赏!

小区名称
招贤里
房屋面积
108㎡
户型结构
套房
装修风格
现代
装修方式
半包
装修造价
查看请联系客服万元
设计师
毛工
项目经理
周工
装修公司
格堂装饰
装修过程
装修日记
设计说明
清和
于纯粹的色光之中
窥探自我的精神世界
以不同的材质语言
作出艺术化的解读
对称笔法与精致细节呼应
透露出几分从容优雅
绘就宁静时光
回归生活本真
更多信息
7E1A7150.jpg


回复

使用道具 举报

 楼主| 发表于 2023-7-5 15:11:30 | 显示全部楼层
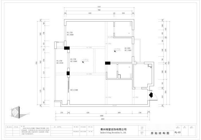
原始构图▼▼▼

170711ezxbmmm0ggyjj0q8.jpg

平面布置图▼▼▼




170742fjju9lmpm11lwj0j.jpg


回复 支持 反对

使用道具 举报

 楼主| 发表于 2023-7-5 15:12:08 | 显示全部楼层
客厅▼▼▼



7E1A7124.jpg


7E1A7128.jpg


7E1A7129.jpg


7E1A7130.jpg


7E1A7135.jpg


7E1A7136.jpg


7E1A7138.jpg




回复 支持 反对

使用道具 举报

 楼主| 发表于 2023-7-5 15:12:38 | 显示全部楼层
餐厅▼▼▼



7E1A7150.jpg


7E1A7153.jpg


7E1A7154.jpg


7E1A7155.jpg




回复 支持 反对

使用道具 举报

 楼主| 发表于 2023-7-5 15:12:52 | 显示全部楼层
玄关▼▼▼



7E1A7145.jpg


回复 支持 反对

使用道具 举报

 楼主| 发表于 2023-7-5 15:13:10 | 显示全部楼层
厨房▼▼▼



7E1A7146.jpg


7E1A7147.jpg




回复 支持 反对

使用道具 举报

 楼主| 发表于 2023-7-5 15:13:37 | 显示全部楼层
主卧▼▼▼



7E1A7116.jpg


7E1A7118.jpg


7E1A7122.jpg


7E1A7123.jpg




回复 支持 反对

使用道具 举报

 楼主| 发表于 2023-7-5 15:13:52 | 显示全部楼层
次卧▼▼▼



7E1A7166.jpg


回复 支持 反对

使用道具 举报

 楼主| 发表于 2023-7-5 15:14:17 | 显示全部楼层
主卫▼▼▼



7E1A7109.jpg


7E1A7110.jpg


7E1A7112.jpg




回复 支持 反对

使用道具 举报

 楼主| 发表于 2023-7-5 15:14:35 | 显示全部楼层
次卫▼▼▼



7E1A7113.jpg


7E1A7114.jpg




回复 支持 反对

使用道具 举报

您需要登录后才可以回帖 登录 | 立即注册

本版积分规则

全国统一客服电话
0570-8028505

24x7小时免费咨询

  • 官方在线客服

    QQ客服:小西

    点击交谈

    QQ客服:良子

    点击交谈

    QQ客服:闵月

    点击交谈
  • 衢州市柯城区财富中心3号楼2楼

  • 衢州格堂装饰有限公司

  • 扫一扫关注官方微信

    获取一手特惠信息

快速回复 返回顶部 返回列表