• 手机版

    扫码体验手机版

  • 微信公众号

    扫码关注公众号

登录注册
游客您好
第三方账号登陆

[衢州] 云澜府24-1-5#131㎡现代简约——向阳而居

[复制链接]
发表于 2023-6-30 08:42:10 | 显示全部楼层 |阅读模式
云澜府24-1-5#131㎡现代简约——向阳而居

格堂装饰为您全程记录装修全过程!

小区名称
云澜府
房屋面积
131㎡
户型结构
套房
装修风格
现代
装修方式
半包
装修造价
查看请联系客服万元
设计师
王工
项目经理
刘工
装修公司
格堂装饰
完工实景
完工实景
水电全景
水电全景
VR全景
VR全景
设计说明
温暖是一种潜意识,材质和色调可以将它表达出来,用心设计的日常,让生活乎本心,更呵护本性。好的设计也许改变不了所有,却足以重塑美好的日常。
更多信息
本帖最后由 格堂王姐 于 2023-7-1 11:14 编辑

效果图

微信图片_20230701111002.png


微信图片_20230701111007.png
回复

使用道具 举报

 楼主| 发表于 2023-6-30 08:42:47 | 显示全部楼层
本帖最后由 格堂王姐 于 2023-12-16 16:30 编辑

目      录


回复 支持 反对

使用道具 举报

 楼主| 发表于 2023-6-30 08:43:11 | 显示全部楼层
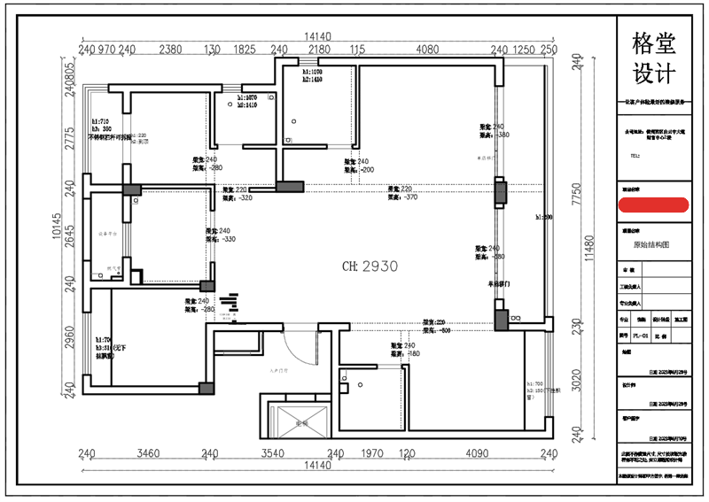
本帖最后由 格堂王姐 于 2023-7-1 11:15 编辑

原始结构图
微信图片_20230701110941.png

平面布置图



微信图片_20230701110917.png
回复 支持 反对

使用道具 举报

 楼主| 发表于 2023-6-30 08:44:20 | 显示全部楼层
本帖最后由 格堂王姐 于 2023-7-10 14:50 编辑

开工前大门先要保护起来,防止磕碰哦!
IMG_4787.JPG

临时马桶:每一个施工现场都会配备临时小便斗,并且时刻保持干净卫生、保证工地环境干净、整洁。

IMG_4831.JPG

煤气表已经保护到位。
IMG_4830.JPG

排水管道用格堂专用保护盖保护,防止后期施工中砂石 堵塞管道 IMG_4843.JPG

回复 支持 反对

使用道具 举报

 楼主| 发表于 2023-6-30 08:44:54 | 显示全部楼层
本帖最后由 格堂王姐 于 2023-7-10 14:51 编辑

电梯口墙面和地面都贴好了格堂专用的保护垫。

IMG_4788.JPG
IMG_4789.JPG


IMG_4790.JPG

IMG_4791.JPG

IMG_4792.JPG

电梯口对角

IMG_4793.JPG

IMG_4794.JPG

IMG_4795.JPG

IMG_4796.JPG
IMG_4797.JPG
回复 支持 反对

使用道具 举报

 楼主| 发表于 2023-6-30 08:58:31 | 显示全部楼层
本帖最后由 格堂王姐 于 2023-6-30 09:27 编辑

开工了!
一切准备就绪,等待开工吉时
仪式很短暂,家居装修却很长……与漫漫人生历程相比,这些短短一瞬,却包含了满满的心意。我们竭力用自己的专业技能,让每位业主拥有最接近梦想的家!恭祝开工大吉!

开工桌摆好准备
微信图片_20230630085318.jpg

开工合影
微信图片_20230630084853.jpg

业主敲第一锤
装修开工第一锤应该敲在要拆除的墙体的墙角(即拐角),象征一锤定音的意思,也是新房动土的一种表示方式。
微信图片_20230630084901.jpg

微信图片_20230630084906.jpg

敲完的痕迹
微信图片_20230630084912.jpg
回复 支持 反对

使用道具 举报

 楼主| 发表于 2023-7-9 17:36:40 | 显示全部楼层
拆改

微信图片_20230709173405.jpg

微信图片_20230709173410.jpg

微信图片_20230709173413.jpg

微信图片_20230709173416.jpg

微信图片_20230709173418.jpg

微信图片_20230709173421.jpg

微信图片_20230709173424.jpg

微信图片_20230709173428.jpg

微信图片_20230709173431.jpg

微信图片_20230709173435.jpg

微信图片_20230709173438.jpg

微信图片_20230709173441.jpg
回复 支持 反对

使用道具 举报

 楼主| 发表于 2023-7-9 17:38:00 | 显示全部楼层
砌墙放样

微信图片_20230709173242.jpg


微信图片_20230709173253.jpg

微信图片_20230709173256.jpg

微信图片_20230709173259.jpg

微信图片_20230709173302.jpg

微信图片_20230709173305.jpg

微信图片_20230709173308.jpg

微信图片_20230709173311.jpg

微信图片_20230709173314.jpg

微信图片_20230709173317.jpg
回复 支持 反对

使用道具 举报

 楼主| 发表于 2023-7-10 14:57:12 | 显示全部楼层
砌墙中途:
砌墙前砖块进行浇水湿润,有效防止砖块吸水过快与砂浆的粘结力削弱,导致降低砌体的抗压、抗剪强度。
新老墙交界处已放置膨胀螺栓,起到连接砌体防止开裂的作用。新墙与老墙、梁、柱位置已加钉钢丝网,有效防止后期开裂。
微信图片_20230710145338.jpg

微信图片_20230710145353.jpg

微信图片_20230710145356.jpg

微信图片_20230710145400.jpg

微信图片_20230710145403.jpg

微信图片_20230710145407.jpg

微信图片_20230710145410.jpg

微信图片_20230710145429.jpg

微信图片_20230710145434.jpg
回复 支持 反对

使用道具 举报

 楼主| 发表于 2023-7-10 14:58:08 | 显示全部楼层
客厅砌墙情况
IMG_4798.JPG

IMG_4799.JPG

IMG_4800.JPG

IMG_4801.JPG

IMG_4802.JPG

IMG_4803.JPG

IMG_4804.JPG

IMG_4805.JPG

IMG_4806.JPG

IMG_4807.JPG

回复 支持 反对

使用道具 举报

您需要登录后才可以回帖 登录 | 立即注册

本版积分规则

全国统一客服电话
0570-8028505

24x7小时免费咨询

  • 官方在线客服

    QQ客服:小西

    点击交谈

    QQ客服:良子

    点击交谈

    QQ客服:闵月

    点击交谈
  • 衢州市柯城区财富中心3号楼2楼

  • 衢州格堂装饰有限公司

  • 扫一扫关注官方微信

    获取一手特惠信息

快速回复 返回顶部 返回列表