• 手机版

    扫码体验手机版

  • 微信公众号

    扫码关注公众号

登录注册
游客您好
第三方账号登陆

[衢州] 文华园22-3-40#89㎡意式-森系意式极简

[复制链接]
发表于 2023-6-29 16:21:31 | 显示全部楼层 |阅读模式
文华园22-3-40#89㎡意式-森系意式极简

格堂装饰为您全程记录装修全过程!

小区名称
文华园
房屋面积
89㎡
户型结构
套房
装修风格
意式极简
装修方式
半包
装修造价
查看请联系客服万元
设计师
吴工
项目经理
余工
装修公司
格堂装饰
完工实景
完工实景
水电全景
水电全景
VR全景
VR全景
设计说明
色调大面积运用深棕色木纹颜色,搭配饱和度较低的黑白灰,形成低饱和非常极简耐看的风格
更多信息
2.jpg 1.jpg
回复

使用道具 举报

 楼主| 发表于 2023-6-29 16:29:06 | 显示全部楼层
本帖最后由 zhouyuhang 于 2023-12-7 14:48 编辑


回复 支持 反对

使用道具 举报

 楼主| 发表于 2023-6-29 16:31:57 | 显示全部楼层
本帖最后由 zhouyuhang 于 2023-6-29 17:45 编辑

原始平面图


微信图片_20230629162836.jpg
回复 支持 反对

使用道具 举报

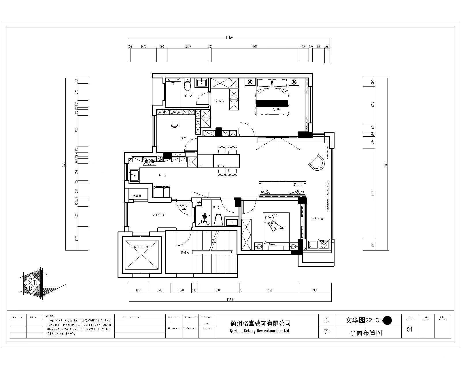
 楼主| 发表于 2023-6-29 16:34:05 | 显示全部楼层
本帖最后由 zhouyuhang 于 2023-6-29 17:45 编辑

平面布置图
3.jpg
回复 支持 反对

使用道具 举报

 楼主| 发表于 2023-6-29 17:40:01 | 显示全部楼层
本帖最后由 zhouyuhang 于 2023-7-8 16:12 编辑

开工前,电梯口墙面和地面已经保护到位。
微信图片_20230629173646.jpg
微信图片_20230629173650.jpg

微信图片_20230629173654.jpg

微信图片_20230629173657.jpg

微信图片_20230629173701.jpg

微信图片_20230629173705.jpg

煤气表已经保护到位。

微信图片_20230629173709.jpg

临时小便池已经安放好了:
每一个施工现场都会配备临时小便斗,并且时刻保持干净卫生,保证工地环境干净整洁。

微信图片_20230629173933.jpg




回复 支持 反对

使用道具 举报

 楼主| 发表于 2023-6-29 17:41:55 | 显示全部楼层
本帖最后由 zhouyuhang 于 2023-7-1 11:56 编辑

开工仪式准备,开工横幅、鲜花、礼花准备到位,就等吉时!
开工桌摆好准备

微信图片_20230629173532.jpg

吉时到开工了,恭祝业主大人开工大吉!
仪式很短暂,家居装修却很长……与漫漫人生历程相比,这些短短一瞬,却包含了满满的心意。
我们竭力用自己的专业技能,让每位业主拥有最接近梦想的家!恭祝开工大吉!

开工合影
kaig.jpg

开工第一锤,由业主敲在要拆除的墙体的墙角(即拐角),象征一锤定音的意思,也是新房动土的一种表示方式

qiaoc.jpg


回复 支持 反对

使用道具 举报

 楼主| 发表于 2023-6-29 17:49:50 | 显示全部楼层
拆除阶段:
拆除可以让空间利用更合理。为了整体结构的稳定性和安全性,承重墙是一定不能动的。
微信图片_20230629174849.jpg

微信图片_20230629174854.jpg

微信图片_20230629174857.jpg

微信图片_20230629174905.jpg

微信图片_20230629174909.jpg

微信图片_20230629174900.jpg
回复 支持 反对

使用道具 举报

 楼主| 发表于 2023-6-29 17:52:55 | 显示全部楼层
本帖最后由 zhouyuhang 于 2023-7-8 16:14 编辑

砌墙放样
微信图片_20230629175039.jpg

微信图片_20230629175044.jpg

微信图片_20230629175050.jpg

微信图片_20230629175056.jpg

微信图片_20230629175100.jpg

微信图片_20230629175103.jpg

微信图片_20230629175106.jpg

微信图片_20230629175114.jpg



回复 支持 反对

使用道具 举报

 楼主| 发表于 2023-7-2 14:26:22 | 显示全部楼层
阳台窗户
微信图片_20230702142519.jpg

微信图片_20230702142530.jpg

微信图片_20230702142533.jpg

回复 支持 反对

使用道具 举报

 楼主| 发表于 2023-7-7 15:31:08 | 显示全部楼层
墙固(黄墙)的作用:巩固墙面基底,且允许其他物质更好地覆盖其中,同时起到封底的作用。提高界面附着力:墙固具有优异的渗透性,能充分浸润墙体基层材料表面,通过胶联使基层密实,提高界面附着力,提高灰浆或腻子和墙体表面的粘接强度,防止空鼓。适用于砖混墙面抹灰划批刮腻子前基层的密实处理。通俗的说就是让后期批腻子更好的与墙面粘接。


微信图片_20230707152727.jpg
微信图片_20230707152734.jpg

微信图片_20230707152737.jpg

微信图片_20230707152741.jpg

微信图片_20230707152743.jpg

微信图片_20230707152746.jpg

微信图片_20230707152749.jpg

微信图片_20230707152752.jpg

微信图片_20230707152755.jpg

微信图片_20230707152757.jpg

微信图片_20230707152800.jpg

微信图片_20230707152803.jpg


回复 支持 反对

使用道具 举报

您需要登录后才可以回帖 登录 | 立即注册

本版积分规则

全国统一客服电话
0570-8028505

24x7小时免费咨询

  • 官方在线客服

    QQ客服:小西

    点击交谈

    QQ客服:良子

    点击交谈

    QQ客服:闵月

    点击交谈
  • 衢州市柯城区财富中心3号楼2楼

  • 衢州格堂装饰有限公司

  • 扫一扫关注官方微信

    获取一手特惠信息

快速回复 返回顶部 返回列表