• 手机版

    扫码体验手机版

  • 微信公众号

    扫码关注公众号

登录注册
游客您好
第三方账号登陆

[龙游] 龙天和园10-14#78㎡现代——极简

[复制链接]
发表于 2023-6-25 09:24:42 | 显示全部楼层 |阅读模式
现代——极简

格堂装饰为您全程记录装修全过程!

小区名称
龙天和园
房屋面积
78㎡
户型结构
套房
装修风格
现代
装修方式
半包
装修造价
查看请联系客服万元
设计师
金工
项目经理
谢工
装修公司
格堂装饰
完工实景
完工实景
水电全景
水电全景
VR全景
VR全景
设计说明
极简纯粹的设计是想要回归的理想家~
更多信息
本帖最后由 格堂艳子 于 2023-12-9 10:27 编辑

客餐厅效果图
IMG_8088(20230625-085527).JPG

IMG_8086(20230625-085517).JPG
卧室效果图
IMG_8089(20230625-085531).JPG
原始结构图
IMG_8090(20230625-093547).JPG
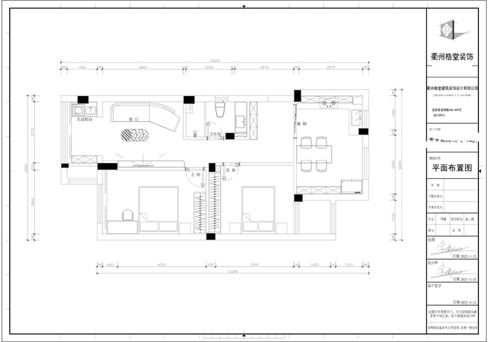
平面布置图
IMG_8091(20230625-093621).JPG






目      录




回复

使用道具 举报

 楼主| 发表于 2023-6-25 09:43:37 | 显示全部楼层
开工前准备

IMG_7450(1).JPG

IMG_7448(1).JPG
回复 支持 反对

使用道具 举报

 楼主| 发表于 2023-6-25 09:44:14 | 显示全部楼层
客餐厅
IMG_7446(1).JPG

IMG_7447(1).JPG
回复 支持 反对

使用道具 举报

 楼主| 发表于 2023-6-25 09:45:11 | 显示全部楼层
客厅
IMG_7439(1).JPG

IMG_7437(1).JPG

IMG_7438(1).JPG
回复 支持 反对

使用道具 举报

 楼主| 发表于 2023-6-25 09:45:42 | 显示全部楼层
阳台

IMG_7440(1).JPG

IMG_7441(1).JPG

IMG_7442.JPG
回复 支持 反对

使用道具 举报

 楼主| 发表于 2023-6-25 09:46:09 | 显示全部楼层
卫生间

IMG_7445(1).JPG

IMG_7443(1).JPG
回复 支持 反对

使用道具 举报

 楼主| 发表于 2023-6-25 09:46:38 | 显示全部楼层
IMG_7456(1).JPG
回复 支持 反对

使用道具 举报

 楼主| 发表于 2023-6-25 09:49:30 | 显示全部楼层
排水管道用格堂装饰专用保护盖保护,防止后期施工砂石堵塞管道
IMG_7477(1).JPG

IMG_7478(1).JPG
回复 支持 反对

使用道具 举报

 楼主| 发表于 2023-6-25 09:49:58 | 显示全部楼层
开工前大门已保护到位,防止磕碰

IMG_7481(1).JPG
回复 支持 反对

使用道具 举报

 楼主| 发表于 2023-6-25 09:50:36 | 显示全部楼层
临时马桶:每一个施工现场都会配备临时小便斗,并且时刻保持干净卫生、保证工地环境干净、整洁。

IMG_7176(1).JPG
回复 支持 反对

使用道具 举报

您需要登录后才可以回帖 登录 | 立即注册

本版积分规则

全国统一客服电话
0570-8028505

24x7小时免费咨询

  • 官方在线客服

    QQ客服:小西

    点击交谈

    QQ客服:良子

    点击交谈

    QQ客服:闵月

    点击交谈
  • 衢州市柯城区财富中心3号楼2楼

  • 衢州格堂装饰有限公司

  • 扫一扫关注官方微信

    获取一手特惠信息

快速回复 返回顶部 返回列表