• 手机版

    扫码体验手机版

  • 微信公众号

    扫码关注公众号

登录注册
游客您好
第三方账号登陆

[龙游] 向阳世家26-2#211㎡新中式——岁月风醒

[复制链接]
发表于 2023-6-21 10:42:41 | 显示全部楼层 |阅读模式
岁月风醒

格堂装饰为您全程记录装修全过程!

小区名称
向阳世家
房屋面积
211㎡
户型结构
别墅
装修风格
新中式
装修方式
半包
装修造价
查看请联系客服万元
设计师
雷蕾
项目经理
方工
装修公司
格堂装饰
完工实景
完工实景
水电全景
水电全景
VR全景
VR全景
设计说明
人生处处,春雨杏花急急落
近城远山,都是人间
身处泥泞遥,看满山花开
岁月款款而来,我们从容以待
晨曦暮鼓,花开花落;一半烟火,一半清欢一季山水一春色,一程年华一欢喜
更多信息
本帖最后由 格堂小静 于 2024-6-28 13:30 编辑

客餐厅效果图
IMG_2557(20230620-222028).JPG

IMG_2558(20230620-222027).JPG

IMG_2560(20230620-222022).JPG

IMG_2556(20230620-222031).JPG
主卧效果图
IMG_2559(20230620-222025).JPG

目      录


回复

使用道具 举报

 楼主| 发表于 2023-6-21 17:50:04 | 显示全部楼层
一楼原始结构图
IMG_2602(4).JPG
一楼平面布置
IMG_2615(20230621-174540).JPG
回复 支持 反对

使用道具 举报

 楼主| 发表于 2023-6-21 17:50:42 | 显示全部楼层
本帖最后由 格堂小静 于 2023-6-21 17:51 编辑

二楼原始结构图
IMG_2603(4).JPG
二楼平面布置图
IMG_2611(20230621-174203).JPG
回复 支持 反对

使用道具 举报

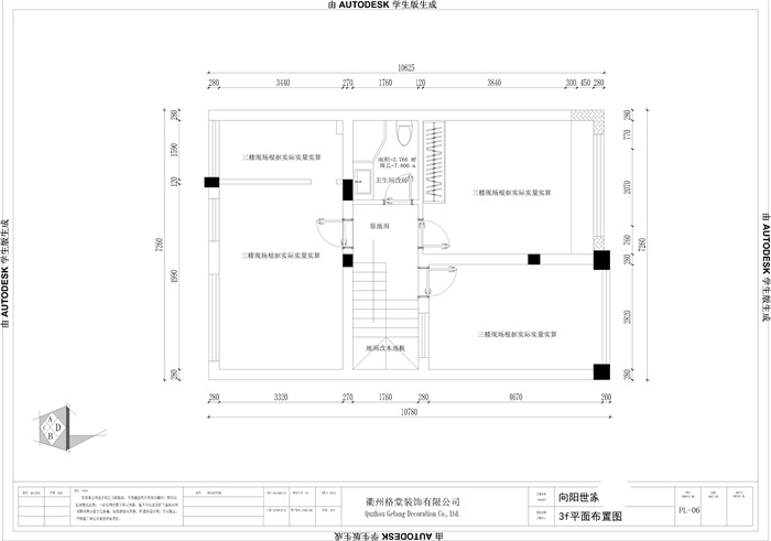
 楼主| 发表于 2023-6-21 17:51:29 | 显示全部楼层
三楼原始结构图

IMG_2605(4).JPG
三楼平面布置
IMG_2610(20230621-174132).JPG
回复 支持 反对

使用道具 举报

 楼主| 发表于 2023-6-21 17:53:21 | 显示全部楼层
一楼客厅图面样子
IMG_2535(1).JPG

IMG_2536(1).JPG

回复 支持 反对

使用道具 举报

 楼主| 发表于 2023-6-21 17:54:43 | 显示全部楼层
二楼房间图面样子
IMG_2537(2).JPG

IMG_2538(2).JPG

IMG_2539(2).JPG

IMG_2540(2).JPG

IMG_2541(2).JPG
回复 支持 反对

使用道具 举报

 楼主| 发表于 2023-6-21 17:57:05 | 显示全部楼层
三楼房间图面样子
IMG_2542(2).JPG

IMG_2543(2).JPG

IMG_2544(2).JPG

IMG_2545(2).JPG

IMG_2546(3).JPG
回复 支持 反对

使用道具 举报

 楼主| 发表于 2023-6-21 17:59:55 | 显示全部楼层
仪式很短暂,家居装修却很长……与漫漫人生历程相比,这些短短一瞬,却包含了满满的心意。我们竭力用自己的专业技能,让每位业主拥有最接近梦想的家!恭祝开工大吉
IMG_2555(20230621-094528).JPG
回复 支持 反对

使用道具 举报

 楼主| 发表于 2023-6-21 18:01:23 | 显示全部楼层
装修开工第一锤应该敲在要拆除的墙体的墙角(即拐角)上,象征一锤定音的意思,也是新房动土的一种表示方式。
IMG_2616(4).JPG
回复 支持 反对

使用道具 举报

 楼主| 发表于 2023-6-21 18:02:35 | 显示全部楼层
设计师何师傅现场对接敲墙放样
IMG_2552(3).JPG

IMG_2553(4).JPG

IMG_2554(4).JPG
回复 支持 反对

使用道具 举报

您需要登录后才可以回帖 登录 | 立即注册

本版积分规则

全国统一客服电话
0570-8028505

24x7小时免费咨询

  • 官方在线客服

    QQ客服:小西

    点击交谈

    QQ客服:良子

    点击交谈

    QQ客服:闵月

    点击交谈
  • 衢州市柯城区财富中心3号楼2楼

  • 衢州格堂装饰有限公司

  • 扫一扫关注官方微信

    获取一手特惠信息

快速回复 返回顶部 返回列表