[常山] 常山半山悦景2-2-16#98㎡现代——自在生活 |
|
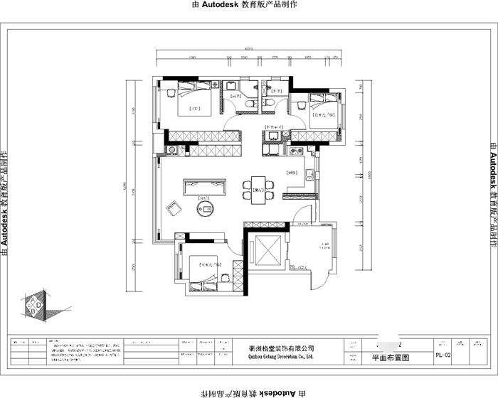
常山半山悦景2-2-16#98㎡现代——自在生活
格堂装饰为您全程记录装修全过程! 设计说明
安静地生活,哪怕是静静地听着风声,亦能感受到生活的诗意。 开合瞬间,玄关以线性造型串联起隐藏于色块之下的实用功能,进一步拓展穿插与延续的手法,言明简约调性。凹嵌几何,辅以氛围光效重塑凹凸之间的叙事层次,强调质感。接纳深浅激撞的生命力,细化物体质感、纹理、色泽与触感,构建展陈区域,赋予空间合理自然的过渡。以大面积的留白塑造场域的开阔感,表达通向极简的精神需求和审美高度。
更多信息
| |
|
|
| |


在线客服
微信客服
关注有礼