• 手机版

    扫码体验手机版

  • 微信公众号

    扫码关注公众号

登录注册
游客您好
第三方账号登陆

[常山] 常山百悦城7-1-1#156㎡现代——逸

[复制链接]
发表于 2023-6-15 15:59:11 | 显示全部楼层 |阅读模式
常山百悦城7-1-1#156㎡现代——逸

格堂装饰为您全程记录装修全过程!

小区名称
百悦城
房屋面积
156㎡
户型结构
复式
装修风格
现代
装修方式
半包
装修造价
查看请联系客服万元
设计师
许工
项目经理
江工
装修公司
格堂装饰
完工实景
完工实景
水电全景
水电全景
VR全景
VR全景
设计说明
在城市化不可逆的进程中,我们抛弃了过往的生活方式,创造一个个独立,崭新的空间。我们极度满足,实现人最大化的所有需求,追求最舒适最便捷和最精美。但同时在崭新的生活中,慢慢丢失了对环境的眷恋和最自然的的感知能力。所以,我们总是在尝试找回点什么。
更多信息
效果图
db08ded313064ad8ceed834ac900793.jpg

18ecc89ec7c9ce20adb52dcf5b1f014.jpg
回复

使用道具 举报

 楼主| 发表于 2023-6-15 16:00:11 | 显示全部楼层
回复 支持 反对

使用道具 举报

 楼主| 发表于 2023-6-15 16:05:45 | 显示全部楼层
一楼原始结构图
cff7e97d7f2e9bdafd1524322296aae.jpg
回复 支持 反对

使用道具 举报

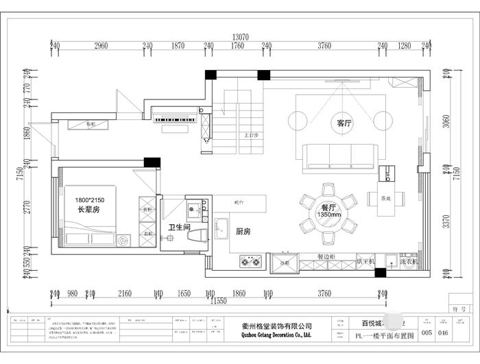
 楼主| 发表于 2023-6-15 16:06:07 | 显示全部楼层
一楼平面布置图
e5bcf733c1e11625f5d51692236ef37.jpg
回复 支持 反对

使用道具 举报

 楼主| 发表于 2023-6-15 16:06:30 | 显示全部楼层
二楼原始结构图
e02302b736f80515b303076f95b4b56.jpg
回复 支持 反对

使用道具 举报

 楼主| 发表于 2023-6-15 16:06:47 | 显示全部楼层
二楼平面布置图
73395e524f480f4a799117607fa8f9b.jpg
回复 支持 反对

使用道具 举报

 楼主| 发表于 2023-6-15 16:14:44 | 显示全部楼层
开工仪式准备好
9ff56ffbb211baf7a695613c8e395b2.jpg

6d6d4e27562fa5dc419070a75591340.jpg
回复 支持 反对

使用道具 举报

 楼主| 发表于 2023-6-15 16:15:06 | 显示全部楼层
鲜花礼炮准备好
d1a557f1ae73650402e4097ef20418a.jpg

6ae395abff34fb2d9a39af3ba764a58.jpg
回复 支持 反对

使用道具 举报

 楼主| 发表于 2023-6-15 16:15:28 | 显示全部楼层
大门保护好,防止后期磕碰
f539d1a2d009443ce6d80074f2b6b45.jpg
回复 支持 反对

使用道具 举报

 楼主| 发表于 2023-6-15 16:15:55 | 显示全部楼层
卫生间简易马桶安装到位,防止后期施工中沙石堵塞进入
21efaf221ff6dd55d9b92b98b535e77.jpg
回复 支持 反对

使用道具 举报

您需要登录后才可以回帖 登录 | 立即注册

本版积分规则

全国统一客服电话
0570-8028505

24x7小时免费咨询

  • 官方在线客服

    QQ客服:小西

    点击交谈

    QQ客服:良子

    点击交谈

    QQ客服:闵月

    点击交谈
  • 衢州市柯城区财富中心3号楼2楼

  • 衢州格堂装饰有限公司

  • 扫一扫关注官方微信

    获取一手特惠信息

快速回复 返回顶部 返回列表