• 手机版

    扫码体验手机版

  • 微信公众号

    扫码关注公众号

登录注册
游客您好
第三方账号登陆

[龙游] 向阳世家26#150㎡新中式———山山而川

[复制链接]
发表于 2023-6-10 11:43:06 | 显示全部楼层 |阅读模式
山山而川

格堂装饰为您全程记录装修全过程!

小区名称
向阳世家
房屋面积
150㎡
户型结构
别墅
装修风格
新中式
装修方式
半包
装修造价
查看请联系客服万元
设计师
雷蕾
项目经理
方工
装修公司
格堂装饰
完工实景
完工实景
水电全景
水电全景
VR全景
VR全景
设计说明
人生海海,山山而川,不过尔尔 ,愿衣襟带花,岁月风平
更多信息
本帖最后由 格堂小静 于 2024-1-26 15:36 编辑

客餐厅效果图
IMG_1281(20230610-000103) - 副本.JPG

IMG_1282(20230610-000106).JPG

IMG_1280(20230610-000100).JPG
卧室效果图
IMG_1279(20230610-000056).JPG

目      录





回复

使用道具 举报

 楼主| 发表于 2023-6-10 11:45:39 | 显示全部楼层
一楼原始结构
IMG_1283(20230610-000405).JPG
一楼平面布置
IMG_1284(20230610-000420).JPG
回复 支持 反对

使用道具 举报

 楼主| 发表于 2023-6-10 11:46:24 | 显示全部楼层
二楼原始结构
IMG_1285(20230610-000445).JPG
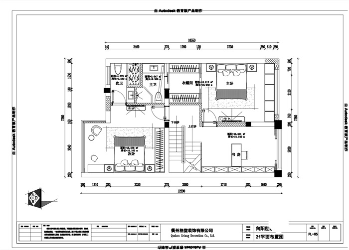
二楼平面布置
IMG_1286(20230610-000504).JPG
回复 支持 反对

使用道具 举报

 楼主| 发表于 2023-6-10 11:47:50 | 显示全部楼层
三楼原始结构
IMG_1287(20230610-000519).JPG
三楼平面布置
IMG_1288(20230610-000537).JPG
回复 支持 反对

使用道具 举报

 楼主| 发表于 2023-6-12 11:46:56 | 显示全部楼层
厨房客厅原始图面
IMG_1470(1).JPG

IMG_1471(1).JPG

IMG_1472(1).JPG
回复 支持 反对

使用道具 举报

 楼主| 发表于 2023-6-12 11:47:35 | 显示全部楼层
二楼房间
IMG_1473(2).JPG

IMG_1474(2).JPG

IMG_1475(2).JPG

IMG_1476(2).JPG
回复 支持 反对

使用道具 举报

 楼主| 发表于 2023-6-12 11:48:22 | 显示全部楼层
楼梯卫生间
IMG_1477(2).JPG

IMG_1478(2).JPG

IMG_1479(2).JPG
回复 支持 反对

使用道具 举报

 楼主| 发表于 2023-6-12 11:48:44 | 显示全部楼层
开工布置
IMG_1469(1).JPG
回复 支持 反对

使用道具 举报

 楼主| 发表于 2023-6-12 11:49:22 | 显示全部楼层
开工礼炮
IMG_1464(1).JPG
回复 支持 反对

使用道具 举报

 楼主| 发表于 2023-6-12 11:49:44 | 显示全部楼层
开工锤
IMG_1465(1).JPG
回复 支持 反对

使用道具 举报

您需要登录后才可以回帖 登录 | 立即注册

本版积分规则

全国统一客服电话
0570-8028505

24x7小时免费咨询

  • 官方在线客服

    QQ客服:小西

    点击交谈

    QQ客服:良子

    点击交谈

    QQ客服:闵月

    点击交谈
  • 衢州市柯城区财富中心3号楼2楼

  • 衢州格堂装饰有限公司

  • 扫一扫关注官方微信

    获取一手特惠信息

快速回复 返回顶部 返回列表