• 手机版

    扫码体验手机版

  • 微信公众号

    扫码关注公众号

登录注册
游客您好
第三方账号登陆

[衢州] 云澜府22-1-5#136㎡现代简约—【臻美诗情】

[复制链接]
发表于 2023-5-28 10:59:16 | 显示全部楼层 |阅读模式
云澜府22-1-5#136㎡现代简约—【臻美诗情】

格堂装饰为您全程记录装修全过程!

小区名称
云澜府
房屋面积
136㎡
户型结构
套房
装修风格
现代
装修方式
半包
装修造价
查看请联系客服万元
设计师
徐工
项目经理
郑工
装修公司
格堂装饰
完工实景
完工实景
水电全景
水电全景
VR全景
VR全景
设计说明
去繁就简,整体上满足主人的需求,将每一个空间重新定义,重新规划功能区,整体动线流畅。由简及易:每一个功能区通过巧妙地分割和规划,更加的开阔和完整,实用性,美观性,收纳性,方便性都极佳。
更多信息
本帖最后由 格堂王姐 于 2023-6-8 11:48 编辑

效果图
微信图片_20230607164644.png


微信图片_20230607164657.png
回复

使用道具 举报

 楼主| 发表于 2023-5-28 10:59:57 | 显示全部楼层
本帖最后由 格堂王姐 于 2024-2-18 15:23 编辑

目      录


回复 支持 反对

使用道具 举报

 楼主| 发表于 2023-5-28 11:00:25 | 显示全部楼层
本帖最后由 格堂王姐 于 2023-6-7 17:01 编辑

原始结构图

微信图片_20230607165109.png

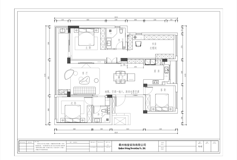
平面布置图



微信图片_20230607165119.png
回复 支持 反对

使用道具 举报

 楼主| 发表于 2023-5-28 11:01:34 | 显示全部楼层
本帖最后由 格堂王姐 于 2023-5-28 14:31 编辑

开工仪式准备,开工横幅、鲜花、礼花准备到位,就等吉时!

开工桌摆好准备
微信图片_20230528110923.jpg

吉时到开工了,恭祝业主大人开工大吉!
仪式很短暂,家居装修却很长……与漫漫人生历程相比,这些短短一瞬,却包含了满满的心意。
我们竭力用自己的专业技能,让每位业主拥有最接近梦想的家!恭祝开工大吉!

开工合影
微信图片_20230528110855.jpg


微信图片_20230528110938.jpg

开工第一锤,由业主敲在要拆除的墙体的墙角(即拐角),
象征一锤定音的意思,也是新房动土的一种表示方式
业主敲下第一锤
微信图片_20230528110953.jpg

敲完的痕迹
微信图片_20230528111000.jpg
回复 支持 反对

使用道具 举报

 楼主| 发表于 2023-5-28 11:02:22 | 显示全部楼层
本帖最后由 格堂王姐 于 2023-5-28 14:37 编辑

大门已经保护到位。
IMG_8558.JPG

卫生间简易马桶安装到位,防止后期施工中沙石堵塞进入,美观实用 IMG_8678.JPG

煤气表保护到位
IMG_8677.JPG

排水管道用格堂专用保护盖保护,防止后期施工中砂石 堵塞管道
IMG_8417.JPG

IMG_8420.JPG

回复 支持 反对

使用道具 举报

 楼主| 发表于 2023-5-28 11:03:16 | 显示全部楼层
本帖最后由 格堂王姐 于 2023-5-28 14:38 编辑

电梯口墙面和地面都贴好了格堂专用的保护垫。


IMG_8559.JPG

IMG_8560.JPG


IMG_8561.JPG

IMG_8562.JPG

IMG_8563.JPG

电梯对角


IMG_8564.JPG

IMG_8565.JPG

IMG_8566.JPG

IMG_8567.JPG

IMG_8568.JPG


回复 支持 反对

使用道具 举报

 楼主| 发表于 2023-5-28 11:03:23 | 显示全部楼层
本帖最后由 格堂王姐 于 2023-5-28 14:40 编辑

拆改阶段:
拆除可以让空间利用更合理。为了整体结构的稳定性和安全性,承重墙是一定不能动的。
微信图片_20230528111128.jpg

微信图片_20230528111145.jpg

房间铲灰,是为了防止墙顶面出现空鼓,在做好油漆后不会有墙顶面整块油漆脱落的现象。


微信图片_20230528111202.jpg

微信图片_20230528111207.jpg

微信图片_20230528111210.jpg

微信图片_20230528111213.jpg

微信图片_20230528111216.jpg

微信图片_20230528111219.jpg
回复 支持 反对

使用道具 举报

 楼主| 发表于 2023-5-28 14:43:45 | 显示全部楼层
砌墙放样
微信图片_20230528111429.jpg

微信图片_20230528111443.jpg

微信图片_20230528111447.jpg

微信图片_20230528111452.jpg

微信图片_20230528111456.jpg


微信图片_20230528111529.jpg

微信图片_20230528111540.jpg

微信图片_20230528111546.jpg
回复 支持 反对

使用道具 举报

 楼主| 发表于 2023-5-28 14:44:35 | 显示全部楼层
.红砖用水湿透,增强水泥沙灰牢固度
微信图片_20230528111522.jpg

微信图片_20230528111526.jpg

微信图片_20230528111533.jpg

微信图片_20230528111536.jpg

微信图片_20230528111550.jpg

回复 支持 反对

使用道具 举报

 楼主| 发表于 2023-5-28 14:45:46 | 显示全部楼层
砌墙中途
微信图片_20230528111554.jpg

微信图片_20230528111557.jpg

微信图片_20230528111601.jpg

微信图片_20230528111621.jpg

微信图片_20230528111625.jpg

微信图片_20230528111628.jpg

微信图片_20230528111631.jpg

微信图片_20230528111634.jpg

微信图片_20230528111638.jpg

微信图片_20230528111642.jpg

微信图片_20230528111705.jpg

微信图片_20230528111710.jpg
回复 支持 反对

使用道具 举报

您需要登录后才可以回帖 登录 | 立即注册

本版积分规则

全国统一客服电话
0570-8028505

24x7小时免费咨询

  • 官方在线客服

    QQ客服:小西

    点击交谈

    QQ客服:良子

    点击交谈

    QQ客服:闵月

    点击交谈
  • 衢州市柯城区财富中心3号楼2楼

  • 衢州格堂装饰有限公司

  • 扫一扫关注官方微信

    获取一手特惠信息

快速回复 返回顶部 返回列表