• 手机版

    扫码体验手机版

  • 微信公众号

    扫码关注公众号

登录注册
游客您好
第三方账号登陆

[江山] 中山路100m2现代风格--简居

[复制链接]
发表于 2023-5-26 09:50:13 | 显示全部楼层 |阅读模式
中山路100m2现代风格--简居

格堂装饰为您全程记录装修全过程!

小区名称
中山路
房屋面积
100㎡
户型结构
框架结构
装修风格
现代
装修方式
半包
装修造价
查看请联系客服万元
设计师
王工
项目经理
郑工
装修公司
格堂装饰
完工实景
完工实景
水电全景
水电全景
VR全景
VR全景
设计说明
通过改造使原先老旧房屋重新焕发新荣,能更好的为业主提供舒适温暖的居家环境。
更多信息
回复

使用道具 举报

 楼主| 发表于 2023-5-26 09:51:08 | 显示全部楼层
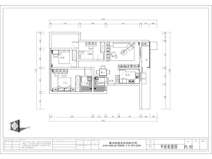
平面布置图

ce4a0ba1532c15224941b4db2bfaec4.png

回复 支持 反对

使用道具 举报

 楼主| 发表于 2023-5-26 11:02:43 | 显示全部楼层
开工前大门先保护到位

23c4d44e493a132be774b12406fca17.jpg

4f0ac3dcc0716052940c5d41f1baa8e.jpg

回复 支持 反对

使用道具 举报

 楼主| 发表于 2023-5-26 11:03:46 | 显示全部楼层
礼炮已准备好


05b3c93c75a549783c8141eb27aa51c.jpg


回复 支持 反对

使用道具 举报

 楼主| 发表于 2023-5-26 11:05:05 | 显示全部楼层
开工锤已准备好

0ef13731a5a9852dd8b16659a31d377.jpg
回复 支持 反对

使用道具 举报

 楼主| 发表于 2023-5-26 11:06:35 | 显示全部楼层
送给业主美丽的鲜花

41eaacf6686f3039a6ebedb9a0fd3ab.jpg


回复 支持 反对

使用道具 举报

 楼主| 发表于 2023-5-26 11:08:46 | 显示全部楼层
本帖最后由 格堂红叶 于 2023-5-26 11:11 编辑

一切准备就绪,等待开工吉时

9d2653d8a497e7def967ec05cbbb213.jpg

回复 支持 反对

使用道具 举报

 楼主| 发表于 2023-5-26 11:14:00 | 显示全部楼层
九点五十八分吉时已到,恭祝业主大人开工大吉,顺风顺水!

1ed6ea3c997bc4c68088eebefd67926.jpg

d7ac27f3c186162a9c5de2dfd6df59c.jpg

回复 支持 反对

使用道具 举报

 楼主| 发表于 2023-5-26 11:15:22 | 显示全部楼层
开工第一锤由业主大人敲下,装修开工第一锤应该敲在要拆除的墙体的墙角(即拐角)上,象征一锤定音的意思,也是新房动土的一种表示方式。

911b354cb1ec39f5327d7ff9b255e2a.jpg


回复 支持 反对

使用道具 举报

 楼主| 发表于 2023-5-26 12:06:42 | 显示全部楼层
项目经理和设计师按图纸正在拆改放样

bdd1968fbc7929d2a80c300409226b9.jpg

1c8be98fc7ec4c4ed8783c1b69d444f.jpg

57d605ad9d4f48fe1536544178cb8f3.jpg

9885caa4beee960d97540f37bf77247.jpg

d1fa431da3d594acc93f7325352383e.jpg

回复 支持 反对

使用道具 举报

您需要登录后才可以回帖 登录 | 立即注册

本版积分规则

全国统一客服电话
0570-8028505

24x7小时免费咨询

  • 官方在线客服

    QQ客服:小西

    点击交谈

    QQ客服:良子

    点击交谈

    QQ客服:闵月

    点击交谈
  • 衢州市柯城区财富中心3号楼2楼

  • 衢州格堂装饰有限公司

  • 扫一扫关注官方微信

    获取一手特惠信息

快速回复 返回顶部 返回列表