• 手机版

    扫码体验手机版

  • 微信公众号

    扫码关注公众号

登录注册
游客您好
第三方账号登陆

[龙游] 桃园山居#345㎡现代轻奢——日落香槟

[复制链接]
发表于 2023-5-25 09:42:17 | 显示全部楼层 |阅读模式
日落香槟

格堂装饰为您全程记录装修全过程!

小区名称
桃园山居
房屋面积
345㎡
户型结构
别墅
装修风格
现代
装修方式
半包
装修造价
查看请联系客服万元
设计师
吴工
项目经理
方工
装修公司
格堂装饰
完工实景
完工实景
水电全景
水电全景
VR全景
VR全景
设计说明
轻奢风格主色调采用米杏色、奶咖、黑色等色彩作为底色,互相衬托。演绎一种“低调的奢华”令空间更有质感,营造出轻奢的味道,这些偏高雅调的色系,让格局优雅大气。
“轻”和“奢”平衡。
“轻”代表一种态度,低调、舒适、优雅的追求“奢”是呈现主人对品质感和精致感的生活状态
更多信息
本帖最后由 格堂小静 于 2024-10-25 19:12 编辑

客厅效果图
IMG_8907.PNG
书房效果图
IMG_8910.PNG
主卧效果图
IMG_8908.PNG
女儿房效果图
IMG_8909.PNG
目      录



回复

使用道具 举报

 楼主| 发表于 2023-5-25 09:44:42 | 显示全部楼层
一楼原始结构图:
IMG_8912(2).JPG
一楼平面布置图
IMG_8915(20230525-093420).JPG
回复 支持 反对

使用道具 举报

 楼主| 发表于 2023-5-25 09:46:12 | 显示全部楼层
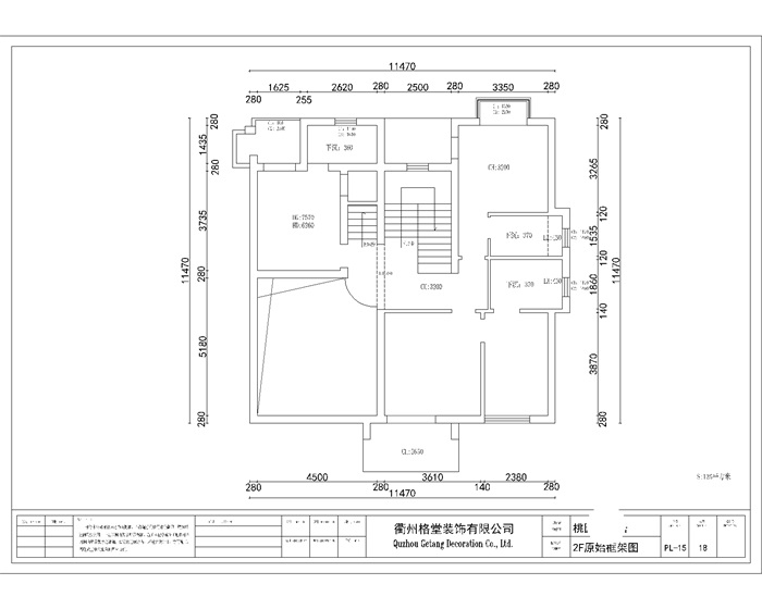
二楼原始结构图:
IMG_8913(20230525-093348).JPG
二楼平面布置图:
IMG_8916(20230525-093432).JPG
回复 支持 反对

使用道具 举报

 楼主| 发表于 2023-5-25 09:47:14 | 显示全部楼层
三楼原始结构图:
IMG_8914(20230525-093406).JPG
三楼平面布置图:
IMG_8917(20230525-093451).JPG
回复 支持 反对

使用道具 举报

 楼主| 发表于 2023-5-25 09:51:47 | 显示全部楼层
一楼原始图面
IMG_8183(2).JPG

IMG_8182(2).JPG

IMG_8184(2).JPG

IMG_8185(2).JPG
回复 支持 反对

使用道具 举报

 楼主| 发表于 2023-5-25 09:52:54 | 显示全部楼层
二楼房间卫生间原始图面
IMG_8186(2).JPG

IMG_8187(2).JPG

IMG_8188(1).JPG

IMG_8189(1).JPG
回复 支持 反对

使用道具 举报

 楼主| 发表于 2023-5-25 10:35:17 | 显示全部楼层
IMG_8191(1).JPG

IMG_8192(1).JPG

IMG_8193(1).JPG

IMG_8194(1).JPG
回复 支持 反对

使用道具 举报

 楼主| 发表于 2023-5-25 10:35:42 | 显示全部楼层
开工布置
IMG_8195(2).JPG
回复 支持 反对

使用道具 举报

 楼主| 发表于 2023-5-25 10:36:04 | 显示全部楼层
开工礼炮
IMG_8196(2).JPG
回复 支持 反对

使用道具 举报

 楼主| 发表于 2023-5-25 10:36:56 | 显示全部楼层

IMG_8197(1).JPG
回复 支持 反对

使用道具 举报

您需要登录后才可以回帖 登录 | 立即注册

本版积分规则

全国统一客服电话
0570-8028505

24x7小时免费咨询

  • 官方在线客服

    QQ客服:小西

    点击交谈

    QQ客服:良子

    点击交谈

    QQ客服:闵月

    点击交谈
  • 衢州市柯城区财富中心3号楼2楼

  • 衢州格堂装饰有限公司

  • 扫一扫关注官方微信

    获取一手特惠信息

快速回复 返回顶部 返回列表