• 手机版

    扫码体验手机版

  • 微信公众号

    扫码关注公众号

登录注册
游客您好
第三方账号登陆

[开化] 双溪景苑2-5#113㎡现代--质 璞

[复制链接]
发表于 2023-5-23 09:09:20 | 显示全部楼层 |阅读模式
双溪景苑2-5#113㎡现代--质 璞

格堂装饰为您全程记录装修全过程!

小区名称
双溪景苑
房屋面积
113㎡
户型结构
3房2厅2卫1厨1阳台
装修风格
现代
装修方式
半包
装修造价
查看请联系客服万元
设计师
余工
项目经理
高工
装修公司
格堂装饰
完工实景
完工实景
水电全景
水电全景
VR全景
VR全景
设计说明
简而不凡的现代风住宅
更多信息

效果图
sphere.jpg

双溪景苑2-501-副本-未命名-20230503-152045.jpg

双溪景苑2-501-副本-未命名-20230503-152051.jpg

双溪景苑2-501-副本-未命名-20230503-152102.jpg

双溪景苑2-501-副本-未命名-20230503-152111.jpg
回复

使用道具 举报

 楼主| 发表于 2023-5-23 09:09:32 | 显示全部楼层
本帖最后由 格堂小韩 于 2024-9-20 09:34 编辑


回复 支持 反对

使用道具 举报

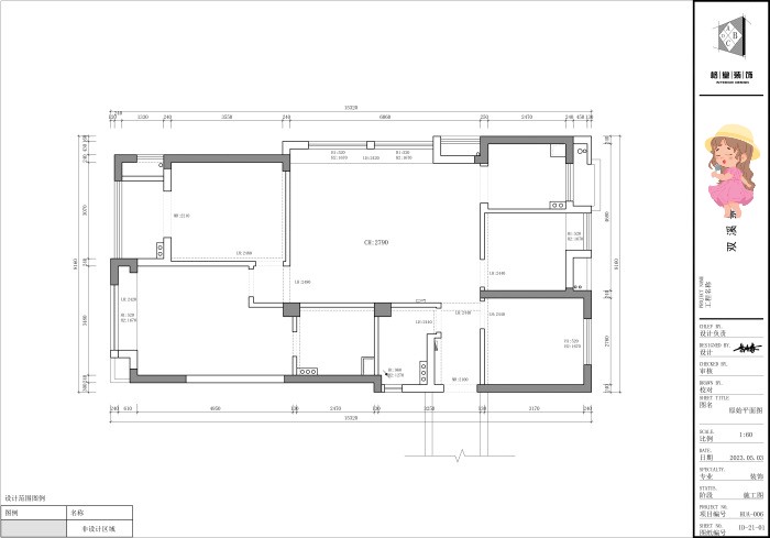
 楼主| 发表于 2023-5-23 09:09:49 | 显示全部楼层

原始结构图
原始平面图_副本.jpg
回复 支持 反对

使用道具 举报

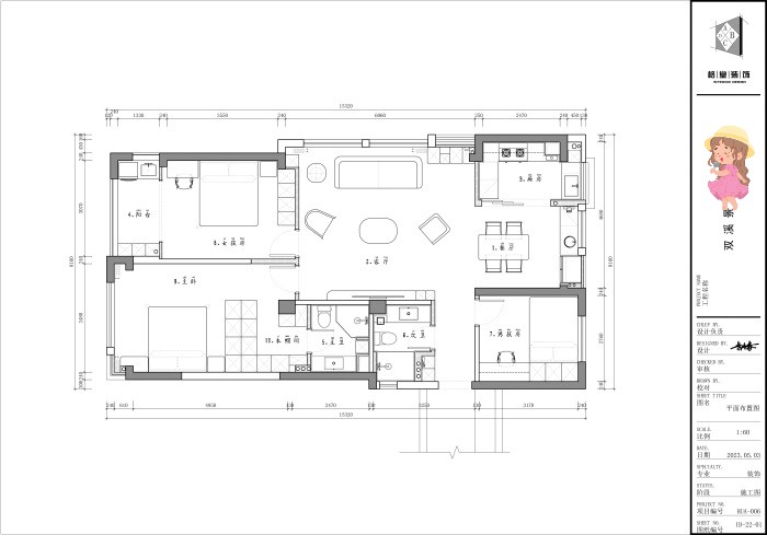
 楼主| 发表于 2023-5-23 09:10:05 | 显示全部楼层

平面布置图
平面布置图_副本.jpg
回复 支持 反对

使用道具 举报

 楼主| 发表于 2023-5-24 10:15:13 | 显示全部楼层

开工前准备
IMG_3757.JPG

IMG_3758.JPG

IMG_3760.JPG

IMG_3761.JPG
回复 支持 反对

使用道具 举报

 楼主| 发表于 2023-5-24 10:15:48 | 显示全部楼层

等待吉时
IMG_3762.JPG

IMG_3763.JPG
回复 支持 反对

使用道具 举报

 楼主| 发表于 2023-5-24 10:16:55 | 显示全部楼层

大门口保护
IMG_3742.JPG

IMG_3743.JPG

IMG_3744.JPG

IMG_3745.JPG

IMG_3746.JPG
回复 支持 反对

使用道具 举报

 楼主| 发表于 2023-5-24 10:17:17 | 显示全部楼层

大门口对角保护
IMG_3738.JPG

IMG_3739.JPG

IMG_3740.JPG

IMG_3741.JPG
回复 支持 反对

使用道具 举报

 楼主| 发表于 2023-5-24 10:17:38 | 显示全部楼层

电梯口保护
IMG_3747.JPG

IMG_3748.JPG

IMG_3749.JPG

IMG_3750.JPG

IMG_3751.JPG
回复 支持 反对

使用道具 举报

 楼主| 发表于 2023-5-24 10:18:09 | 显示全部楼层

电梯口对角保护
IMG_3752.JPG

IMG_3753.JPG

IMG_3754.JPG

IMG_3755.JPG

IMG_3756.JPG
回复 支持 反对

使用道具 举报

您需要登录后才可以回帖 登录 | 立即注册

本版积分规则

全国统一客服电话
0570-8028505

24x7小时免费咨询

  • 官方在线客服

    QQ客服:小西

    点击交谈

    QQ客服:良子

    点击交谈

    QQ客服:闵月

    点击交谈
  • 衢州市柯城区财富中心3号楼2楼

  • 衢州格堂装饰有限公司

  • 扫一扫关注官方微信

    获取一手特惠信息

快速回复 返回顶部 返回列表