• 手机版

    扫码体验手机版

  • 微信公众号

    扫码关注公众号

登录注册
游客您好
第三方账号登陆

[衢州] 魁星里7-2-2#106㎡现代

[复制链接]
发表于 2023-5-19 09:09:23 | 显示全部楼层 |阅读模式
魁星里7-2-2#106㎡现代

格堂装饰为您全程记录装修全过程!

小区名称
魁星里
房屋面积
106㎡
户型结构
套房
装修风格
现代
装修方式
全包
装修造价
查看请联系客服万元
设计师
佘工
项目经理
周工
装修公司
格堂装饰
完工实景
完工实景
水电全景
水电全景
VR全景
VR全景
设计说明
铺垫纯粹底色,借由线性光影舒缓侧壁冷感,构筑收纳空间。把控极简主义的内核,经过拼接、凹凸、转折的处理,实现“梦显现实,留名浪漫”的构想,悦活归家的好心情,在行径中让人对空间产生进一步的精神解读。
更多信息
本帖最后由 格堂小琴 于 2023-5-19 09:10 编辑

效果图
mmexport1684289699665.jpg
mmexport1684289703488.jpg

回复

使用道具 举报

 楼主| 发表于 2023-5-19 09:13:17 | 显示全部楼层
本帖最后由 格堂小琴 于 2023-10-14 14:43 编辑

回复 支持 反对

使用道具 举报

 楼主| 发表于 2023-5-19 09:16:42 | 显示全部楼层
本帖最后由 格堂小琴 于 2023-5-19 09:21 编辑

原始结构图
e01abc40ae7f81d87f161848889eda7.jpg
回复 支持 反对

使用道具 举报

 楼主| 发表于 2023-5-19 09:21:34 | 显示全部楼层
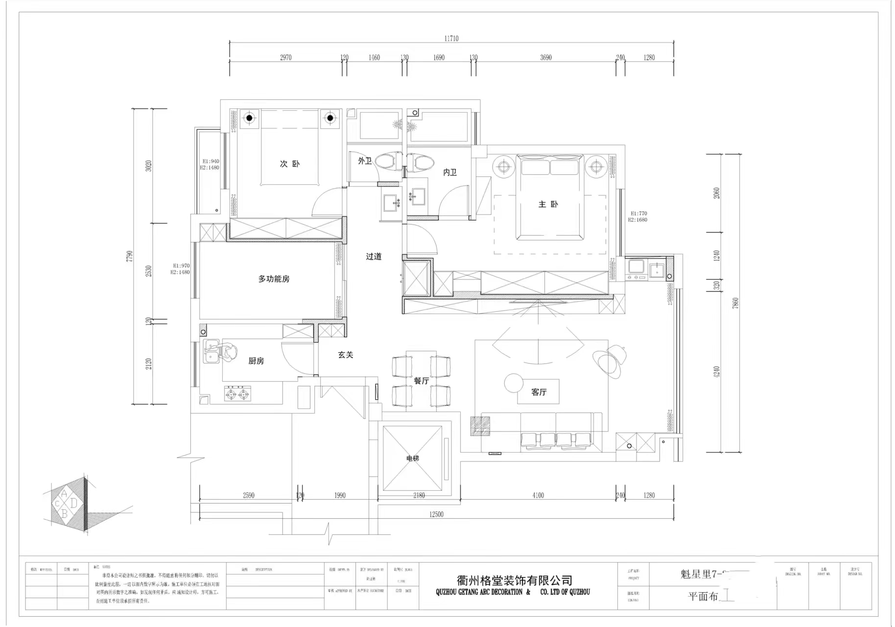
平面结构图
343d695521cd295f1015ed567399622.jpg
回复 支持 反对

使用道具 举报

 楼主| 发表于 2023-5-19 09:22:48 | 显示全部楼层
本帖最后由 格堂小琴 于 2023-5-19 09:23 编辑

开工前,电梯口墙面和地面已经保护到位

IMG_20230518_103718.jpg
IMG_20230518_103716.jpg

回复 支持 反对

使用道具 举报

 楼主| 发表于 2023-5-19 09:24:11 | 显示全部楼层
大门已经保护到位。
IMG_20230518_103732.jpg
回复 支持 反对

使用道具 举报

 楼主| 发表于 2023-5-19 09:24:54 | 显示全部楼层
煤气表已经保护到位
IMG_20230518_103741.jpg
回复 支持 反对

使用道具 举报

 楼主| 发表于 2023-5-19 09:25:23 | 显示全部楼层
临时小便池已经安放好了:每一个施工现场都会配备临时小便斗,并且时刻保持干净卫生,保证工地环境干净整洁。
IMG_20230518_103756.jpg
回复 支持 反对

使用道具 举报

 楼主| 发表于 2023-5-19 09:25:58 | 显示全部楼层
露出的管道也已封堵好 IMG_20230518_103743.jpg
回复 支持 反对

使用道具 举报

 楼主| 发表于 2023-5-19 09:28:17 | 显示全部楼层
吉时到开工了,恭祝业主大人开工大吉!
666b4037225d267534e237b4bab1ad8.jpg
回复 支持 反对

使用道具 举报

您需要登录后才可以回帖 登录 | 立即注册

本版积分规则

全国统一客服电话
0570-8028505

24x7小时免费咨询

  • 官方在线客服

    QQ客服:小西

    点击交谈

    QQ客服:良子

    点击交谈

    QQ客服:闵月

    点击交谈
  • 衢州市柯城区财富中心3号楼2楼

  • 衢州格堂装饰有限公司

  • 扫一扫关注官方微信

    获取一手特惠信息

快速回复 返回顶部 返回列表