[开化] 凤凰台8-23#129㎡新中式--静谧雅居 |
|
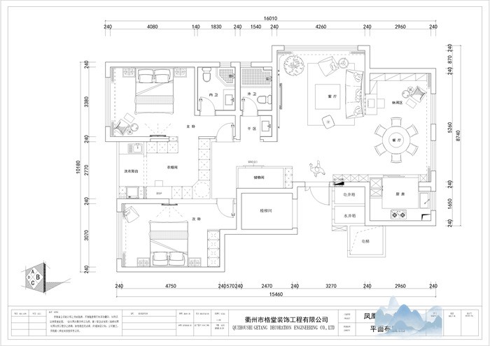
凤凰台8-23#129㎡新中式--静谧雅居
格堂装饰为您全程记录装修全过程! 设计说明
新中式风格高贵大气,沉稳庄重。在许多新中式风格中我们会发现,装修都是讲究对称布局,这样更能体现出新中式风格的特点。稍微有宫廷感觉的装修,就连椅子也是讲究对称性。因为新中式风格给人感觉就是四方、布局大而沉稳,所以对称性不可缺少。
新中式风格不像以前的中式风格古板刻意,加入了很多新的元素。不管是现代设计理念、家装元素,还是现代造型,都是新中式风格应该具备的,不断创新让新中式风格越来越受大家欢迎。 更多信息
| |
|
|
| |


在线客服
微信客服
关注有礼