• 手机版

    扫码体验手机版

  • 微信公众号

    扫码关注公众号

登录注册
游客您好
第三方账号登陆

[开化] 凤凰台7-4#125㎡现代简约--安暖相伴

[复制链接]
发表于 2023-5-6 11:49:24 | 显示全部楼层 |阅读模式
凤凰台7-4#125㎡现代简约--安暖相伴

格堂装饰为您全程记录装修全过程!

小区名称
凤凰台
房屋面积
125㎡
户型结构
4房2厅1阳台
装修风格
现代
装修方式
半包
装修造价
查看请联系客服万元
设计师
汪工
项目经理
高工
装修公司
格堂装饰
完工实景
完工实景
水电全景
水电全景
VR全景
VR全景
设计说明
以奶油ing~为空间基调,摒弃花俏的造型,避开浓重的色彩,
营造出简约柔和的氛围来诠释这个与众不同却又和谐融洽的家。
更多信息

效果图
凤凰台7-404-副本-客餐厅-20230413-100248.jpg

凤凰台7-404-副本-客餐厅-20230413-100253.jpg
回复

使用道具 举报

 楼主| 发表于 2023-5-6 11:49:58 | 显示全部楼层
本帖最后由 格堂小韩 于 2024-9-19 16:08 编辑


回复 支持 反对

使用道具 举报

 楼主| 发表于 2023-5-6 12:02:03 | 显示全部楼层

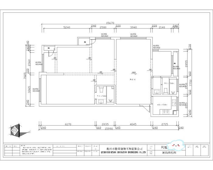
原始结构图
凤凰台7-404原始结构_副本.jpg
回复 支持 反对

使用道具 举报

 楼主| 发表于 2023-5-6 12:02:23 | 显示全部楼层

平面布置图
凤凰台7-404-模型_副本.jpg
回复 支持 反对

使用道具 举报

 楼主| 发表于 2023-5-6 12:03:21 | 显示全部楼层

开工前准备
IMG_2700.JPG

IMG_2701.JPG

IMG_2702.JPG
回复 支持 反对

使用道具 举报

 楼主| 发表于 2023-5-6 12:04:10 | 显示全部楼层
本帖最后由 格堂小韩 于 2023-5-6 12:05 编辑

大门及卫生间保护
IMG_2703.JPG
IMG_2704.JPG

IMG_2741.JPG
回复 支持 反对

使用道具 举报

 楼主| 发表于 2023-5-6 12:05:48 | 显示全部楼层

电梯口保护
IMG_2730.JPG

IMG_2731.JPG

IMG_2732.JPG

IMG_2733.JPG

IMG_2734.JPG
回复 支持 反对

使用道具 举报

 楼主| 发表于 2023-5-6 12:06:19 | 显示全部楼层

电梯口对角保护
IMG_2735.JPG

IMG_2736.JPG

IMG_2738.JPG

IMG_2739.JPG

IMG_2740.JPG
回复 支持 反对

使用道具 举报

 楼主| 发表于 2023-5-6 12:06:47 | 显示全部楼层

吉时到,我们开工啦
IMG_2814.JPG

IMG_2812.JPG
回复 支持 反对

使用道具 举报

 楼主| 发表于 2023-5-6 12:07:06 | 显示全部楼层

开工第一锤
IMG_2813.JPG

IMG_2791.JPG
回复 支持 反对

使用道具 举报

您需要登录后才可以回帖 登录 | 立即注册

本版积分规则

全国统一客服电话
0570-8028505

24x7小时免费咨询

  • 官方在线客服

    QQ客服:小西

    点击交谈

    QQ客服:良子

    点击交谈

    QQ客服:闵月

    点击交谈
  • 衢州市柯城区财富中心3号楼2楼

  • 衢州格堂装饰有限公司

  • 扫一扫关注官方微信

    获取一手特惠信息

快速回复 返回顶部 返回列表