• 手机版

    扫码体验手机版

  • 微信公众号

    扫码关注公众号

登录注册
游客您好
第三方账号登陆

[衢州] 凤栖云庐19-#463㎡意式现代_----如此生活

[复制链接]
发表于 2023-4-25 10:10:55 | 显示全部楼层 |阅读模式
凤栖云庐19-#463㎡意式现代_----如此生活

格堂装饰为您全程记录装修全过程!

小区名称
凤栖云庐
房屋面积
463㎡
户型结构
排屋/别墅
装修风格
现代
装修方式
半包
装修造价
查看请联系客服万元
设计师
毛工
项目经理
周工
装修公司
格堂装饰
完工实景
完工实景
水电全景
水电全景
VR全景
VR全景
设计说明
真正适合生活的居家空间,第一要义便是回归到生活本身,于生活中体悟温馨蕴意,一个家之于一个家庭的意义,是三餐四季,是成长,家是一个简约舒适的存在,摒弃不必要的过度装饰,保留打动人心的点滴细节,从爱出发,丈量一个家。
更多信息
本帖最后由 格堂柴姐 于 2023-7-28 16:06 编辑

效果图:
效果图3.jpg

效果图4.jpg

效果图2.jpg

效果图1.jpg
回复

使用道具 举报

 楼主| 发表于 2023-4-25 10:12:36 | 显示全部楼层
本帖最后由 格堂柴姐 于 2024-1-12 14:55 编辑

目      录


回复 支持 反对

使用道具 举报

 楼主| 发表于 2023-4-25 10:34:21 | 显示全部楼层
负二楼原始结构图: -2F原始结构图.jpg




负二楼平面布置图: -2F平面布置图.jpg


回复 支持 反对

使用道具 举报

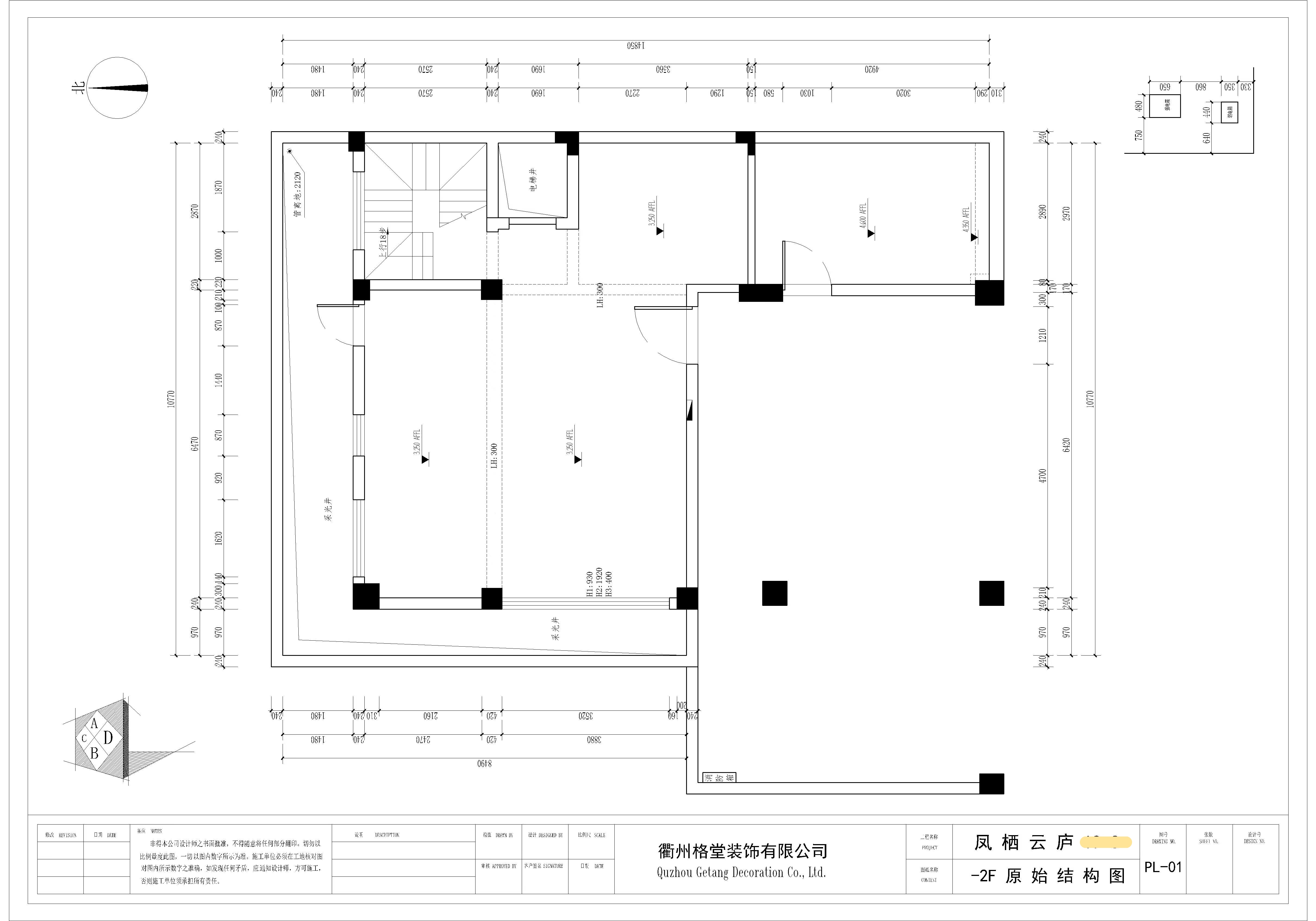
 楼主| 发表于 2023-4-25 10:36:05 | 显示全部楼层
本帖最后由 格堂柴姐 于 2023-4-25 10:40 编辑

负一楼原始结构图: -1F原始结构图.jpg
负一楼平面布置图:
-1F平面布置图.jpg
回复 支持 反对

使用道具 举报

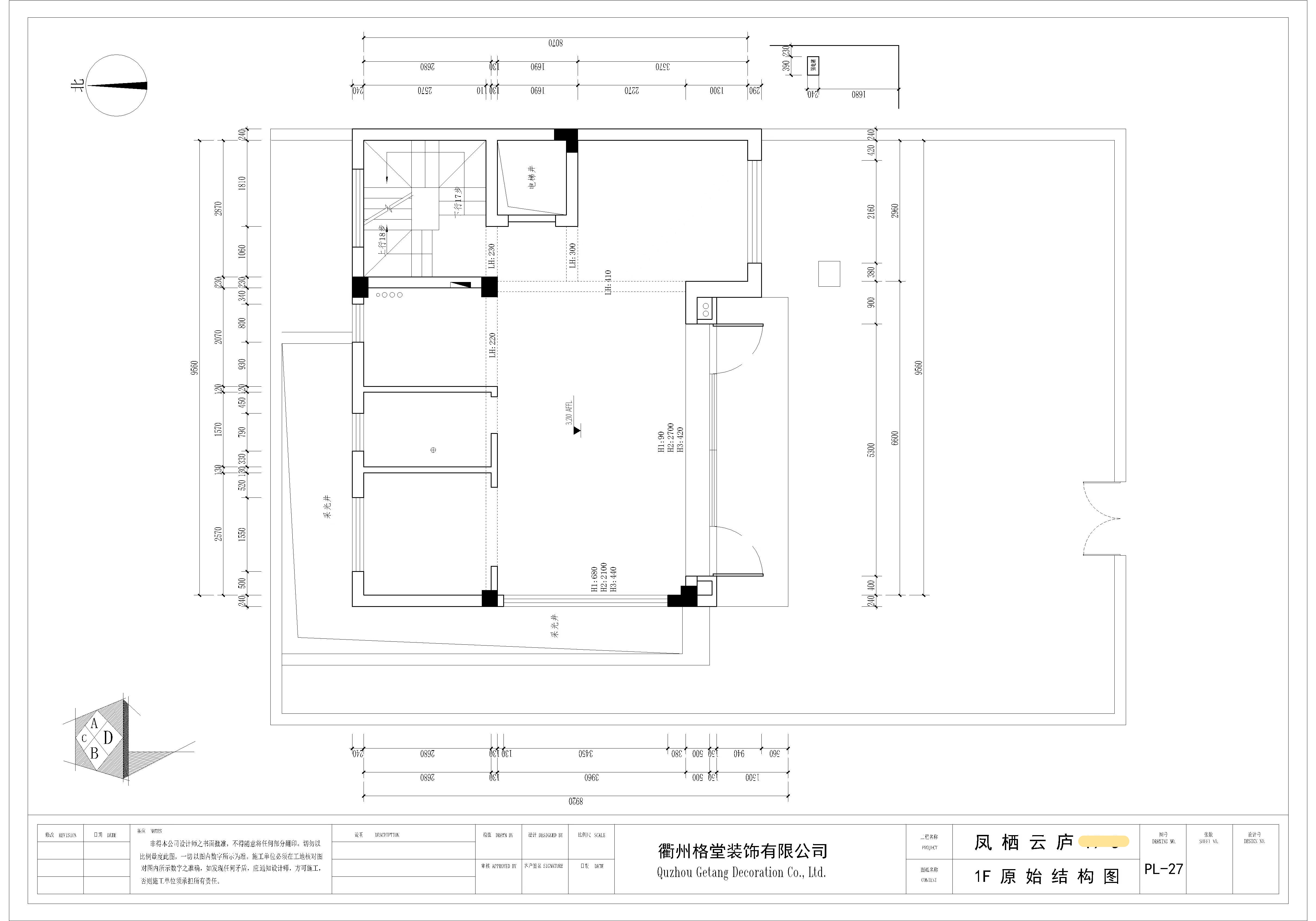
 楼主| 发表于 2023-4-25 10:41:42 | 显示全部楼层
一楼原始结构图:
1F原始结构图.jpg
一楼平面布置图:
1F平面布置图.jpg
回复 支持 反对

使用道具 举报

 楼主| 发表于 2023-4-25 10:42:28 | 显示全部楼层
二楼原始结构图:
2F原始结构图.jpg
二楼平面布置图:
2F平面布置图.jpg
回复 支持 反对

使用道具 举报

 楼主| 发表于 2023-4-25 10:43:29 | 显示全部楼层
三楼原始结构图:
3F原始结构图.jpg
三楼平面布置图:
3F平面布置图.jpg
回复 支持 反对

使用道具 举报

 楼主| 发表于 2023-4-25 10:50:26 | 显示全部楼层
开工时大门已经保护到位。
微信图片_202304251046385.jpg

微信图片_202304251046391.jpg

微信图片_202304251046381.jpg

微信图片_202304251046382.jpg
回复 支持 反对

使用道具 举报

 楼主| 发表于 2023-4-25 10:51:30 | 显示全部楼层
地下车库位置已保护到位:
微信图片_202304251046395.jpg
回复 支持 反对

使用道具 举报

 楼主| 发表于 2023-4-25 10:52:12 | 显示全部楼层
本帖最后由 格堂柴姐 于 2023-5-2 11:22 编辑

临时小便池已经安放好了:每一个施工现场都会配备临时小便斗,并且时刻保持干净卫生,保证工地环境干净整洁。
微信图片_202304251046383.jpg

煤气表已经保护到位。
IMG_20230502_080710.jpg

露出的管道已用格堂封堵盖好,防止灰尘垃圾掉落。
IMG_20230502_080857.jpg

IMG_20230502_080906.jpg

IMG_20230502_080702.jpg

回复 支持 反对

使用道具 举报

您需要登录后才可以回帖 登录 | 立即注册

本版积分规则

全国统一客服电话
0570-8028505

24x7小时免费咨询

  • 官方在线客服

    QQ客服:小西

    点击交谈

    QQ客服:良子

    点击交谈

    QQ客服:闵月

    点击交谈
  • 衢州市柯城区财富中心3号楼2楼

  • 衢州格堂装饰有限公司

  • 扫一扫关注官方微信

    获取一手特惠信息

快速回复 返回顶部 返回列表