• 手机版

    扫码体验手机版

  • 微信公众号

    扫码关注公众号

登录注册
游客您好
第三方账号登陆

[龙游] 龙都锦城8-2-16#120㎡现代——白里

[复制链接]
发表于 2023-4-9 15:17:25 | 显示全部楼层 |阅读模式
白里

格堂装饰为您全程记录装修全过程!

小区名称
龙都锦城
房屋面积
120㎡
户型结构
套房
装修风格
现代
装修方式
半包
装修造价
查看请联系客服万元
设计师
徐工
项目经理
方工
装修公司
格堂装饰
完工实景
完工实景
水电全景
水电全景
VR全景
VR全景
设计说明
整体空间以简约白色为主,高饱和的亮色软装点缀
穿插,让整个空间的秩序美感更丰富。
区别于传统装修的黑白灰,用色彩元素加上圆形三
角形及其他规则几何形状,材质上选取很多创新材
料玻璃、塑料等进行再创作。
更多信息
本帖最后由 格堂艳子 于 2024-1-12 16:51 编辑

效果图

IMG_5832(20230409-111034).JPG

IMG_5830(20230409-111026).JPG

IMG_5827(20230409-111011).JPG


IMG_5828(20230409-111017).JPG

IMG_5831(20230409-111029).JPG


目      录


1开工            9油漆中途
2 拆改阶段10安装施工
3砌墙阶段         黄墙绿地11
4水电放样        水电材料12
5水电中途       水电完工图13
6水电细节       水电验收14
7木工材料       防水阶段15
8木工阶段     (不含泥工)16






回复

使用道具 举报

 楼主| 发表于 2023-4-9 15:19:50 | 显示全部楼层
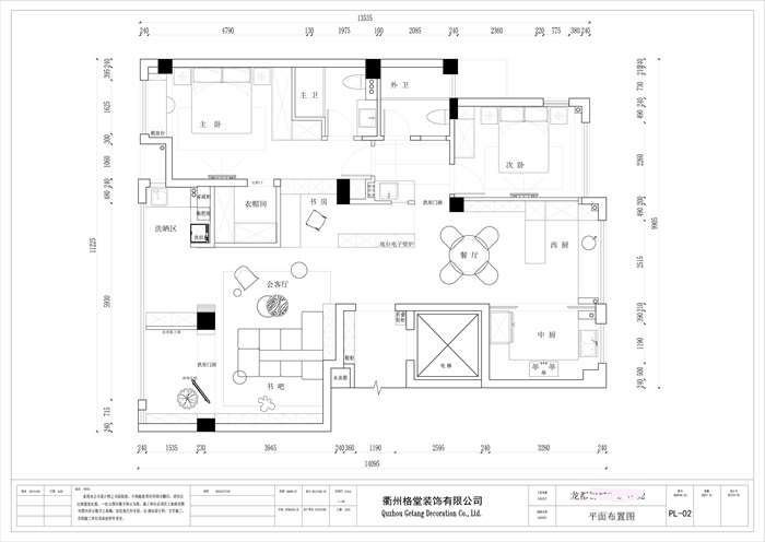
平面布置图

IMG_5834(20230409-111121).JPG

原始结构图

IMG_5835(20230409-111146).JPG
回复 支持 反对

使用道具 举报

 楼主| 发表于 2023-4-11 14:39:30 | 显示全部楼层
电梯口墙面和地面都贴好了格堂专用的保护垫。
IMG_6045(20230411-142936).JPG

IMG_6046(20230411-142939).JPG



回复 支持 反对

使用道具 举报

 楼主| 发表于 2023-4-11 14:44:32 | 显示全部楼层
本帖最后由 格堂艳子 于 2023-5-17 15:20 编辑

开工前准备
IMG_5717.JPG

IMG_5698.JPG

回复 支持 反对

使用道具 举报

 楼主| 发表于 2023-4-25 10:44:53 | 显示全部楼层
本帖最后由 格堂艳子 于 2023-5-17 15:00 编辑

排水管道用格堂装饰专用保护盖保护,防止后期施工砂石堵塞管道
IMG_5799.JPG

IMG_5800.JPG
回复 支持 反对

使用道具 举报

 楼主| 发表于 2023-4-26 09:37:36 | 显示全部楼层
本帖最后由 格堂艳子 于 2023-5-17 15:01 编辑

开工前大门已保护到位,防止磕碰
IMG_5801.JPG

IMG_5798(20230409-101939).JPG









回复 支持 反对

使用道具 举报

 楼主| 发表于 2023-4-26 09:38:12 | 显示全部楼层
本帖最后由 格堂艳子 于 2023-5-17 15:03 编辑

煤气表做好保护,防止磕碰受损 IMG_5797.JPG








回复 支持 反对

使用道具 举报

 楼主| 发表于 2023-4-26 09:41:12 | 显示全部楼层
本帖最后由 格堂艳子 于 2023-5-17 15:07 编辑

临时马桶:每一个施工现场都会配备临时小便斗,并且时刻保持干净卫生、保证工地环境干净、整洁。
IMG_1109.JPG





回复 支持 反对

使用道具 举报

 楼主| 发表于 2023-4-26 09:42:05 | 显示全部楼层
本帖最后由 格堂艳子 于 2023-5-17 15:08 编辑

卧室
IMG_5689.JPG

IMG_5690.JPG

IMG_5691.JPG

IMG_5692.JPG
回复 支持 反对

使用道具 举报

 楼主| 发表于 2023-5-17 15:09:42 | 显示全部楼层
阳台、客餐厅

IMG_5695.JPG

IMG_5693.JPG

IMG_5692.JPG

IMG_5694.JPG
回复 支持 反对

使用道具 举报

您需要登录后才可以回帖 登录 | 立即注册

本版积分规则

全国统一客服电话
0570-8028505

24x7小时免费咨询

  • 官方在线客服

    QQ客服:小西

    点击交谈

    QQ客服:良子

    点击交谈

    QQ客服:闵月

    点击交谈
  • 衢州市柯城区财富中心3号楼2楼

  • 衢州格堂装饰有限公司

  • 扫一扫关注官方微信

    获取一手特惠信息

快速回复 返回顶部 返回列表