• 手机版

    扫码体验手机版

  • 微信公众号

    扫码关注公众号

登录注册
游客您好
第三方账号登陆

智兴家园4-1-1#113㎡现代——拾光逐影 共谱闲逸

[复制链接]
发表于 2023-4-7 09:44:39 | 显示全部楼层 |阅读模式
智兴家园4-1-1#113㎡现代——拾光逐影 共谱闲逸

格堂装饰实景完工案例欣赏!

小区名称
智兴家园
房屋面积
113㎡
户型结构
套房
装修风格
现代
装修方式
全包
装修造价
查看请联系客服万元
设计师
王工
项目经理
余工
装修公司
格堂装饰
装修过程
装修日记
设计说明
欣喜归家
无阻碍的宽阔格局
瞬间触动了心灵
从熠熠波动的细碎轻光中
静静感受自在
向上延伸
运用深色与浅色碰撞出利落感
再通过穿插、凹凸
镂空的设计手法
释放空间张力
促使观感变得立体稳定
更多信息
7E1A4605.jpg


回复

使用道具 举报

 楼主| 发表于 2023-4-7 09:47:17 | 显示全部楼层
主卧▼▼▼



7E1A4630.jpg


7E1A4631.jpg


7E1A4632.jpg



7E1A4633.jpg


回复 支持 1 反对 0

使用道具 举报

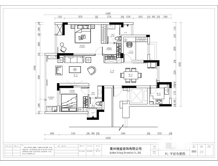
 楼主| 发表于 2023-4-7 09:45:27 | 显示全部楼层
原始构图▼▼▼

165644a4dyysyygqphpepw.jpg

平面布置图▼▼▼


165732ksvwpph3rqxipxc3.jpg




回复 支持 反对

使用道具 举报

 楼主| 发表于 2023-4-7 09:45:46 | 显示全部楼层
客厅▼▼▼



7E1A4603.jpg


7E1A4605.jpg


7E1A4606.jpg


7E1A4607.jpg


7E1A4608.jpg


7E1A4609.jpg


7E1A4610.jpg




回复 支持 反对

使用道具 举报

 楼主| 发表于 2023-4-7 09:46:12 | 显示全部楼层
餐厅▼▼▼



7E1A4612.jpg


7E1A4613.jpg


7E1A4614.jpg


7E1A4615.jpg




回复 支持 反对

使用道具 举报

 楼主| 发表于 2023-4-7 09:46:35 | 显示全部楼层
玄关▼▼▼



7E1A4616.jpg


回复 支持 反对

使用道具 举报

 楼主| 发表于 2023-4-7 09:48:16 | 显示全部楼层
次卧▼▼▼



7E1A4625.jpg


回复 支持 反对

使用道具 举报

 楼主| 发表于 2023-4-7 09:48:54 | 显示全部楼层
次卫干区▼▼▼



7E1A4628.jpg


7E1A4629.jpg


7E1A4637.jpg




回复 支持 反对

使用道具 举报

 楼主| 发表于 2023-4-7 09:49:09 | 显示全部楼层
主卫▼▼▼



7E1A4635.jpg

7E1A4636.jpg



回复 支持 反对

使用道具 举报

 楼主| 发表于 2023-4-7 09:49:27 | 显示全部楼层
阳台▼▼▼



7E1A4641.jpg

7E1A4642.jpg



回复 支持 反对

使用道具 举报

您需要登录后才可以回帖 登录 | 立即注册

本版积分规则

全国统一客服电话
0570-8028505

24x7小时免费咨询

  • 官方在线客服

    QQ客服:小西

    点击交谈

    QQ客服:良子

    点击交谈

    QQ客服:闵月

    点击交谈
  • 衢州市柯城区财富中心3号楼2楼

  • 衢州格堂装饰有限公司

  • 扫一扫关注官方微信

    获取一手特惠信息

快速回复 返回顶部 返回列表