• 手机版

    扫码体验手机版

  • 微信公众号

    扫码关注公众号

登录注册
游客您好
第三方账号登陆

[衢州] 文华园19-2-11#142㎡北欧原木—北欧原木复式温馨居

[复制链接]
发表于 2023-4-7 09:36:25 | 显示全部楼层 |阅读模式
文华园19-2-11#142㎡北欧原木—北欧原木复式温馨居

格堂装饰为您全程记录装修全过程!

小区名称
文华园
房屋面积
142㎡
户型结构
套房
装修风格
北欧
装修方式
半包
装修造价
查看请联系客服万元
设计师
吴工
项目经理
徐工
装修公司
格堂装饰
完工实景
完工实景
水电全景
水电全景
VR全景
VR全景
设计说明
142平复式,打造温馨原木风格,结构上将厨房和客餐厅打通,整体一个大开间开放式厨房的做法,搭配超高的层高,以及顶层的外部视野风光,整体舒适温馨,惬意自然。
更多信息
本帖最后由 格堂王姐 于 2023-4-8 11:27 编辑

效果图
微信图片_20230407141350.jpg


微信图片_20230407141402.jpg
回复

使用道具 举报

 楼主| 发表于 2023-4-8 11:29:43 | 显示全部楼层
本帖最后由 格堂王姐 于 2023-11-19 09:44 编辑

目      录





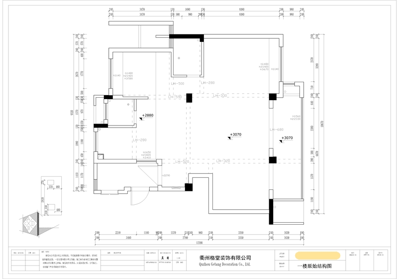
一楼原始结构图

微信图片_20230407141416.jpg

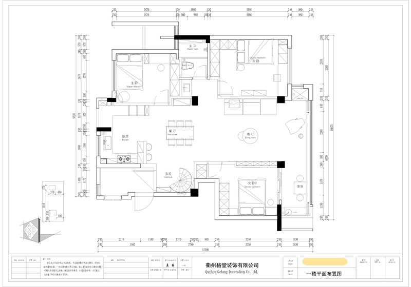
一楼平面布置图

微信图片_20230407141421.jpg

二楼原始结构图
微信图片_20230407141425.jpg


二楼平面布置图
微信图片_20230407141429.jpg


回复 支持 反对

使用道具 举报

 楼主| 发表于 2023-4-8 13:49:24 | 显示全部楼层
开工仪式准备,开工横幅、鲜花、礼花准备到位,就等吉时!
开工桌摆好准备

微信图片_20230408104623.jpg

吉时到开工了,恭祝业主大人开工大吉!
仪式很短暂,家居装修却很长……与漫漫人生历程相比,这些短短一瞬,却包含了满满的心意。
我们竭力用自己的专业技能,让每位业主拥有最接近梦想的家!恭祝开工大吉!

开工合影

微信图片_20230408104649.jpg

开工第一锤,由业主敲在要拆除的墙体的墙角(即拐角),
象征一锤定音的意思,也是新房动土的一种表示方式
业主敲下第一锤

微信图片_20230408104706.jpg

敲完的痕迹

微信图片_20230408104710.jpg



回复 支持 反对

使用道具 举报

 楼主| 发表于 2023-4-14 16:11:52 | 显示全部楼层
拆改可以让空间利用更合理,敲墙垃圾都会及时清理出去,保持现场卫生整洁,同时方便施工。
为了整体结构的稳定性和安全性,承重墙是一定不能动的。

微信图片_20230414160444.jpg

微信图片_20230414160458.jpg

微信图片_20230414160503.jpg

微信图片_20230414160508.jpg

微信图片_20230414160512.jpg

回复 支持 反对

使用道具 举报

 楼主| 发表于 2023-4-14 16:12:29 | 显示全部楼层
微信图片_20230414160535.jpg

微信图片_20230414160539.jpg

微信图片_20230414160543.jpg

微信图片_20230414160547.jpg
回复 支持 反对

使用道具 举报

 楼主| 发表于 2023-4-17 15:14:43 | 显示全部楼层
拆改可以让空间利用更合理,敲墙垃圾都会及时清理出去,保持现场卫生整洁,同时方便施工。
为了整体结构的稳定性和安全性,承重墙是一定不能动的。

电梯口墙面和地面都贴好了格堂专用的保护垫。

IMG_4095.JPG

IMG_4096.JPG

IMG_4097.JPG

IMG_4098.JPG

IMG_4099.JPG






回复 支持 反对

使用道具 举报

 楼主| 发表于 2023-4-17 15:16:43 | 显示全部楼层
煤气表保护到位

IMG_4136.JPG


临时马桶:每一个施工现场都会配备临时小便斗,并且时刻保持干净卫生、保证工地环境干净、整洁。

IMG_4139.JPG


排水管道用格堂专用保护盖保护,防止后期施工中砂石 堵塞管道

IMG_4137.JPG

IMG_4138.JPG






回复 支持 反对

使用道具 举报

 楼主| 发表于 2023-4-17 15:17:20 | 显示全部楼层
玄关

IMG_4100.JPG

IMG_4101.JPG
IMG_4102.JPG

IMG_4103.JPG

回复 支持 反对

使用道具 举报

 楼主| 发表于 2023-4-17 15:18:14 | 显示全部楼层
客厅拆除到位
IMG_4104.JPG

IMG_4105.JPG

IMG_4107.JPG

IMG_4108.JPG

IMG_4109.JPG


IMG_4106.JPG
回复 支持 反对

使用道具 举报

 楼主| 发表于 2023-4-17 15:19:08 | 显示全部楼层
IMG_4110.JPG

IMG_4111.JPG

IMG_4112.JPG


回复 支持 反对

使用道具 举报

您需要登录后才可以回帖 登录 | 立即注册

本版积分规则

全国统一客服电话
0570-8028505

24x7小时免费咨询

  • 官方在线客服

    QQ客服:小西

    点击交谈

    QQ客服:良子

    点击交谈

    QQ客服:闵月

    点击交谈
  • 衢州市柯城区财富中心3号楼2楼

  • 衢州格堂装饰有限公司

  • 扫一扫关注官方微信

    获取一手特惠信息

快速回复 返回顶部 返回列表