• 手机版

    扫码体验手机版

  • 微信公众号

    扫码关注公众号

登录注册
游客您好
第三方账号登陆

[衢州] 碧荷苑1-1-6#107㎡现代—寅·新

[复制链接]
发表于 2023-3-26 17:41:06 | 显示全部楼层 |阅读模式
碧荷苑1-1-6#107㎡现代—寅·新

格堂装饰为您全程记录装修全过程!

小区名称
碧荷苑
房屋面积
107㎡
户型结构
套房
装修风格
现代
装修方式
半包
装修造价
查看请联系客服万元
设计师
杨工
项目经理
杨工
装修公司
格堂装饰
完工实景
完工实景
水电全景
水电全景
VR全景
VR全景
设计说明
新家新生活
更多信息
效果图

7147a6abc9f14ee725cd41164c2211f.jpg
回复

使用道具 举报

 楼主| 发表于 2023-3-26 17:42:07 | 显示全部楼层

目      录

1开工9防水   线槽修补
2拆改10泥木工材料
3砌墙11泥木工中途
4水电放样12泥木工验收
5开槽   水电材料13油漆材料
6水电中途14油漆中途
7水电完工图15安装阶段
8水电细节16竣工验收

回复 支持 反对

使用道具 举报

 楼主| 发表于 2023-3-26 17:42:36 | 显示全部楼层
原始结构图
cb5b1f06a2f9a85786aaf083f9edf7c.jpg
回复 支持 反对

使用道具 举报

 楼主| 发表于 2023-3-26 17:43:12 | 显示全部楼层
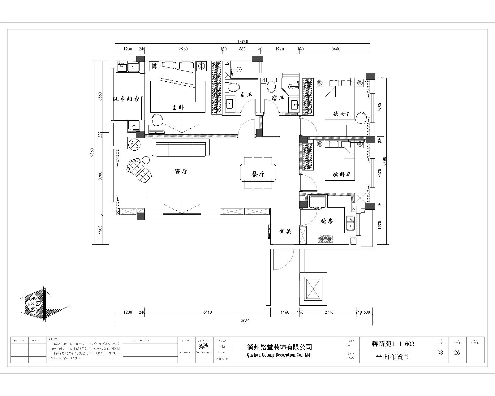
平面布置图
57fc5df9eb5eb669d78a3e4c07dfdec.jpg
回复 支持 反对

使用道具 举报

 楼主| 发表于 2023-3-26 17:45:18 | 显示全部楼层
本帖最后由 GT040 于 2023-3-26 17:46 编辑

开工前准备
e0a696c214a7d3dc3625dba35ebde1e.jpg

ad99dfd13cd95597f6e023508340a2c.jpg

62b1bb4d7f512c69addddb7fd2b3e6c.jpg

07798e7565d30790699d1e6182a03af.jpg

回复 支持 反对

使用道具 举报

 楼主| 发表于 2023-3-26 17:46:46 | 显示全部楼层
本帖最后由 GT040 于 2023-3-26 17:48 编辑

一切准备就绪,就等吉时!
a154cbe8dd45f993f7ae449959a407f.jpg

0ebfe1d377fa5df1f0852cc6bdeb351.jpg

回复 支持 反对

使用道具 举报

 楼主| 发表于 2023-3-26 17:48:25 | 显示全部楼层
本帖最后由 GT040 于 2023-3-26 17:49 编辑

吉时到开工了,恭祝业主大人开工大吉
eaf8ee5009d84a26fb80113d30f154e.jpg
回复 支持 反对

使用道具 举报

 楼主| 发表于 2023-3-26 17:49:44 | 显示全部楼层
开工第一锤由业主大人敲下。
b11f6e2cc1a6fb140c05cc9f9ff60bc.jpg
回复 支持 反对

使用道具 举报

 楼主| 发表于 2023-3-26 17:50:09 | 显示全部楼层
装修开工第一锤应该敲在要拆除的墙体的墙角(即拐角)上,象征一锤定音的意思,也是新房动土的一种表示方式。
391e3afd30093c44738850d93e4a09d.jpg
回复 支持 反对

使用道具 举报

您需要登录后才可以回帖 登录 | 立即注册

本版积分规则

全国统一客服电话
0570-8028505

24x7小时免费咨询

  • 官方在线客服

    QQ客服:小西

    点击交谈

    QQ客服:良子

    点击交谈

    QQ客服:闵月

    点击交谈
  • 衢州市柯城区财富中心3号楼2楼

  • 衢州格堂装饰有限公司

  • 扫一扫关注官方微信

    获取一手特惠信息

快速回复 返回顶部 返回列表