• 手机版

    扫码体验手机版

  • 微信公众号

    扫码关注公众号

登录注册
游客您好
第三方账号登陆

[衢州] 文华园18-2-5#118㎡现代——极简

[复制链接]
发表于 2023-3-25 10:04:42 | 显示全部楼层 |阅读模式
文华园18-2-5#118㎡现代——极简

格堂装饰为您全程记录装修全过程!

小区名称
文华园
房屋面积
118㎡
户型结构
套房
装修风格
现代
装修方式
全包
装修造价
查看请联系客服万元
设计师
吴工
项目经理
施工
装修公司
格堂装饰
完工实景
完工实景
水电全景
水电全景
VR全景
VR全景
设计说明
从清晨到黄昏,无需特意做什么,家会给予我们落地生根的感动。处于全局考虑,并未大尺度重构,而是自然分割,完整互联,展露统一、规整、清晰的视觉美感,赋予归家时刻静心愉悦的感受
更多信息
本帖最后由 格堂柴姐 于 2023-4-12 17:05 编辑

效果图
mmexport1679663922666.png

mmexport1679663924845.png
回复

使用道具 举报

 楼主| 发表于 2023-3-25 10:05:39 | 显示全部楼层
本帖最后由 格堂柴姐 于 2023-7-7 11:18 编辑

目      录

回复 支持 反对

使用道具 举报

 楼主| 发表于 2023-3-25 10:22:38 | 显示全部楼层
本帖最后由 格堂柴姐 于 2023-4-12 17:07 编辑

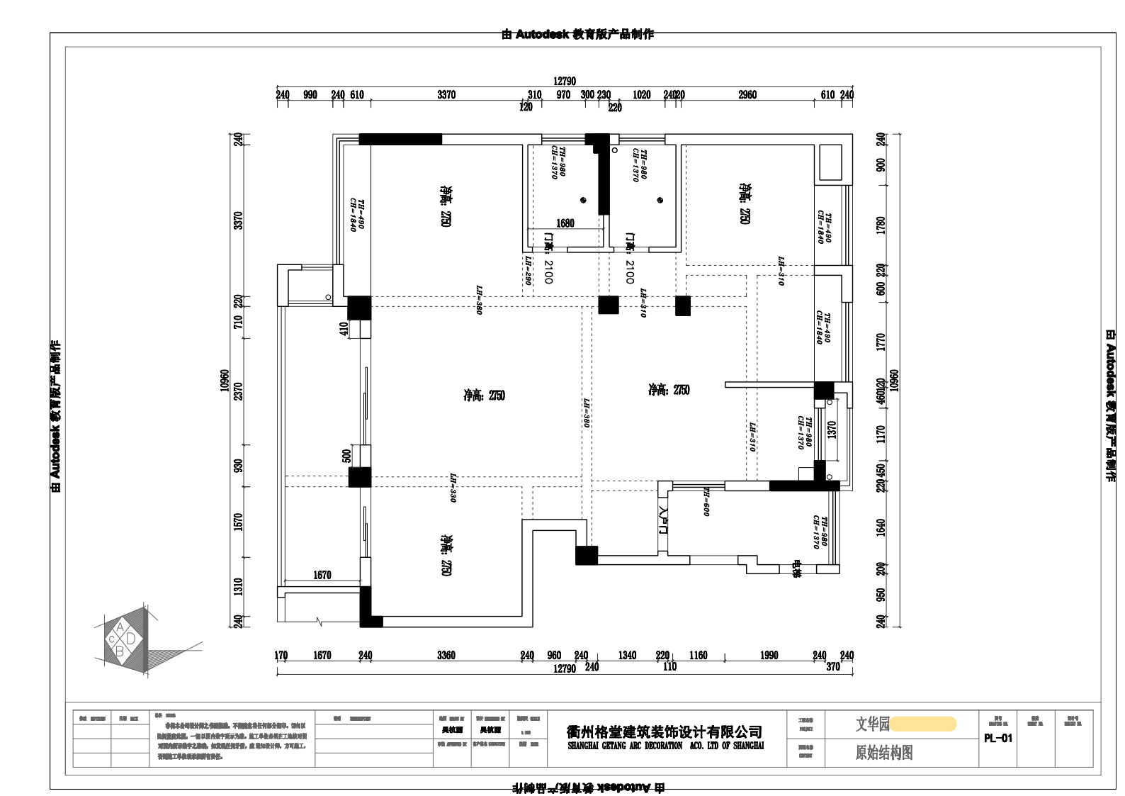
原始结构图: 原始结构图-Model_1.png

平面布置图:
平面布置图)-Model_1.png
回复 支持 反对

使用道具 举报

 楼主| 发表于 2023-3-25 10:26:38 | 显示全部楼层

回复

使用道具 举报

 楼主| 发表于 2023-3-25 10:39:08 | 显示全部楼层
墙面顶部的老灰已经铲干净了,要拆改的地方已经拆改到位。铲灰是为了防止墙顶面出现空鼓,在做好油漆后不会有墙顶面整块油漆脱落的现象。
mmexport1679663223686.jpg

mmexport1679663227902.jpg

mmexport1679663232381.jpg

mmexport1679663245052.jpg

mmexport1679663249184.jpg

mmexport1679663253483.jpg

mmexport1679663257759.jpg

mmexport1679663236620.jpg

mmexport1679663240867.jpg

mmexport1679663271565.jpg

mmexport1679663275889.jpg

mmexport1679663280079.jpg

回复 支持 反对

使用道具 举报

 楼主| 发表于 2023-3-25 10:47:27 | 显示全部楼层

拆墙后卫生打扫干净整洁
mmexport1679663313782.jpg

mmexport1679663318249.jpg

mmexport1679663322369.jpg

mmexport1679663330957.jpg

mmexport1679663335079.jpg

mmexport1679663339169.jpg

mmexport1679663343306.jpg

mmexport1679663347510.jpg


回复 支持 反对

使用道具 举报

 楼主| 发表于 2023-3-25 10:50:57 | 显示全部楼层
砌墙放样
mmexport1679663353357.jpg

mmexport1679663357558.jpg

mmexport1679663361825.jpg

mmexport1679663366036.jpg

mmexport1679663370206.jpg

mmexport1679663374304.jpg

mmexport1679663378543.jpg

mmexport1679663419870.jpg

mmexport1679663424058.jpg

mmexport1679663428313.jpg

mmexport1679663432490.jpg




mmexport1679663386964.jpg
mmexport1679663391099.jpg
mmexport1679663395412.jpg
mmexport1679663399572.jpg
回复 支持 反对

使用道具 举报

 楼主| 发表于 2023-3-25 10:53:05 | 显示全部楼层
材料图片
mmexport1679663411573.jpg

mmexport1679663415723.jpg

mmexport1679663419870.jpg

mmexport1679663382705.jpg




回复 支持 反对

使用道具 举报

 楼主| 发表于 2023-3-25 10:57:46 | 显示全部楼层
砌墙图片 :多孔砖、条砖,多孔砖隔音效果好,用红砖砌墙隔音效果好,挂电视牢固,墙体不易开裂。
mmexport1679663436834.jpg

mmexport1679663441031.jpg

mmexport1679663445228.jpg

mmexport1679663449729.jpg

mmexport1679663454294.jpg

mmexport1679663458622.jpg

mmexport1679663463104.jpg

mmexport1679663475645.jpg

mmexport1679663484054.jpg

mmexport1679663488214.jpg

mmexport1679663492385.jpg

mmexport1679663495688.jpg

mmexport1679663520584.jpg

mmexport1679663525439.jpg

mmexport1679663529598.jpg

mmexport1679663533846.jpg

mmexport1679663581813.jpg


回复 支持 反对

使用道具 举报

 楼主| 发表于 2023-3-25 10:59:03 | 显示全部楼层
墙体平整,沙灰饱满不透光,砖缝平整,上下砖剧中对砌,符合工艺要求。
mmexport1679663467278.jpg

mmexport1679663471468.jpg

回复 支持 反对

使用道具 举报

您需要登录后才可以回帖 登录 | 立即注册

本版积分规则

全国统一客服电话
0570-8028505

24x7小时免费咨询

  • 官方在线客服

    QQ客服:小西

    点击交谈

    QQ客服:良子

    点击交谈

    QQ客服:闵月

    点击交谈
  • 衢州市柯城区财富中心3号楼2楼

  • 衢州格堂装饰有限公司

  • 扫一扫关注官方微信

    获取一手特惠信息

快速回复 返回顶部 返回列表