• 手机版

    扫码体验手机版

  • 微信公众号

    扫码关注公众号

登录注册
游客您好
第三方账号登陆

[开化] 凤凰台3-5#110㎡现代--归途

[复制链接]
发表于 2023-3-24 14:32:08 | 显示全部楼层 |阅读模式
凤凰台3-5#110㎡现代--归途

格堂装饰为您全程记录装修全过程!

小区名称
凤凰台
房屋面积
110㎡
户型结构
4房2厅1阳台
装修风格
现代
装修方式
半包
装修造价
查看请联系客服万元
设计师
余工
项目经理
高工
装修公司
格堂装饰
完工实景
完工实景
水电全景
水电全景
VR全景
VR全景
设计说明
山河远阔,人间烟火。无一是你,无一不是你~
更多信息

原始结构图
原始平面图_副本.jpg
回复

使用道具 举报

 楼主| 发表于 2023-3-24 14:32:35 | 显示全部楼层
本帖最后由 格堂小韩 于 2024-9-19 14:04 编辑


回复 支持 反对

使用道具 举报

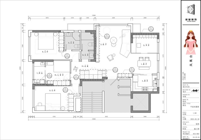
 楼主| 发表于 2023-3-24 14:32:55 | 显示全部楼层

平面布置图
平面布置图_副本.jpg
回复 支持 反对

使用道具 举报

 楼主| 发表于 2023-3-24 14:34:30 | 显示全部楼层

开工前准备
IMG_7733.JPG

IMG_7734.JPG

IMG_7735.JPG

IMG_7736.JPG
回复 支持 反对

使用道具 举报

 楼主| 发表于 2023-3-24 14:36:12 | 显示全部楼层

开工前准备
IMG_7737.JPG

IMG_7738.JPG

IMG_7742.JPG
回复 支持 反对

使用道具 举报

 楼主| 发表于 2023-3-24 14:36:30 | 显示全部楼层

大门保护
IMG_7739.JPG

IMG_7740.JPG

IMG_7741.JPG
回复 支持 反对

使用道具 举报

 楼主| 发表于 2023-3-24 14:37:03 | 显示全部楼层

吉时到,我们开工啦
IMG_7816.JPG

IMG_7813.JPG
回复 支持 反对

使用道具 举报

 楼主| 发表于 2023-3-24 14:38:32 | 显示全部楼层

装修开工第一锤应该敲在要拆除的墙体的墙角(即拐角)上,象征一锤定音的意思,也是新房动土的一种表示方式
IMG_7814.JPG

IMG_7815.JPG

IMG_7806.JPG
回复 支持 反对

使用道具 举报

 楼主| 发表于 2023-3-24 14:39:27 | 显示全部楼层

电梯口保护
IMG_7722.JPG

IMG_7723.JPG

IMG_7724.JPG

IMG_7726.JPG

IMG_7727.JPG
回复 支持 反对

使用道具 举报

 楼主| 发表于 2023-3-24 14:39:58 | 显示全部楼层

电梯口对角保护
IMG_7728.JPG

IMG_7729.JPG

IMG_7730.JPG

IMG_7731.JPG

IMG_7732.JPG
回复 支持 反对

使用道具 举报

您需要登录后才可以回帖 登录 | 立即注册

本版积分规则

全国统一客服电话
0570-8028505

24x7小时免费咨询

  • 官方在线客服

    QQ客服:小西

    点击交谈

    QQ客服:良子

    点击交谈

    QQ客服:闵月

    点击交谈
  • 衢州市柯城区财富中心3号楼2楼

  • 衢州格堂装饰有限公司

  • 扫一扫关注官方微信

    获取一手特惠信息

快速回复 返回顶部 返回列表