• 手机版

    扫码体验手机版

  • 微信公众号

    扫码关注公众号

登录注册
游客您好
第三方账号登陆

[衢州] 文华园12-1#102㎡新中式——雅舍

[复制链接]
发表于 2023-3-21 18:25:03 | 显示全部楼层 |阅读模式
文华园12-1#102㎡新中式——雅舍

格堂装饰为您全程记录装修全过程!

小区名称
文华园
房屋面积
102㎡
户型结构
平层
装修风格
新中式
装修方式
半包
装修造价
查看请联系客服万元
设计师
毛工
项目经理
刘工
装修公司
格堂装饰
完工实景
完工实景
水电全景
水电全景
VR全景
VR全景
设计说明
内敛、雅致是本次设计的主要特征,现代与中式气韵并存,暖灰色地面融合沉稳厚重的木质饰面,木与石的自然情怀,是生命力的表达,让使用者与空间产生精神共鸣,又暗含了一种层序美。
更多信息
本帖最后由 格_堂 于 2023-3-21 18:26 编辑

效果图:

电视背景静态.jpg   
沙发背景静态.jpg

主卧静态.jpg

长辈房.jpg

女儿房.jpg




回复

使用道具 举报

 楼主| 发表于 2023-3-21 18:28:09 | 显示全部楼层
目      录

1开工9防水   线槽修补
2拆改10泥木工材料
3砌墙11泥木工中途
4水电放样12泥木工验收
5开槽   水电材料13油漆材料
6水电中途14油漆中途
7水电完工图15安装阶段
8水电细节16竣工验收
回复 支持 反对

使用道具 举报

 楼主| 发表于 2023-3-21 18:31:49 | 显示全部楼层
原始结构图:

原始结构图.jpg
回复 支持 反对

使用道具 举报

 楼主| 发表于 2023-3-21 18:32:32 | 显示全部楼层
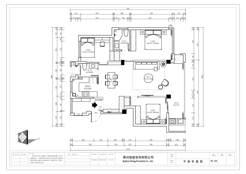
平面布置图:

平面布置图.jpg

回复 支持 反对

使用道具 举报

 楼主| 发表于 2023-3-21 18:33:30 | 显示全部楼层
本帖最后由 格_堂 于 2023-3-21 18:35 编辑

开工大吉:
开工大吉.jpg
回复 支持 反对

使用道具 举报

 楼主| 发表于 2023-3-21 18:38:52 | 显示全部楼层
开工第一锤:
第一锤.jpg
回复 支持 反对

使用道具 举报

您需要登录后才可以回帖 登录 | 立即注册

本版积分规则

全国统一客服电话
0570-8028505

24x7小时免费咨询

  • 官方在线客服

    QQ客服:小西

    点击交谈

    QQ客服:良子

    点击交谈

    QQ客服:闵月

    点击交谈
  • 衢州市柯城区财富中心3号楼2楼

  • 衢州格堂装饰有限公司

  • 扫一扫关注官方微信

    获取一手特惠信息

快速回复 返回顶部 返回列表