[龙游] 江南里19-3#180㎡日式——原木温馨日式 |
|
原木温馨日式
格堂装饰为您全程记录装修全过程! 设计说明
设计理念: 经过沟通,我们和屋主都有一个共同的目标,就是希望这个家的模样,它应该是放松的、治愈的,以日式原木风为主风格。
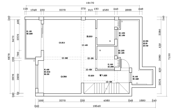
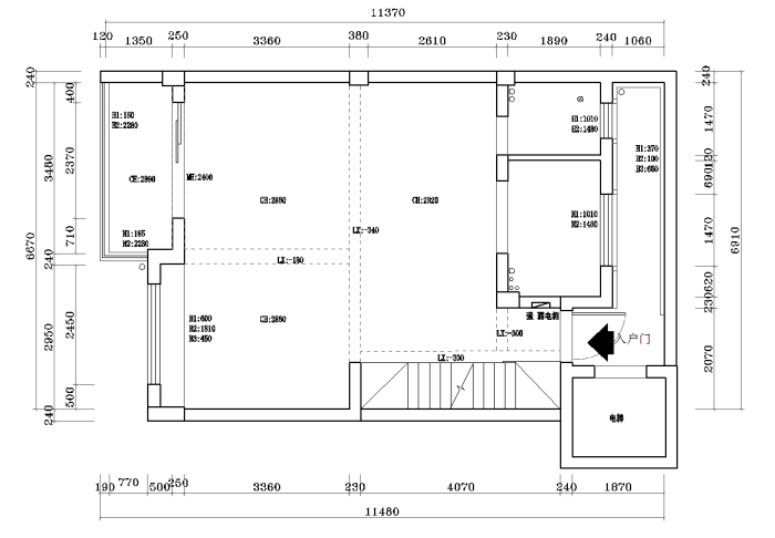
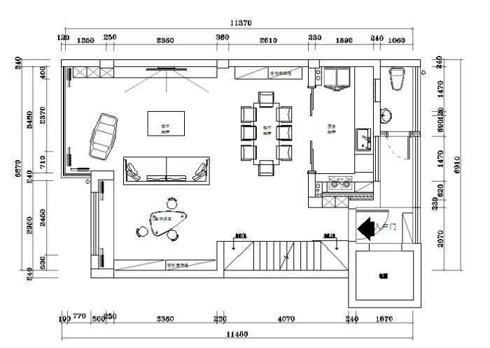
改造后:拆除厨房非承重墙,做开放式厨房,增加厨房的储物功能。 去客厅化,让客厅成为家里学习互动的场所。拆除阳台原有的推拉门,纳入客厅,增加室内的可用面积,平常还能坐在懒人沙发上晒晒太阳,很是悠哉舒服。 更多信息
| |


在线客服
微信客服
关注有礼