• 手机版

    扫码体验手机版

  • 微信公众号

    扫码关注公众号

登录注册
游客您好
第三方账号登陆

[江山] 揽月湾5#132m2法式—流连

[复制链接]
发表于 2023-3-18 11:08:46 | 显示全部楼层 |阅读模式
揽月湾5#132m2法式—流连

格堂装饰为您全程记录装修全过程!

小区名称
揽月湾
房屋面积
132㎡
户型结构
框架结构
装修风格
法式
装修方式
半包
装修造价
查看请联系客服万元
设计师
王工
项目经理
郑工
装修公司
格堂装饰
完工实景
完工实景
水电全景
水电全景
VR全景
VR全景
设计说明
在城市化不可逆的进程中,我们抛弃了过往的生活方式,创造一个个独立,崭新的空间。我们极度满足,实现人最大化的所有需求,追求最舒适最便捷和最精美。但同时在崭新的生活中,慢慢丢失了对环境的眷恋和最自然的的感知能力。所以,我们总是在尝试找回点什么。
更多信息
回复

使用道具 举报

 楼主| 发表于 2023-3-18 11:09:47 | 显示全部楼层
原始结构图

aaa6cb62d35110626a37865d0a00f09.png


回复 支持 反对

使用道具 举报

 楼主| 发表于 2023-3-18 11:11:34 | 显示全部楼层
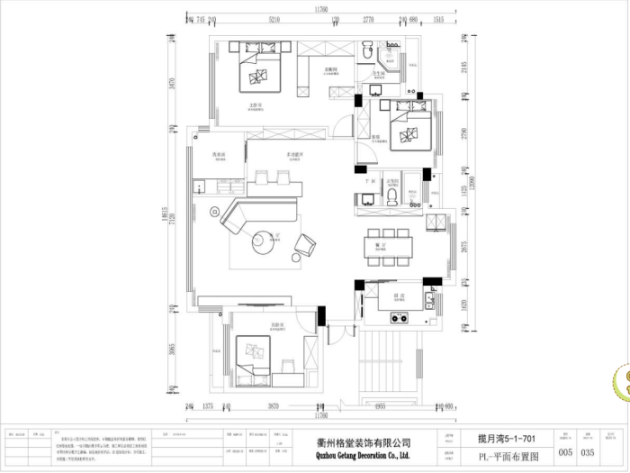
平面布置图

8a6953da137a374f01b25deb7d32d2f.png


回复 支持 反对

使用道具 举报

 楼主| 发表于 2023-3-19 10:19:13 | 显示全部楼层
本帖最后由 格堂红叶 于 2023-3-19 11:09 编辑

开工前大门先保护到位

122858ff161b1a0020a1a80edcab38e.jpg

回复 支持 反对

使用道具 举报

 楼主| 发表于 2023-3-19 10:32:47 | 显示全部楼层
本帖最后由 格堂红叶 于 2023-3-19 11:10 编辑

开工前门口地面已经保护到位,防止磕碰。

00b345b12b2dd540eaf3af2f6d5462b.jpg


回复 支持 反对

使用道具 举报

 楼主| 发表于 2023-3-19 10:40:32 | 显示全部楼层
本帖最后由 格堂红叶 于 2023-3-19 11:10 编辑

卫生间的简易马桶安装到位,防止后期施工中沙石堵塞进入,美观又干净

070d2b9541a200e0abcfdc962ed76e9.jpg


回复 支持 反对

使用道具 举报

 楼主| 发表于 2023-3-19 10:42:44 | 显示全部楼层
本帖最后由 格堂红叶 于 2023-3-19 11:08 编辑

排水管道用格堂装饰专用保护盖保护,防止后期施工砂石堵塞管道

c31db57a64c8d3b5db760840d04dfa3.jpg

0c915c8a7ee56099ada46886275d786.jpg

b25d90769f0ca6bbdeb5f5c941dd1f9.jpg


回复 支持 反对

使用道具 举报

 楼主| 发表于 2023-3-19 11:11:02 | 显示全部楼层
本帖最后由 格堂红叶 于 2023-3-22 10:40 编辑

礼炮已准备好

ee3c600e27df1a6b826f02f55971568.jpg

d5863a421ff36c9ca70c1ac466671fa.jpg


回复 支持 反对

使用道具 举报

 楼主| 发表于 2023-3-19 11:13:10 | 显示全部楼层
开工锤已准备好


f0907d1ad46c2788f7e7eed97574b0b.jpg
回复 支持 反对

使用道具 举报

 楼主| 发表于 2023-3-19 11:15:28 | 显示全部楼层
本帖最后由 格堂红叶 于 2023-3-23 09:07 编辑

送给业主美丽的鲜花

84ec7b858802478aa28c6c674f3cb45.jpg
回复 支持 反对

使用道具 举报

您需要登录后才可以回帖 登录 | 立即注册

本版积分规则

全国统一客服电话
0570-8028505

24x7小时免费咨询

  • 官方在线客服

    QQ客服:小西

    点击交谈

    QQ客服:良子

    点击交谈

    QQ客服:闵月

    点击交谈
  • 衢州市柯城区财富中心3号楼2楼

  • 衢州格堂装饰有限公司

  • 扫一扫关注官方微信

    获取一手特惠信息

快速回复 返回顶部 返回列表