• 手机版

    扫码体验手机版

  • 微信公众号

    扫码关注公众号

登录注册
游客您好
第三方账号登陆

[衢州] 云澜府26-1-6#108㎡现代——大简雅致现代主义

[复制链接]
发表于 2023-2-21 09:11:32 | 显示全部楼层 |阅读模式
云澜府26-1-6#108㎡现代——大简雅致现代主义

格堂装饰为您全程记录装修全过程!

小区名称
云澜府
房屋面积
108㎡
户型结构
套房
装修风格
现代
装修方式
全包
装修造价
查看请联系客服万元
设计师
吴工
项目经理
余工
装修公司
格堂装饰
完工实景
完工实景
水电全景
水电全景
VR全景
VR全景
设计说明
重点就在于简,外形简洁,室内空间朴素、大方,但功能性强。从细节上来说,物品的摆放整洁,装饰的物品少,在颜色和布局上,颜色的种类不多,布局大方,格调简洁、素雅。
更多信息
本帖最后由 GT040 于 2023-2-21 09:14 编辑

效果图
2345截图20230221091242.png
2345截图20230221091219.png
回复

使用道具 举报

 楼主| 发表于 2023-2-21 09:15:08 | 显示全部楼层
本帖最后由 GT040 于 2023-2-21 09:38 编辑

目      录

1开工9防水   线槽修补
2拆改10泥木工材料
3砌墙11泥木工中途
4水电放样12泥木工验收
5开槽   水电材料13油漆材料
6水电中途14油漆中途
7水电完工图15安装阶段
8水电细节16竣工验收
回复 支持 反对

使用道具 举报

 楼主| 发表于 2023-2-21 09:15:55 | 显示全部楼层
本帖最后由 GT040 于 2023-2-21 09:19 编辑

原始结构图 2345截图20230221091826.png


回复 支持 反对

使用道具 举报

 楼主| 发表于 2023-2-21 09:19:31 | 显示全部楼层
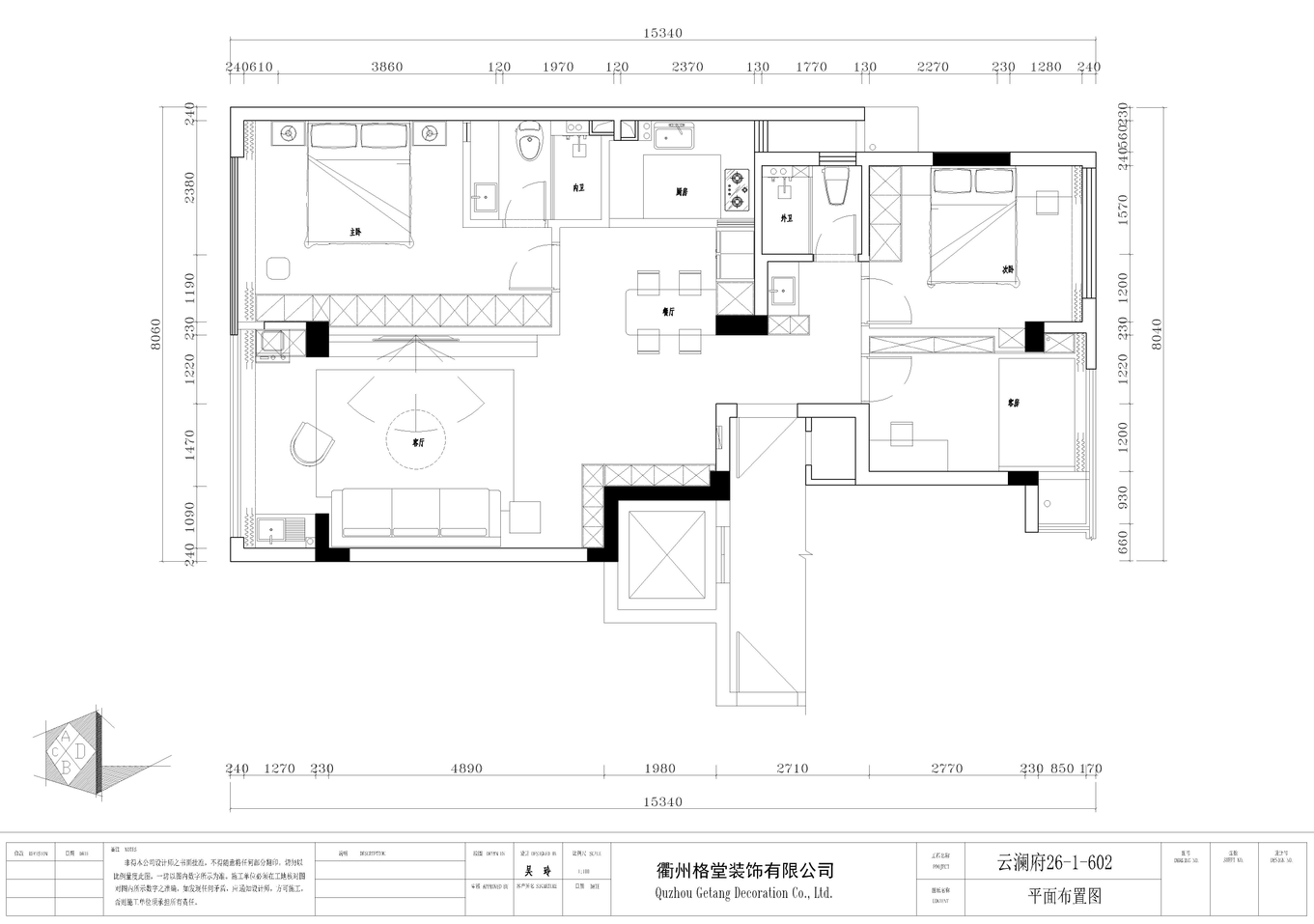
平面布置图 2345截图20230221091846.png
回复 支持 反对

使用道具 举报

 楼主| 发表于 2023-2-21 09:22:24 | 显示全部楼层
本帖最后由 GT040 于 2023-2-21 09:29 编辑

开工前保护。
8d5836b139f981a14c542405ad4a225.jpg
53da1b85926ebcff4e5245b95b4e303.jpg
b391954435bbea0e3774d218a2a3bd4.jpg
86f86dbddbe4bc97c68e9a9ecc02fc4.jpg
fc8dd75acdcb991df1d0761b691caba.jpg
c482ab4cda582e46aeac62af20b5077.jpg

回复 支持 反对

使用道具 举报

 楼主| 发表于 2023-2-21 09:30:10 | 显示全部楼层
本帖最后由 GT040 于 2023-2-21 09:32 编辑

开工仪式准备好。
31c7eba9d7437a19d54600409599489.jpg
5050bba9c215db6941644d399344096.jpg
2dae2e4ea3ea570967494b7828652f6.jpg




回复 支持 反对

使用道具 举报

 楼主| 发表于 2023-2-21 09:32:36 | 显示全部楼层
本帖最后由 GT040 于 2023-2-21 09:35 编辑

开工大吉。
290fea92b52b0ae83c5616a1aaf138a.jpg
回复 支持 反对

使用道具 举报

 楼主| 发表于 2023-2-21 09:36:36 | 显示全部楼层
开工第一锤由业主大人敲下!
23f6fa2494c2520e829dffaade886f5.jpg
回复 支持 反对

使用道具 举报

 楼主| 发表于 2023-2-21 09:37:09 | 显示全部楼层
装修开工第一锤应该敲在要拆除的墙体的墙角(即拐角)上,象征一锤定音的意思,也是新房动土的一种表示方式、

61554b9b9611c19d0d96786b92f3fad.jpg

回复 支持 反对

使用道具 举报

您需要登录后才可以回帖 登录 | 立即注册

本版积分规则

全国统一客服电话
0570-8028505

24x7小时免费咨询

  • 官方在线客服

    QQ客服:小西

    点击交谈

    QQ客服:良子

    点击交谈

    QQ客服:闵月

    点击交谈
  • 衢州市柯城区财富中心3号楼2楼

  • 衢州格堂装饰有限公司

  • 扫一扫关注官方微信

    获取一手特惠信息

快速回复 返回顶部 返回列表