• 手机版

    扫码体验手机版

  • 微信公众号

    扫码关注公众号

登录注册
游客您好
第三方账号登陆

[衢州] 文华园12-2-3#101㎡现代——寅·延续

[复制链接]
发表于 2023-2-20 15:44:45 | 显示全部楼层 |阅读模式
文华园12-2-3#101㎡现代——寅·延续

格堂装饰为您全程记录装修全过程!

小区名称
文华园
房屋面积
101㎡
户型结构
套房
装修风格
现代
装修方式
半包
装修造价
查看请联系客服万元
设计师
杨工
项目经理
杨工
装修公司
格堂装饰
完工实景
完工实景
水电全景
水电全景
VR全景
VR全景
设计说明
人为生活而设计,设计为生活而存在。
更多信息
本帖最后由 GT040 于 2023-2-20 19:42 编辑

效果图
客餐厅_1.jpg
客餐厅_2.jpg
回复

使用道具 举报

 楼主| 发表于 2023-2-20 15:45:15 | 显示全部楼层
本帖最后由 GT040 于 2024-1-21 14:26 编辑

目      录

回复 支持 反对

使用道具 举报

 楼主| 发表于 2023-2-20 19:19:23 | 显示全部楼层
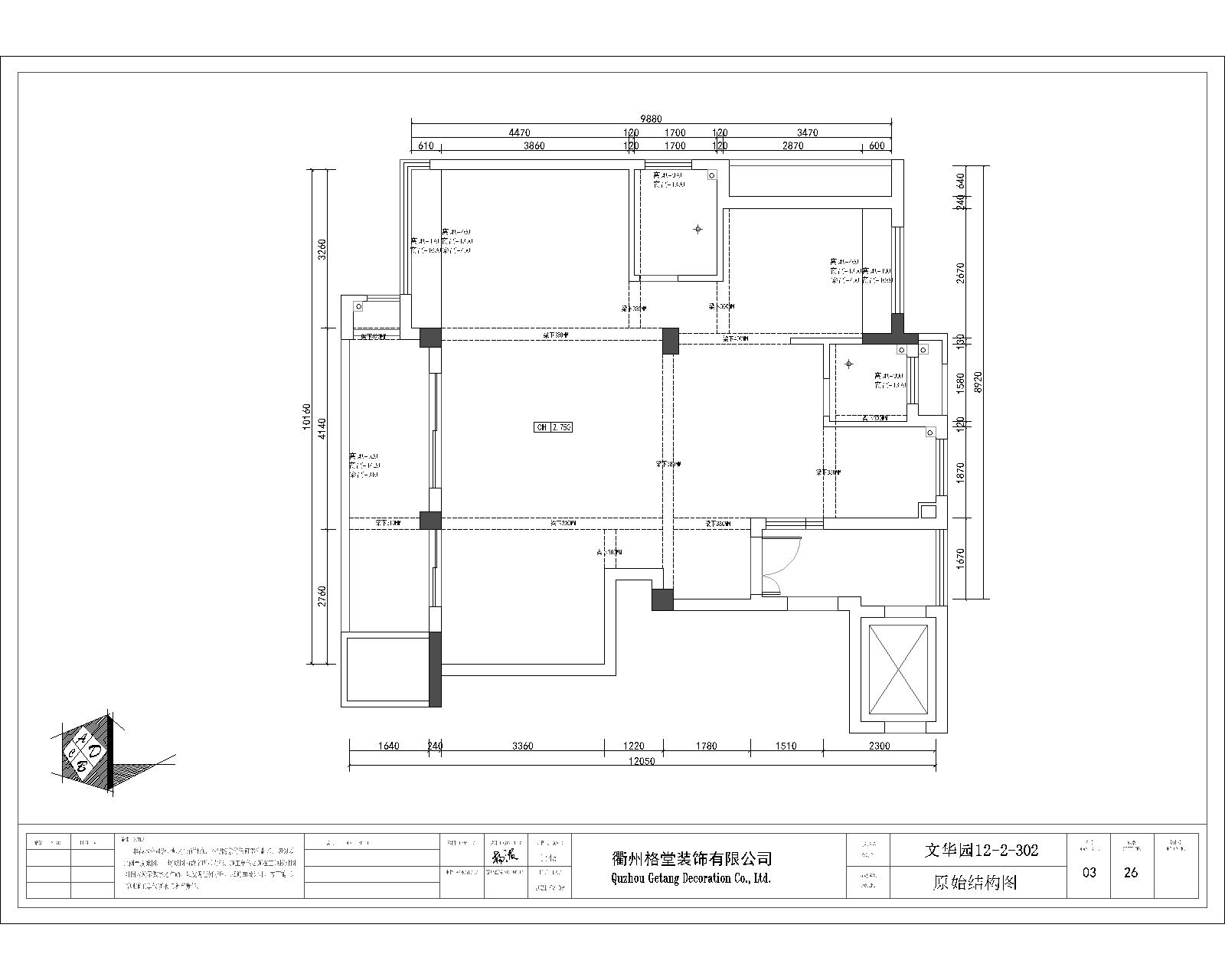
原始结构图 8fe62d15184834e9ada7015bd415554.jpg
回复 支持 反对

使用道具 举报

 楼主| 发表于 2023-2-20 19:20:08 | 显示全部楼层
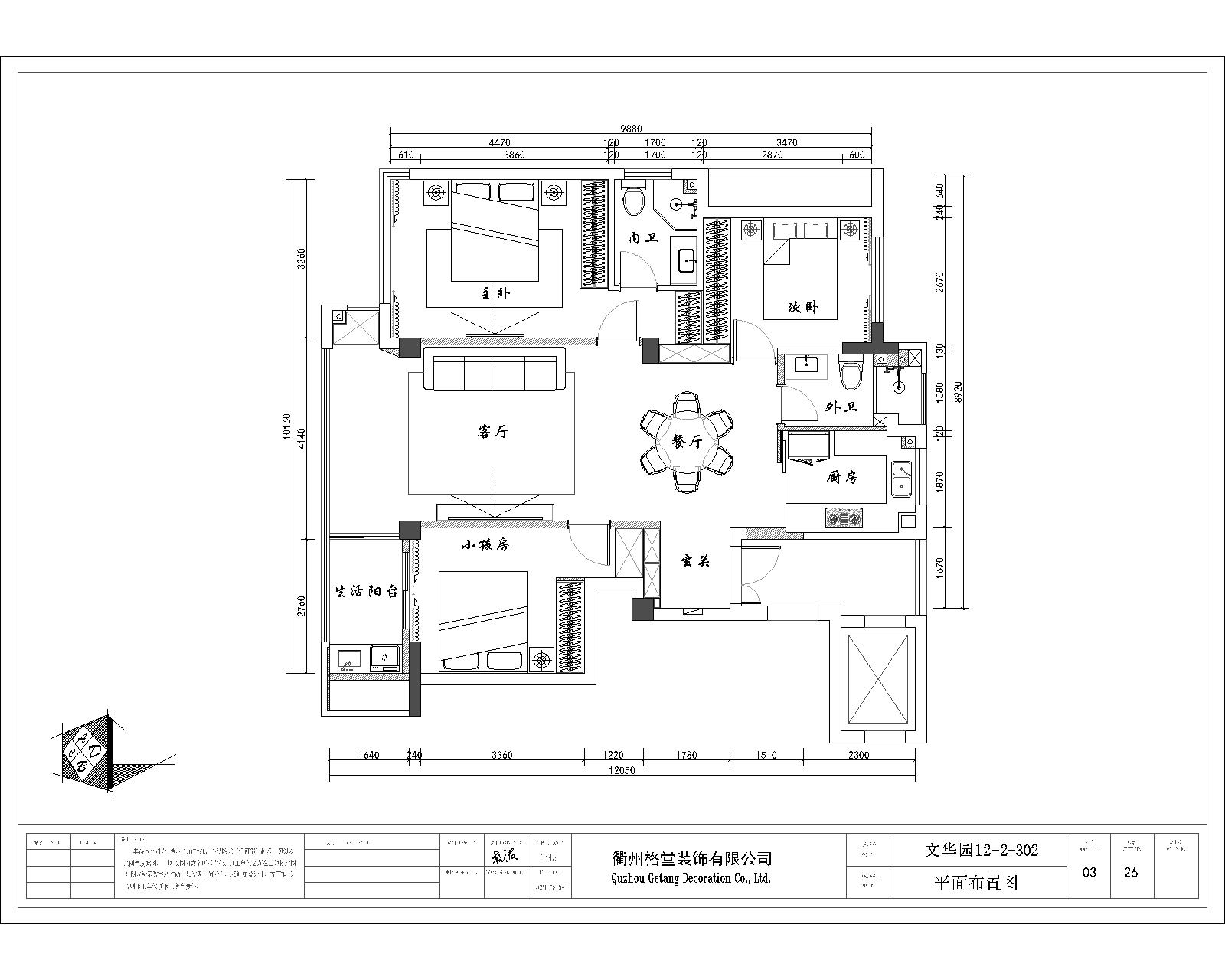
平面布置图 f8674ae6fe2e11d4174fabe7b213672.jpg
回复 支持 反对

使用道具 举报

 楼主| 发表于 2023-2-20 19:22:59 | 显示全部楼层
本帖最后由 GT040 于 2023-2-21 09:21 编辑

开工前保护。
2345截图20230220192356.png
2345截图20230220192403.png
2345截图20230220192415.png
2345截图20230220192422.png
2345截图20230220192431.png
2345截图20230220192437.png



回复 支持 反对

使用道具 举报

 楼主| 发表于 2023-2-20 19:27:40 | 显示全部楼层
本帖最后由 GT040 于 2023-2-20 19:29 编辑

开工仪式准备好 2345截图20230220192849.png
2345截图20230220192516.png
回复 支持 反对

使用道具 举报

 楼主| 发表于 2023-2-20 19:31:21 | 显示全部楼层
本帖最后由 GT040 于 2023-2-20 19:35 编辑

开工大吉 2345截图20230220193504.png
回复 支持 反对

使用道具 举报

 楼主| 发表于 2023-2-20 19:36:02 | 显示全部楼层
本帖最后由 GT040 于 2023-2-21 09:36 编辑

开工第一锤由业主大人敲下!
2345截图20230220193659.png

回复 支持 反对

使用道具 举报

 楼主| 发表于 2023-2-20 19:37:24 | 显示全部楼层
装修开工第一锤应该敲在要拆除的墙体的墙角(即拐角)上,象征一锤定音的意思,也是新房动土的一种表示方式 2345截图20230220193752.png
回复 支持 反对

使用道具 举报

发表于 2023-3-23 17:20:55 | 显示全部楼层
本帖最后由 格堂小叶 于 2023-3-24 16:57 编辑

拆改:
拆除可以让空间利用更合理。为了整体结构的稳定性和安全性,承重墙是一定不能动的

微信图片_20230324164542.jpg

回复 支持 反对

使用道具 举报

您需要登录后才可以回帖 登录 | 立即注册

本版积分规则

全国统一客服电话
0570-8028505

24x7小时免费咨询

  • 官方在线客服

    QQ客服:小西

    点击交谈

    QQ客服:良子

    点击交谈

    QQ客服:闵月

    点击交谈
  • 衢州市柯城区财富中心3号楼2楼

  • 衢州格堂装饰有限公司

  • 扫一扫关注官方微信

    获取一手特惠信息

快速回复 返回顶部 返回列表