• 手机版

    扫码体验手机版

  • 微信公众号

    扫码关注公众号

登录注册
游客您好
第三方账号登陆

[衢州] 衢州公馆11--3-27#134m2---煦暖半溪

[复制链接]
发表于 2023-2-15 15:23:17 | 显示全部楼层 |阅读模式
煦暖半溪

格堂装饰为您全程记录装修全过程!

小区名称
衢州公馆
房屋面积
134㎡
户型结构
四房两厅
装修风格
美式
装修方式
半包
装修造价
查看请联系客服万元
设计师
王工
项目经理
余工
装修公司
格堂装饰
完工实景
完工实景
水电全景
水电全景
VR全景
VR全景
设计说明
日复一日的在忙碌节奏中穿梭前行,人们更需要在简洁的环境中倾听纯净的声音。它来自一张舒适的沙发、一面干净的墙壁、以及孩子沉沉睡着的呼吸。
更多信息
本帖最后由 wangyan 于 2023-4-2 11:44 编辑

效果图
图片1.png
图片2.png
回复

使用道具 举报

 楼主| 发表于 2023-2-15 15:33:57 | 显示全部楼层
本帖最后由 wangyan 于 2023-2-15 15:38 编辑

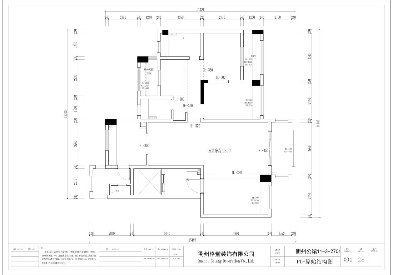
图纸
图片3.png

平面布置图

平面布置图
回复

使用道具 举报

 楼主| 发表于 2023-2-15 15:39:09 | 显示全部楼层
本帖最后由 wangyan 于 2023-2-15 15:40 编辑

开工大吉
86a7768ddf2f8eb8036b35aa22aecd5.jpg
f7b06f46fbea4f0007d087c64b43858.jpg
bb8d54013979aed6b17f5c1063360b5.jpg
1676446386758.jpg
2fa00640625abb856ba01095857529e.jpg
84581b0f7fb2aa09f509738b5dd625f.jpg
77475599e0531cab806e6b71b78d141.jpg
cf207f20d221f326f9ef8eb65db52f6.jpg
f7b06f46fbea4f0007d087c64b43858.jpg
回复

使用道具 举报

您需要登录后才可以回帖 登录 | 立即注册

本版积分规则

全国统一客服电话
0570-8028505

24x7小时免费咨询

  • 官方在线客服

    QQ客服:小西

    点击交谈

    QQ客服:良子

    点击交谈

    QQ客服:闵月

    点击交谈
  • 衢州市柯城区财富中心3号楼2楼

  • 衢州格堂装饰有限公司

  • 扫一扫关注官方微信

    获取一手特惠信息

快速回复 返回顶部 返回列表