• 手机版

    扫码体验手机版

  • 微信公众号

    扫码关注公众号

登录注册
游客您好
第三方账号登陆

国金悦江府9#80㎡现代----暖阳下

[复制链接]
发表于 2023-2-5 10:50:39 | 显示全部楼层 |阅读模式
国金悦江府9#80㎡现代----暖阳下

格堂装饰实景完工案例欣赏!

小区名称
国金悦江府
房屋面积
80㎡
户型结构
套房
装修风格
现代
装修方式
半包
装修造价
查看请联系客服万元
设计师
余工
项目经理
姜工
装修公司
格堂装饰
装修过程
装修日记
设计说明
在充满阳光的日子里,总能勾起心中许多温度的回忆(Sunny days always bring back many warm memories)
更多信息
7E1A3712.jpg


回复

使用道具 举报

 楼主| 发表于 2023-2-5 10:51:14 | 显示全部楼层
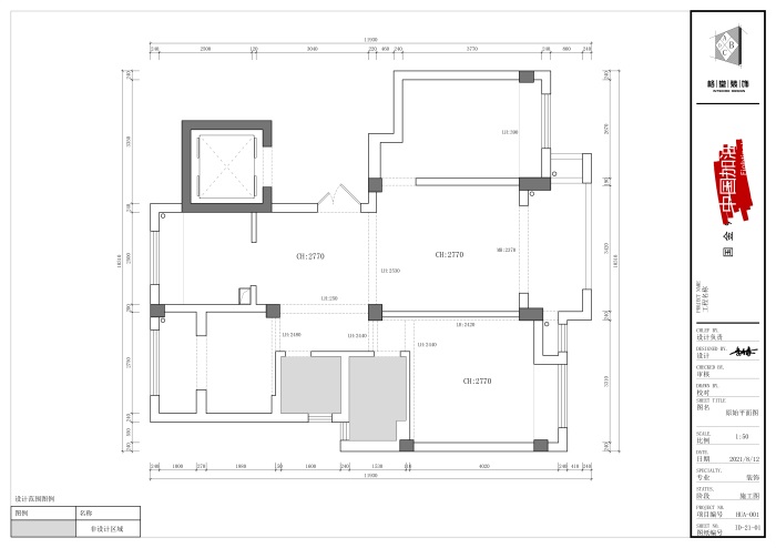
原始构图▼▼▼

084952g54qqezq5s74ftqz.jpg

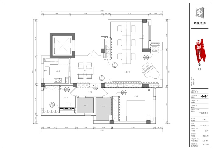
平面布置图▼▼▼

085009cveeivz37eq930ee.jpg




回复 支持 反对

使用道具 举报

 楼主| 发表于 2023-2-5 10:51:39 | 显示全部楼层
客厅▼▼▼



7E1A3712.jpg


7E1A3713.jpg


7E1A3714.jpg


7E1A3715.jpg


7E1A3716.jpg


7E1A3717.jpg




回复 支持 反对

使用道具 举报

 楼主| 发表于 2023-2-5 10:52:03 | 显示全部楼层
餐厅▼▼▼



7E1A3720.jpg


7E1A3722.jpg


7E1A3723.jpg


7E1A3724.jpg


7E1A3725.jpg


7E1A3727.jpg


7E1A3728.jpg




回复 支持 反对

使用道具 举报

 楼主| 发表于 2023-2-5 10:52:17 | 显示全部楼层
厨房▼▼▼



7E1A3729.jpg


回复 支持 反对

使用道具 举报

 楼主| 发表于 2023-2-5 10:52:35 | 显示全部楼层
主卧▼▼▼



7E1A3708.jpg


7E1A3709.jpg


7E1A3710.jpg




回复 支持 反对

使用道具 举报

 楼主| 发表于 2023-2-5 10:52:50 | 显示全部楼层
主卫▼▼▼



7E1A3711.jpg


回复 支持 反对

使用道具 举报

您需要登录后才可以回帖 登录 | 立即注册

本版积分规则

全国统一客服电话
0570-8028505

24x7小时免费咨询

  • 官方在线客服

    QQ客服:小西

    点击交谈

    QQ客服:良子

    点击交谈

    QQ客服:闵月

    点击交谈
  • 衢州市柯城区财富中心3号楼2楼

  • 衢州格堂装饰有限公司

  • 扫一扫关注官方微信

    获取一手特惠信息

快速回复 返回顶部 返回列表