• 手机版

    扫码体验手机版

  • 微信公众号

    扫码关注公众号

登录注册
游客您好
第三方账号登陆

悦海棠9-3-6#160㎡现代——多维家具与空间意境

[复制链接]
发表于 2023-1-13 16:18:11 | 显示全部楼层 |阅读模式
悦海棠9-3-6#160㎡现代——多维家具与空间意境

格堂装饰实景完工案例欣赏!

小区名称
悦海棠
房屋面积
160㎡
户型结构
套房
装修风格
现代
装修方式
半包
装修造价
查看请联系客服万元
设计师
吴工
项目经理
余工
装修公司
格堂装饰
装修过程
装修日记
设计说明
客厅色调以灰白色为主调,电视墙恰到好处的留白,局部用灵动的黑白色系纹理作点缀,配以独具特色的饰品,让空间呈现出一种个性基调。
更多信息
7E1A2871.jpg


回复

使用道具 举报

 楼主| 发表于 2023-1-13 16:19:28 | 显示全部楼层
原始构图▼▼▼

141831bux80dxgrkr0lgj0.jpg

141857jb3282qooxlbho7t.jpg

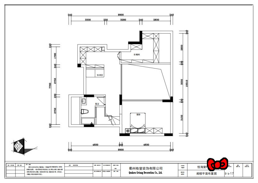
平面布置图▼▼▼




141218fku17a7aljpjjluj.jpg

141812wboouaajgomehxut.jpg


回复 支持 反对

使用道具 举报

 楼主| 发表于 2023-1-13 16:20:03 | 显示全部楼层
客厅▼▼▼



7E1A2847.jpg


7E1A2848.jpg


7E1A2849.jpg


7E1A2851.jpg


7E1A2852.jpg


7E1A2871.jpg


7E1A2872.jpg






回复 支持 反对

使用道具 举报

 楼主| 发表于 2023-1-13 16:20:29 | 显示全部楼层
玄关▼▼▼



7E1A2838.jpg


回复 支持 反对

使用道具 举报

 楼主| 发表于 2023-1-13 16:21:24 | 显示全部楼层
餐厅▼▼▼



7E1A2834.jpg


7E1A2835.jpg


7E1A2837.jpg


7E1A2840.jpg


7E1A2842.jpg


7E1A2844.jpg




回复 支持 反对

使用道具 举报

 楼主| 发表于 2023-1-13 16:21:48 | 显示全部楼层
厨房▼▼▼



7E1A2864.jpg


7E1A2865.jpg


回复 支持 反对

使用道具 举报

 楼主| 发表于 2023-1-13 16:22:16 | 显示全部楼层
主卧▼▼▼



7E1A2820.jpg


7E1A2821.jpg


7E1A2822.jpg


7E1A2823.jpg




回复 支持 反对

使用道具 举报

 楼主| 发表于 2023-1-13 16:22:35 | 显示全部楼层
小孩房▼▼▼



7E1A2826.jpg


7E1A2827.jpg


7E1A2828.jpg


7E1A2829.jpg


7E1A2830.jpg


回复 支持 反对

使用道具 举报

 楼主| 发表于 2023-1-13 16:23:09 | 显示全部楼层
阁楼储物间▼▼▼



7E1A2868.jpg


7E1A2869.jpg


回复 支持 反对

使用道具 举报

 楼主| 发表于 2023-1-13 16:23:31 | 显示全部楼层
主卫▼▼▼



7E1A2824.jpg


回复 支持 反对

使用道具 举报

您需要登录后才可以回帖 登录 | 立即注册

本版积分规则

全国统一客服电话
0570-8028505

24x7小时免费咨询

  • 官方在线客服

    QQ客服:小西

    点击交谈

    QQ客服:良子

    点击交谈

    QQ客服:闵月

    点击交谈
  • 衢州市柯城区财富中心3号楼2楼

  • 衢州格堂装饰有限公司

  • 扫一扫关注官方微信

    获取一手特惠信息

快速回复 返回顶部 返回列表