• 手机版

    扫码体验手机版

  • 微信公众号

    扫码关注公众号

登录注册
游客您好
第三方账号登陆

[衢州] 文华园22-2-9#94㎡现代——胡桃木系收藏家

[复制链接]
发表于 2023-1-7 21:33:30 | 显示全部楼层 |阅读模式
胡桃木系收藏家

格堂装饰为您全程记录装修全过程!

小区名称
文华园
房屋面积
94㎡
户型结构
套房
装修风格
现代
装修方式
全包
装修造价
查看请联系客服万元
设计师
吴工
项目经理
周工
装修公司
格堂装饰
完工实景
完工实景
水电全景
水电全景
VR全景
VR全景
设计说明
本案依据简约清爽的设计原理,带以黑胡桃木色系的大板桌等家具,营造卓尔不同的胡桃木系收藏家居氛围。
更多信息

效果图
6a9965250f700a20b01b6d581fefd9e.jpg

8f6c630e2e2f37584cf6b5b32d6407b.jpg
回复

使用道具 举报

 楼主| 发表于 2023-1-7 21:34:53 | 显示全部楼层
本帖最后由 格堂月红 于 2023-9-7 15:02 编辑

目      录


回复 支持 反对

使用道具 举报

 楼主| 发表于 2023-1-7 21:35:15 | 显示全部楼层

原始结构图
6ff4d6275930ee426307a68f24a300b.png
回复 支持 反对

使用道具 举报

 楼主| 发表于 2023-1-7 21:35:35 | 显示全部楼层

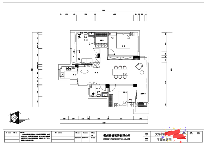
平面布置图
ea01ae1e33a45ae2f2676e836bb08c8.png
回复 支持 反对

使用道具 举报

 楼主| 发表于 2023-1-7 21:56:36 | 显示全部楼层

开工前电梯口墙面和地面已经保护到位。
IMG_20230102_082213.jpg

IMG_20230102_082215.jpg

IMG_20230102_082217.jpg

IMG_20230102_082218.jpg

IMG_20230102_082222.jpg
回复 支持 反对

使用道具 举报

 楼主| 发表于 2023-1-7 22:01:53 | 显示全部楼层

电梯口对角
IMG_20230102_082228.jpg

IMG_20230102_082230.jpg

IMG_20230102_082233.jpg

IMG_20230102_082235.jpg

IMG_20230102_082237.jpg
回复 支持 反对

使用道具 举报

 楼主| 发表于 2023-1-7 22:08:09 | 显示全部楼层

门槛已经保护到位
IMG_20230102_082241.jpg
回复 支持 反对

使用道具 举报

 楼主| 发表于 2023-1-7 22:08:43 | 显示全部楼层

煤气表已经保护好了。
IMG_20230102_082245.jpg
回复 支持 反对

使用道具 举报

 楼主| 发表于 2023-1-7 22:09:34 | 显示全部楼层

下水管用格堂专用保护盖保护,防止砂石堵塞管道。
IMG_20230102_082247.jpg
回复 支持 反对

使用道具 举报

 楼主| 发表于 2023-1-7 22:10:16 | 显示全部楼层

临时小便池已经安放好了:每一个施工现场都会配备临时小便斗,并且时刻保持干净卫生、保证工地环境干净、整洁。
IMG_20230102_082310.jpg
回复 支持 反对

使用道具 举报

您需要登录后才可以回帖 登录 | 立即注册

本版积分规则

全国统一客服电话
0570-8028505

24x7小时免费咨询

  • 官方在线客服

    QQ客服:小西

    点击交谈

    QQ客服:良子

    点击交谈

    QQ客服:闵月

    点击交谈
  • 衢州市柯城区财富中心3号楼2楼

  • 衢州格堂装饰有限公司

  • 扫一扫关注官方微信

    获取一手特惠信息

快速回复 返回顶部 返回列表