• 手机版

    扫码体验手机版

  • 微信公众号

    扫码关注公众号

登录注册
游客您好
第三方账号登陆

[衢州] 文华园23-2-5#106㎡现代——寻

[复制链接]
发表于 2023-1-5 09:59:48 | 显示全部楼层 |阅读模式

格堂装饰为您全程记录装修全过程!

小区名称
文华园
房屋面积
106㎡
户型结构
套房
装修风格
现代
装修方式
全包
装修造价
查看请联系客服万元
设计师
邓工
项目经理
刘工
装修公司
格堂装饰
完工实景
完工实景
水电全景
水电全景
VR全景
VR全景
设计说明
“家”是对自我身份的探寻,你怎么理解自己,就会在这个空间里留下怎样的记忆。
更多信息

效果图
mmexport1671669424325.jpg

mmexport1671669430287.jpg

mmexport1671669427316.jpg

mmexport1671669436124.jpg

mmexport1671669439218.jpg
回复

使用道具 举报

 楼主| 发表于 2023-1-5 10:00:26 | 显示全部楼层
本帖最后由 格堂月红 于 2023-1-30 14:33 编辑

目      录

1开工9泥木工材料
2拆改10泥木工中途
3砌墙11防水
4水电放样12油漆材料
5水电材料13油漆中途
6水电中途14安装阶段
7水电完工图15竣工验收
8水电细节  水电验收16

回复 支持 反对

使用道具 举报

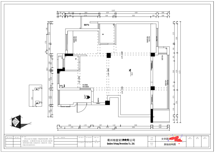
 楼主| 发表于 2023-1-5 11:12:41 | 显示全部楼层

原始结构图
mmexport1671669418363.png
回复 支持 反对

使用道具 举报

 楼主| 发表于 2023-1-5 11:12:58 | 显示全部楼层

平面布置图
mmexport1671669421156.png
回复 支持 反对

使用道具 举报

 楼主| 发表于 2023-1-7 19:19:20 | 显示全部楼层

开工前,大门已经保护到位。
mmexport1672450578841.jpg

mmexport1672450581709.jpg
回复 支持 反对

使用道具 举报

 楼主| 发表于 2023-1-7 19:20:36 | 显示全部楼层

煤气表已经保护好了
mmexport1672450565357.jpg
回复 支持 反对

使用道具 举报

 楼主| 发表于 2023-1-7 19:22:38 | 显示全部楼层

临时小便池已经安放好了:每一个施工现场都会配备临时小便斗,并且时刻保持干净卫生、保证工地环境干净、整洁。
mmexport1672450568335.jpg
回复 支持 反对

使用道具 举报

 楼主| 发表于 2023-1-7 19:27:03 | 显示全部楼层

一切准备就绪,就等吉时!
mmexport1672450571887.jpg
回复 支持 反对

使用道具 举报

 楼主| 发表于 2023-1-7 19:27:41 | 显示全部楼层

美丽的鲜花送给业主大人。
mmexport1672450562189.jpg
回复 支持 反对

使用道具 举报

 楼主| 发表于 2023-1-7 19:28:45 | 显示全部楼层

吉时到,开工了,恭祝业主大人开工大吉!
mmexport1672450585026.jpg
回复 支持 反对

使用道具 举报

您需要登录后才可以回帖 登录 | 立即注册

本版积分规则

全国统一客服电话
0570-8028505

24x7小时免费咨询

  • 官方在线客服

    QQ客服:小西

    点击交谈

    QQ客服:良子

    点击交谈

    QQ客服:闵月

    点击交谈
  • 衢州市柯城区财富中心3号楼2楼

  • 衢州格堂装饰有限公司

  • 扫一扫关注官方微信

    获取一手特惠信息

快速回复 返回顶部 返回列表