• 手机版

    扫码体验手机版

  • 微信公众号

    扫码关注公众号

登录注册
游客您好
第三方账号登陆

[衢州] 观棠府39-2-10#127㎡现代——原木白

[复制链接]
发表于 2022-12-21 16:17:54 | 显示全部楼层 |阅读模式
观棠府39-2-10#127㎡现代——原木白

格堂装饰为您全程记录装修全过程!

小区名称
观棠府
房屋面积
127㎡
户型结构
套房
装修风格
现代
装修方式
半包
装修造价
查看请联系客服万元
设计师
徐工
项目经理
周工
装修公司
格堂装饰
完工实景
完工实景
水电全景
水电全景
VR全景
VR全景
设计说明
自在居所 尽显本真
十二月是什么颜色的?是日复一日早起出行的雾白色;是马路边纷纷凋零的枯木色;或许也是那暖呼呼的烤红薯色.十二月也不尽然是黑与白,细看之下也是五彩缤纷的世界,时光是月升日落,生活是晨昏朝暮;心怀热爱的人,总是能把日子过得有滋有味。
更多信息
本帖最后由 格堂陈辰 于 2023-1-8 14:51 编辑

效果图
mmexport1673131750966.jpg

mmexport1673131754620.jpg

mmexport1673131757438.jpg
回复

使用道具 举报

 楼主| 发表于 2022-12-21 16:18:09 | 显示全部楼层
本帖最后由 格堂陈辰 于 2023-1-8 14:52 编辑

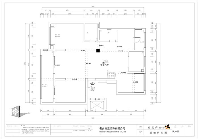
原始结构图
mmexport1673131738070.jpg
回复 支持 反对

使用道具 举报

 楼主| 发表于 2022-12-21 16:18:51 | 显示全部楼层
本帖最后由 格堂陈辰 于 2023-1-8 14:52 编辑

平面布置图
mmexport1673131746843.jpg
回复 支持 反对

使用道具 举报

 楼主| 发表于 2022-12-21 16:19:58 | 显示全部楼层
本帖最后由 格堂陈辰 于 2023-1-8 14:55 编辑

目      录

1开工9水电验收
2拆改10泥木工材料
3砌墙11泥木工中途
4黄墙绿地12泥木工验收
5水电放样13油漆材料
6水电材料14油漆中途
7水电中途15安装阶段
8水电完工图16竣工验收

回复 支持 反对

使用道具 举报

 楼主| 发表于 2022-12-21 16:20:37 | 显示全部楼层
本帖最后由 格堂陈辰 于 2023-1-2 09:02 编辑

电梯口保护
IMG_20221224_100926.jpg

IMG_20221224_100928.jpg

IMG_20221224_100931.jpg

IMG_20221224_100930.jpg

IMG_20221224_100935.jpg
回复 支持 反对

使用道具 举报

 楼主| 发表于 2022-12-21 16:20:51 | 显示全部楼层
本帖最后由 格堂陈辰 于 2023-1-2 09:02 编辑

电梯口对角
IMG_20221224_100948.jpg
IMG_20221224_100950.jpg

IMG_20221224_100954.jpg

IMG_20221224_100953.jpg

IMG_20221224_100956.jpg
回复 支持 反对

使用道具 举报

 楼主| 发表于 2022-12-21 16:21:59 | 显示全部楼层
大门保护中
IMG_20221218_104955.jpg

IMG_20221218_110157.jpg
回复 支持 反对

使用道具 举报

 楼主| 发表于 2022-12-21 16:22:25 | 显示全部楼层
本帖最后由 格堂陈辰 于 2023-1-2 09:03 编辑

门槛保护
IMG_20221224_101419.jpg
回复 支持 反对

使用道具 举报

 楼主| 发表于 2022-12-21 16:23:24 | 显示全部楼层
煤气表 保护 到位
IMG_20221218_105031.jpg

回复 支持 反对

使用道具 举报

 楼主| 发表于 2022-12-21 16:23:50 | 显示全部楼层
临时马桶安放到位  保持工地卫生干净
IMG_20221218_104658.jpg
回复 支持 反对

使用道具 举报

您需要登录后才可以回帖 登录 | 立即注册

本版积分规则

全国统一客服电话
0570-8028505

24x7小时免费咨询

  • 官方在线客服

    QQ客服:小西

    点击交谈

    QQ客服:良子

    点击交谈

    QQ客服:闵月

    点击交谈
  • 衢州市柯城区财富中心3号楼2楼

  • 衢州格堂装饰有限公司

  • 扫一扫关注官方微信

    获取一手特惠信息

快速回复 返回顶部 返回列表