• 手机版

    扫码体验手机版

  • 微信公众号

    扫码关注公众号

登录注册
游客您好
第三方账号登陆

[衢州] 香格里拉桃源居15#350㎡现代 ——雅致

[复制链接]
发表于 2022-12-10 18:57:57 | 显示全部楼层 |阅读模式
雅致

格堂装饰为您全程记录装修全过程!

小区名称
香格里拉
房屋面积
350㎡
户型结构
别墅
装修风格
现代
装修方式
半包
装修造价
查看请联系客服万元
设计师
王工
项目经理
施工
装修公司
格堂装饰
完工实景
完工实景
水电全景
水电全景
VR全景
VR全景
设计说明
注重空间与空间之间的关系,现代手法与自然元素融合,赋予空间生命与情感!
更多信息
本帖最后由 格堂月红 于 2022-12-11 13:27 编辑

效果图
19be702d8a05e3d857285b315912a0c.jpg

58ea344e7510d5bfc96acd3d792e30a.jpg

aa7b276b77ca9f4e33e5cdc858bd9ba.jpg

d79aa0a26bb73c700c9b1b781f699f0.jpg

fc9e5c20409929cd0327efd2f386ec0.jpg
回复

使用道具 举报

 楼主| 发表于 2022-12-10 18:59:18 | 显示全部楼层
本帖最后由 格堂月红 于 2023-2-6 16:09 编辑

目      录


回复 支持 反对

使用道具 举报

 楼主| 发表于 2022-12-10 19:05:20 | 显示全部楼层

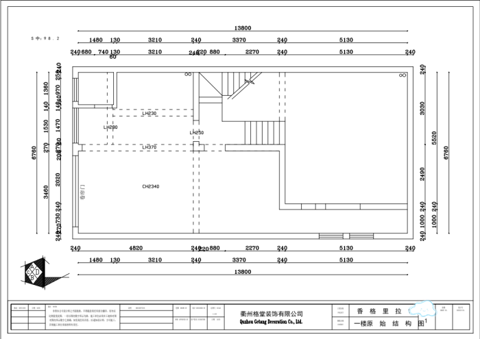
一楼原始结构图
429ab87f878d3d5408b1bcb422c65be.png
二楼原始结构图
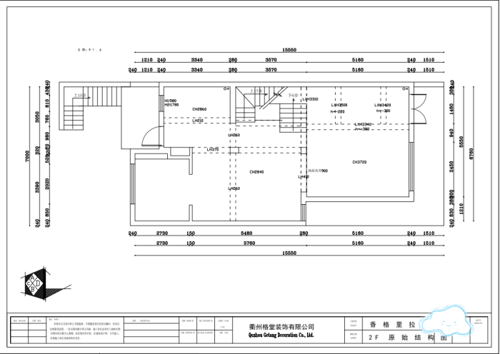
71d7961d4eb747601e995e295946d22.png
三楼原始结构图
8a29a9792eb1973aa5ed9ff635c977f.png
四楼原始结构图
9a781d3d1661974f24e3eac8ace95f1.png
回复 支持 反对

使用道具 举报

 楼主| 发表于 2022-12-10 19:08:25 | 显示全部楼层

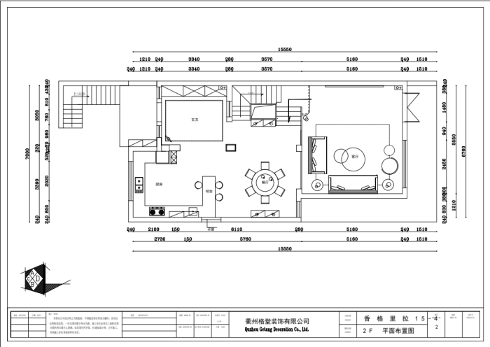
一楼平面布置图
5f8d59776ad1cf889345c49d0ea6e90.png
二楼平面布置图
718df0c86945fbfe1f87c4a75678bcf.png
三楼平面布置图
49398a8e04a63c2812a591e8393d062.png
四楼平面布置图
91354845339e49a3f55ff4a6ca66061.png
回复 支持 反对

使用道具 举报

 楼主| 发表于 2022-12-10 19:10:30 | 显示全部楼层

开工前,给业主大人先送上美丽的鲜花!
IMG_20220919_093940.jpg
回复 支持 反对

使用道具 举报

 楼主| 发表于 2022-12-10 19:13:34 | 显示全部楼层

红彤彤的加多宝已经准备好了,非常喜气!
IMG_20220919_093955.jpg

IMG_20220919_093957.jpg
回复 支持 反对

使用道具 举报

 楼主| 发表于 2022-12-10 19:13:58 | 显示全部楼层

礼炮已经准备好了
IMG_20220919_093949.jpg
回复 支持 反对

使用道具 举报

 楼主| 发表于 2022-12-10 19:14:30 | 显示全部楼层

开工锤已经准备好了。
IMG_20220919_093953.jpg
回复 支持 反对

使用道具 举报

 楼主| 发表于 2022-12-10 19:17:53 | 显示全部楼层

临时小便池已经安放好了:每一个施工现场都会配备临时小便斗,并且时刻保持干净卫生、保证工地环境干净、整洁。
IMG_20220919_101507.jpg
回复 支持 反对

使用道具 举报

 楼主| 发表于 2022-12-10 19:23:37 | 显示全部楼层

下水管用格堂专用保护盖保护,防止砂石堵塞管道。
IMG_20220919_101509.jpg

IMG_20220919_101511.jpg

IMG_20220919_101640.jpg

IMG_20220919_101728.jpg
回复 支持 反对

使用道具 举报

您需要登录后才可以回帖 登录 | 立即注册

本版积分规则

全国统一客服电话
0570-8028505

24x7小时免费咨询

  • 官方在线客服

    QQ客服:小西

    点击交谈

    QQ客服:良子

    点击交谈

    QQ客服:闵月

    点击交谈
  • 衢州市柯城区财富中心3号楼2楼

  • 衢州格堂装饰有限公司

  • 扫一扫关注官方微信

    获取一手特惠信息

快速回复 返回顶部 返回列表