• 手机版

    扫码体验手机版

  • 微信公众号

    扫码关注公众号

登录注册
游客您好
第三方账号登陆

府前一号5-1-15#190㎡法美混搭——法美混搭风

[复制链接]
发表于 2022-12-8 17:21:10 | 显示全部楼层 |阅读模式
府前一号5-1-15#190㎡法美混搭——法美混搭风

格堂装饰实景完工案例欣赏!

小区名称
府前一号
房屋面积
190㎡
户型结构
套房
装修风格
混搭
装修方式
半包
装修造价
查看请联系客服万元
设计师
余工
项目经理
施工
装修公司
格堂装饰
装修过程
装修日记
设计说明
复古,时尚,
在“浪漫之都”巴黎,法式风情是不可或缺的。温和的色调填充在每一个角落,法式浪漫滋养着四周的一切。精致与高级感是描绘这里更好的词汇。
更多信息
7E1A9919.jpg


回复

使用道具 举报

 楼主| 发表于 2022-12-8 17:22:01 | 显示全部楼层
原始构图▼▼▼

112711zu14fix1cqg9qpdf.jpg

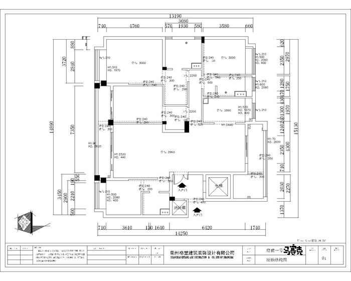
平面布置图▼▼▼

112753icppfqodbibqpyb5.jpg


回复 支持 反对

使用道具 举报

 楼主| 发表于 2022-12-8 17:22:33 | 显示全部楼层
客厅▼▼▼



7E1A0016.jpg


7E1A0017.jpg


7E1A0018.jpg


7E1A9919.jpg




回复 支持 反对

使用道具 举报

 楼主| 发表于 2022-12-8 17:23:03 | 显示全部楼层
茶室▼▼▼



7E1A0008.jpg


7E1A0012.jpg


7E1A0013.jpg


7E1A0014.jpg


7E1A0015.jpg




回复 支持 反对

使用道具 举报

 楼主| 发表于 2022-12-8 17:24:03 | 显示全部楼层
餐厅▼▼▼



7E1A9967.jpg


7E1A9968.jpg


7E1A9969.jpg


7E1A9973.jpg


7E1A9974.jpg


7E1A9979.jpg


7E1A9983.jpg




回复 支持 反对

使用道具 举报

 楼主| 发表于 2022-12-8 17:24:20 | 显示全部楼层
玄关▼▼▼



7E1A0020.jpg


回复 支持 反对

使用道具 举报

 楼主| 发表于 2022-12-8 17:24:51 | 显示全部楼层
主卧▼▼▼



7E1A9920.jpg


7E1A9921.jpg


7E1A9922.jpg


7E1A9925.jpg


7E1A9923.jpg






回复 支持 反对

使用道具 举报

 楼主| 发表于 2022-12-8 17:25:22 | 显示全部楼层
次卧▼▼▼



7E1A9953.jpg


7E1A9951.jpg


7E1A9956.jpg


7E1A9957.jpg


7E1A9958.jpg




回复 支持 反对

使用道具 举报

 楼主| 发表于 2022-12-8 17:25:44 | 显示全部楼层
厨房▼▼▼



7E1A9963.jpg


7E1A9964.jpg


7E1A9965.jpg


7E1A9966.jpg




回复 支持 反对

使用道具 举报

 楼主| 发表于 2022-12-8 17:26:07 | 显示全部楼层
小孩房▼▼▼



7E1A9987.jpg


7E1A9991.jpg




回复 支持 反对

使用道具 举报

您需要登录后才可以回帖 登录 | 立即注册

本版积分规则

全国统一客服电话
0570-8028505

24x7小时免费咨询

  • 官方在线客服

    QQ客服:小西

    点击交谈

    QQ客服:良子

    点击交谈

    QQ客服:闵月

    点击交谈
  • 衢州市柯城区财富中心3号楼2楼

  • 衢州格堂装饰有限公司

  • 扫一扫关注官方微信

    获取一手特惠信息

快速回复 返回顶部 返回列表