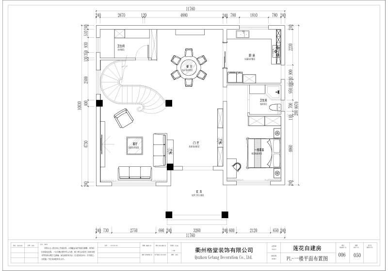
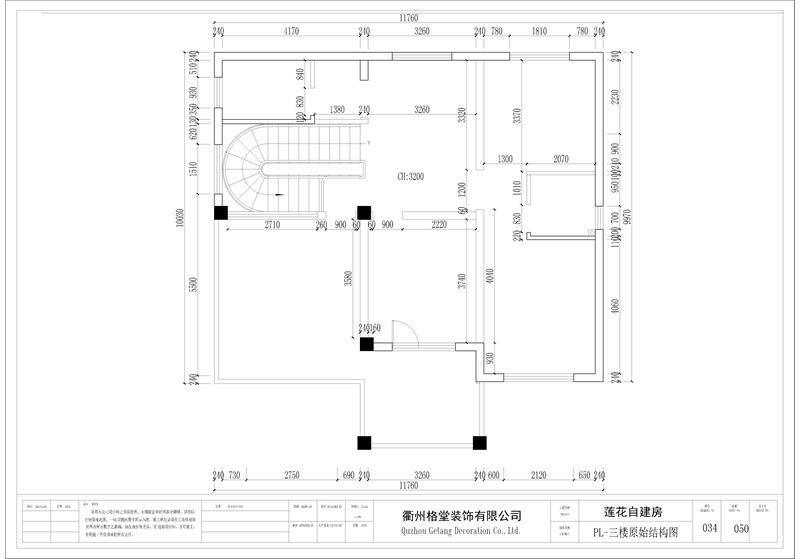
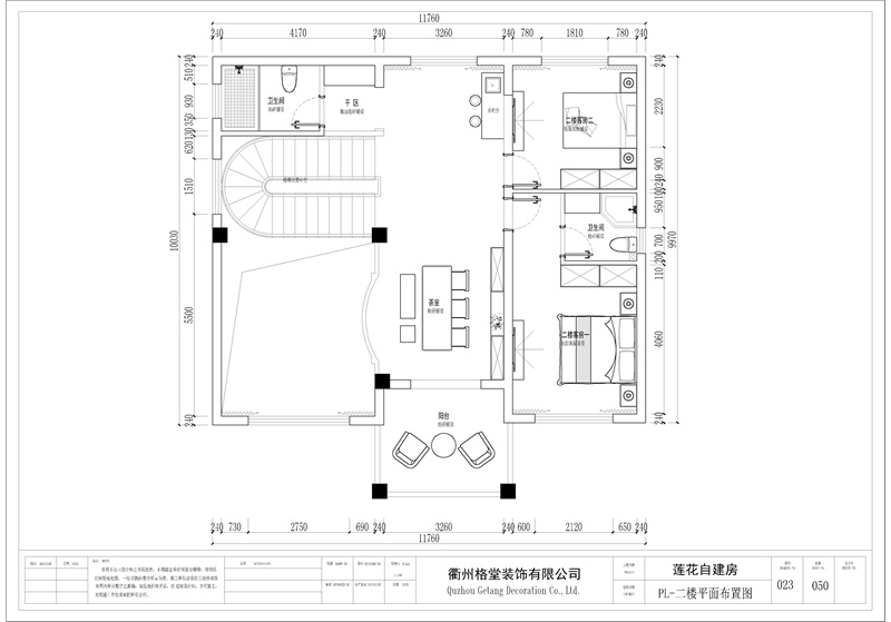
莲花自建房310㎡现代极简——《山河远阔》 |
|
莲花自建房310㎡现代极简——《山河远阔》
格堂装饰实景完工案例欣赏!
设计说明
短暂人生几十载,我们所追逐的,除了理想和梦以外,不过是自在于世、淡然于心;与爱的人在一起 ,以自己喜欢的方式过这一生。
一布一木,三茶六饭中有喜乐团圆。一桌一椅,觥筹交错里是灯花绚烂。有风吹来,听山语将时光与生活酿成诗。内,有香浓的烟火,可甜可盐。外,有相伴的温情,可望可守。《山河远阔》,愿生活尽在掌握,游刃有余。 更多信息
| |


在线客服
微信客服
关注有礼