• 手机版

    扫码体验手机版

  • 微信公众号

    扫码关注公众号

登录注册
游客您好
第三方账号登陆

姜家山.振兴家园二区1-2-6#109㎡现代——寅·叶

[复制链接]
发表于 2022-12-8 14:25:32 | 显示全部楼层 |阅读模式
姜家山.振兴家园二区1-2-6#109㎡现代——寅·叶

格堂装饰实景完工案例欣赏!

小区名称
姜家山.振兴家园二区
房屋面积
109㎡
户型结构
套房
装修风格
日式
装修方式
半包
装修造价
查看请联系客服万元
设计师
杨工
项目经理
郑工
装修公司
格堂装饰
装修过程
装修日记
设计说明
筑先有容
更多信息
7E1A1626.jpg


回复

使用道具 举报

 楼主| 发表于 2022-12-8 14:26:31 | 显示全部楼层
原始构图▼▼▼
161837wzhk59m959io022a.jpg

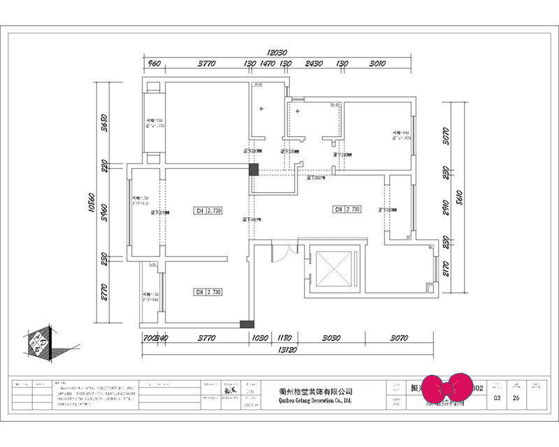
平面布置图▼▼▼

161857z4m4mcprgtmqpqt4.jpg


回复 支持 反对

使用道具 举报

 楼主| 发表于 2022-12-8 14:27:29 | 显示全部楼层
客厅▼▼▼



7E1A1626.jpg


7E1A1627.jpg


7E1A1628-恢复的.jpg


7E1A1629.jpg


7E1A1630.jpg


7E1A1631.jpg


7E1A1632.jpg


7E1A1635.jpg




回复 支持 反对

使用道具 举报

 楼主| 发表于 2022-12-8 14:27:51 | 显示全部楼层
玄关▼▼▼



7E1A1638.jpg


回复 支持 反对

使用道具 举报

 楼主| 发表于 2022-12-8 14:28:25 | 显示全部楼层
餐厅▼▼▼



7E1A1641.jpg


7E1A1643.jpg


7E1A1644.jpg


7E1A1646.jpg


7E1A1647.jpg


7E1A1648.jpg


7E1A1649.jpg


7E1A1651.jpg


7E1A1652.jpg


7E1A1653.jpg




7E1A1655.jpg
回复 支持 反对

使用道具 举报

 楼主| 发表于 2022-12-8 14:28:53 | 显示全部楼层
厨房▼▼▼



7E1A1656.jpg


7E1A1657.jpg




回复 支持 反对

使用道具 举报

 楼主| 发表于 2022-12-8 14:30:34 | 显示全部楼层
主卧▼▼▼



7E1A1682.jpg


7E1A1681.jpg


7E1A1680.jpg


7E1A1683.jpg


回复 支持 反对

使用道具 举报

 楼主| 发表于 2022-12-8 14:31:12 | 显示全部楼层
书房▼▼▼



7E1A1673.jpg


7E1A1674.jpg


7E1A1675.jpg

7E1A1677.jpg




回复 支持 反对

使用道具 举报

 楼主| 发表于 2022-12-8 14:31:51 | 显示全部楼层
主卫▼▼▼



7E1A1678.jpg


7E1A1679.jpg



回复 支持 反对

使用道具 举报

 楼主| 发表于 2022-12-8 14:32:32 | 显示全部楼层
次卫▼▼▼



7E1A1684.jpg


回复 支持 反对

使用道具 举报

您需要登录后才可以回帖 登录 | 立即注册

本版积分规则

全国统一客服电话
0570-8028505

24x7小时免费咨询

  • 官方在线客服

    QQ客服:小西

    点击交谈

    QQ客服:良子

    点击交谈

    QQ客服:闵月

    点击交谈
  • 衢州市柯城区财富中心3号楼2楼

  • 衢州格堂装饰有限公司

  • 扫一扫关注官方微信

    获取一手特惠信息

快速回复 返回顶部 返回列表