• 手机版

    扫码体验手机版

  • 微信公众号

    扫码关注公众号

登录注册
游客您好
第三方账号登陆

星月湾8#127m2中式风---一生所爱

[复制链接]
发表于 2022-12-8 10:32:57 | 显示全部楼层 |阅读模式
星月湾8#127m2中式风---一生所爱

格堂装饰实景完工案例欣赏!

小区名称
星月湾
房屋面积
127㎡
户型结构
套房
装修风格
中式
装修方式
半包
装修造价
查看请联系客服万元
设计师
童工
项目经理
郑工
装修公司
格堂装饰
装修过程
装修日记
设计说明
业主家是一个幸福的家庭。新中式的搭配,氛围感十足。空间的整体布局简美方正,用东方“端正方整”的形式追求最本质的自由!此案也是现代与古典的交织相融,希望业主一回家就能感觉到,温馨,快乐!
更多信息
7E1A3283.jpg


回复

使用道具 举报

 楼主| 发表于 2022-12-8 10:33:43 | 显示全部楼层
原始构图▼▼▼

151603huvhtzpeoy7xeh7o.png

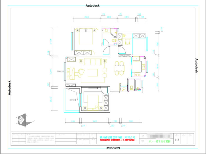
平面布置图▼▼▼




151625p2hoayvy1vhf2lyy.png


回复 支持 反对

使用道具 举报

 楼主| 发表于 2022-12-8 10:34:05 | 显示全部楼层
客厅▼▼▼



7E1A3282.jpg


7E1A3283.jpg


7E1A3284.jpg


7E1A3285.jpg


7E1A3286.jpg


7E1A3287.jpg


7E1A3288.jpg




回复 支持 反对

使用道具 举报

 楼主| 发表于 2022-12-8 10:34:29 | 显示全部楼层
玄关▼▼▼



7E1A3289.jpg


7E1A3292.jpg



回复 支持 反对

使用道具 举报

 楼主| 发表于 2022-12-8 10:34:50 | 显示全部楼层
餐厅▼▼▼



7E1A3290.jpg


回复 支持 反对

使用道具 举报

 楼主| 发表于 2022-12-8 10:35:07 | 显示全部楼层
厨房▼▼▼



7E1A3293.jpg


7E1A3294.jpg



回复 支持 反对

使用道具 举报

 楼主| 发表于 2022-12-8 10:35:43 | 显示全部楼层
主卧▼▼▼



7E1A3297.jpg


7E1A3296.jpg


7E1A3300.jpg




回复 支持 反对

使用道具 举报

 楼主| 发表于 2022-12-8 10:36:21 | 显示全部楼层
次卧▼▼▼



7E1A3303.jpg


7E1A3302.jpg


7E1A3301.jpg




回复 支持 反对

使用道具 举报

 楼主| 发表于 2022-12-8 10:36:41 | 显示全部楼层
主卫▼▼▼



7E1A3304.jpg


回复 支持 反对

使用道具 举报

您需要登录后才可以回帖 登录 | 立即注册

本版积分规则

全国统一客服电话
0570-8028505

24x7小时免费咨询

  • 官方在线客服

    QQ客服:小西

    点击交谈

    QQ客服:良子

    点击交谈

    QQ客服:闵月

    点击交谈
  • 衢州市柯城区财富中心3号楼2楼

  • 衢州格堂装饰有限公司

  • 扫一扫关注官方微信

    获取一手特惠信息

快速回复 返回顶部 返回列表