• 手机版

    扫码体验手机版

  • 微信公众号

    扫码关注公众号

登录注册
游客您好
第三方账号登陆

华都首府8#12#87㎡现代——黑白灰

[复制链接]
发表于 2022-12-8 10:22:10 | 显示全部楼层 |阅读模式
华都首府8#12#87㎡现代——黑白灰

格堂装饰实景完工案例欣赏!

小区名称
华都首府
房屋面积
87㎡
户型结构
套房
装修风格
现代
装修方式
半包
装修造价
查看请联系客服万元
设计师
杜工
项目经理
杨工
装修公司
格堂装饰
装修过程
装修日记
设计说明
在当下都市生活的年轻群体住房选择倾向中,小户型已然成为备受青睐的居住空间。然而“不将就”也是当代年轻人对于精致生活的一种诠释。所以越来越多的人开始注重小户型家居装修该怎么做能更高级。
更多信息
7E1A9367.jpg


回复

使用道具 举报

 楼主| 发表于 2022-12-8 10:23:16 | 显示全部楼层
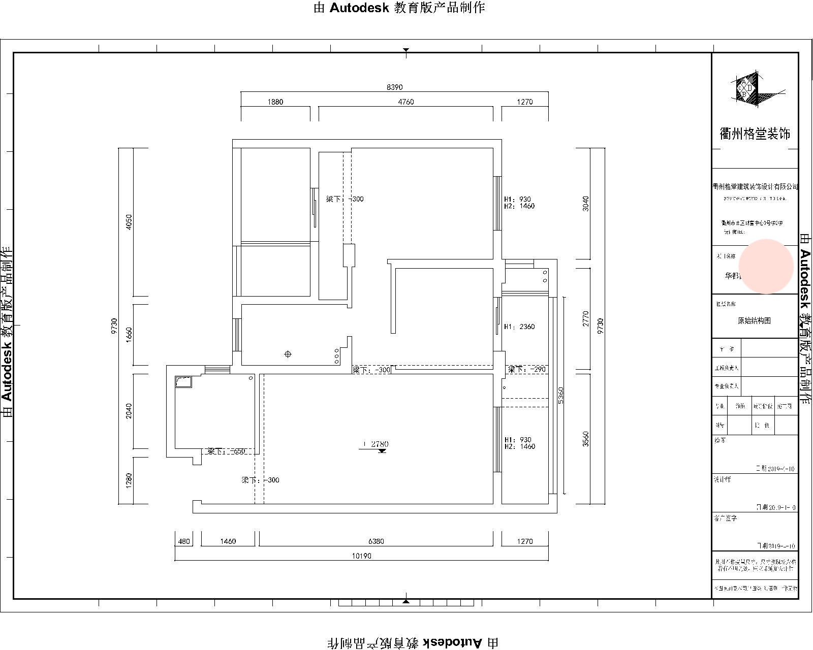
原始构图▼▼▼


114658lpzhnoha250k77ff.jpg

平面布置图▼▼▼

114727oojrjmm8qw376vbb.jpg


回复 支持 反对

使用道具 举报

 楼主| 发表于 2022-12-8 10:23:43 | 显示全部楼层
客厅▼▼▼



7E1A9364.jpg


7E1A9365.jpg


7E1A9367.jpg


7E1A9368.jpg


7E1A9369.jpg




回复 支持 反对

使用道具 举报

 楼主| 发表于 2022-12-8 10:24:02 | 显示全部楼层
玄关▼▼▼



7E1A9372.jpg


回复 支持 反对

使用道具 举报

 楼主| 发表于 2022-12-8 10:24:27 | 显示全部楼层
餐厅▼▼▼



7E1A9371.jpg


7E1A9375.jpg


回复 支持 反对

使用道具 举报

 楼主| 发表于 2022-12-8 10:24:44 | 显示全部楼层
厨房▼▼▼



7E1A9374.jpg


回复 支持 反对

使用道具 举报

 楼主| 发表于 2022-12-8 10:25:35 | 显示全部楼层
吧台▼▼▼



7E1A9376.jpg


7E1A9377.jpg


7E1A9378.jpg


7E1A9379.jpg



回复 支持 反对

使用道具 举报

 楼主| 发表于 2022-12-8 10:25:54 | 显示全部楼层
主卧▼▼▼



7E1A9382.jpg


7E1A9383.jpg


7E1A9381.jpg


回复 支持 反对

使用道具 举报

 楼主| 发表于 2022-12-8 10:26:10 | 显示全部楼层
卫生间▼▼▼



7E1A9380.jpg


回复 支持 反对

使用道具 举报

您需要登录后才可以回帖 登录 | 立即注册

本版积分规则

全国统一客服电话
0570-8028505

24x7小时免费咨询

  • 官方在线客服

    QQ客服:小西

    点击交谈

    QQ客服:良子

    点击交谈

    QQ客服:闵月

    点击交谈
  • 衢州市柯城区财富中心3号楼2楼

  • 衢州格堂装饰有限公司

  • 扫一扫关注官方微信

    获取一手特惠信息

快速回复 返回顶部 返回列表