• 手机版

    扫码体验手机版

  • 微信公众号

    扫码关注公众号

登录注册
游客您好
第三方账号登陆

[江山] 凯升公馆7#105m2现代---雅奢之所

[复制链接]
发表于 2022-11-20 17:21:32 | 显示全部楼层 |阅读模式
凯升公馆7#105m2现代---雅奢之所

格堂装饰为您全程记录装修全过程!

小区名称
凯升公馆
房屋面积
105㎡
户型结构
框架结构
装修风格
现代
装修方式
全包
装修造价
查看请联系客服万元
设计师
王工
项目经理
郑工
装修公司
格堂装饰
完工实景
完工实景
水电全景
水电全景
VR全景
VR全景
设计说明
设计理念:现代与中式的碰撞,保留中式的韵味,享受现代的生活。空间布局满足业主一家的生活习惯,增加储物空间,扩大视觉感受。满足视觉实用的双重满足。
更多信息
回复

使用道具 举报

 楼主| 发表于 2022-11-20 17:22:17 | 显示全部楼层
原始结构图


e596957f3a759a742f06f88f5c5e8af.png

回复 支持 反对

使用道具 举报

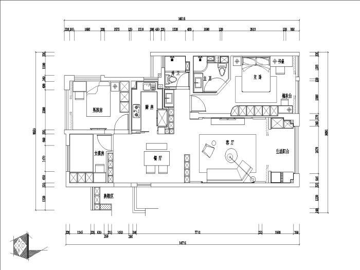
 楼主| 发表于 2022-11-20 17:23:02 | 显示全部楼层
平面布置图

a7dc1f1e607b36c4888941a2dc38bc9.png
回复 支持 反对

使用道具 举报

 楼主| 发表于 2022-11-22 08:31:28 | 显示全部楼层
开工前大门先保护到位

924eb3a775626542d5612031a217b4e.jpg

ed6894d56096f882e89578a6f14d766.jpg

回复 支持 反对

使用道具 举报

 楼主| 发表于 2022-11-22 08:32:44 | 显示全部楼层
门槛保护起来,防止磕碰

9484c8aa98a1f8f136459ee49ac846a.jpg

回复 支持 反对

使用道具 举报

 楼主| 发表于 2022-11-22 08:34:38 | 显示全部楼层
本帖最后由 格堂红叶 于 2022-11-22 08:39 编辑

卫生间的简易马桶安装到位,防止后期施工中沙石堵塞进入,美观又干净!

8609c7e0f77762be4301aba81fe3b02.jpg


回复 支持 反对

使用道具 举报

 楼主| 发表于 2022-11-22 08:36:19 | 显示全部楼层
排水管道用格堂装饰专用保护盖保护,防止后期施工砂石堵塞管道

40716d7ff336cb5c19720724f469321.jpg

1394b87e591e22387d598fdfb9f7113.jpg

57328feb6dcd367990e6dd69756b336.jpg

c52e675fb63fa9720df1bc80b987a7a.jpg

da72a1ed5f97136a3de8c1b40c6a753.jpg

回复 支持 反对

使用道具 举报

 楼主| 发表于 2022-11-22 08:37:15 | 显示全部楼层
煤气管道用格堂装饰专用保护盖保护,防止后期施工砂石堵塞管道

4a4bb7b9e9e89bd2ad645e07b1bece0.jpg

回复 支持 反对

使用道具 举报

 楼主| 发表于 2022-11-22 08:38:08 | 显示全部楼层
本帖最后由 格堂红叶 于 2022-11-22 08:59 编辑

送给业主美丽的鲜花

6f0ee578768f4ea4d464960f100367c.jpg






回复 支持 反对

使用道具 举报

 楼主| 发表于 2022-11-22 09:00:00 | 显示全部楼层
开工锤已准备好

aa8bf1a071b8e9d100fa30fb096e7b7.jpg

回复 支持 反对

使用道具 举报

您需要登录后才可以回帖 登录 | 立即注册

本版积分规则

全国统一客服电话
0570-8028505

24x7小时免费咨询

  • 官方在线客服

    QQ客服:小西

    点击交谈

    QQ客服:良子

    点击交谈

    QQ客服:闵月

    点击交谈
  • 衢州市柯城区财富中心3号楼2楼

  • 衢州格堂装饰有限公司

  • 扫一扫关注官方微信

    获取一手特惠信息

快速回复 返回顶部 返回列表